Главная Случайная страница


Полезное:

Как сделать разговор полезным и приятным Как сделать объемную звезду своими руками Как сделать то, что делать не хочется? Как сделать погремушку Как сделать так чтобы женщины сами знакомились с вами Как сделать идею коммерческой Как сделать хорошую растяжку ног? Как сделать наш разум здоровым? Как сделать, чтобы люди обманывали меньше Вопрос 4. Как сделать так, чтобы вас уважали и ценили? Как сделать лучше себе и другим людям Как сделать свидание интересным?


Категории:

АрхитектураАстрономияБиологияГеографияГеологияИнформатикаИскусствоИсторияКулинарияКультураМаркетингМатематикаМедицинаМенеджментОхрана трудаПравоПроизводствоПсихологияРелигияСоциологияСпортТехникаФизикаФилософияХимияЭкологияЭкономикаЭлектроника






Изменение параметрических связей





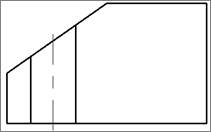
2.1.1 Подготовительный этап: постройте изображение элемента по заданным размерам (Рисунок 9, а).

2.1.2 Постройте три вертикальные независимые прямые. Порядок выполнения: Вызвать команду с помощью опции постройте три вертикальные прямые как показано на рисунке 9, б).

а) б) в)

Рисунок 9 – Порядок редактирования параметрических связей линий построения

2.1.3 Измените способ задания вертикальных прямых. Порядок выполнения: При пустом автоменю подвести курсор мыши к средней прямой (1) нажать левую клавишу мыши, выбрать опцию (2), аналогично построению параллельной прямой привязать выбранную прямую (1) к прямой (3) (Рисунок 9, б). Аналогично перезадайте прямую (1) на рисунке 9, в) параллельно относительно прямой (2), а прямую (3) перезадайте симметричным отражением прямой (2) относитльно прямой (1) с помощью опции .

2.1.4 Создайте изображение отверстия как показано на рисунке 10, а).

2.1.5 Переместите отверстие как показано на рисунке 10, б). Порядок выполнения: При пустом автоменю подвести курсор мыши к лини построения, на которой нанесена осевая линия изображения отверстия, нажать левую клавишу на ней, отвести ее в сторону на произвольное расстояние как показано на рисунке 10, б), обновить выступание обрезанных линий построения при помощи опции в команде .

2.1.6 Для изменения параметрической связи постройте 2D путь. Порядок выполнения: Вызвать команду (Построение|Путь). Как показано на рисунке 10, в) построить 2D путь.

а) б) в)

Рисунок 10 – Порядок изменения положения отверстия и построение 2D пути

2.1.7 Постройте узлы на пересечении 2D пути с линиями построения. Порядок выполнения: Вызвать команду (Построить|Узел), выбрать опцию , указать на 2D путь, а потом указать линию построения. (Рисунок 11, а)

2.1.8 Замените узлы выступающих линий изображения на узлы, находящиеся на пересечении 2D пути с вертикальными прямыми. Порядок выполнения: Вызвать команду (Правка|Заменить), выбрать узел (1), указать на узел (2) и нажать на опцию . Результат выполнения команды показан на рисунке 11,б). Выполните аналогичные действия с другими узлами, для изменения параметрических связей чертежа (Рисунок 11,в)

а) б) в)

Рисунок 11 – Порядок замены узлов

2.1.9 Переместите отверстие и нанесите штриховку с помощью автоматического поиска контура штриховки, как показано на рисунке 12,а)

2.1.10 Переместите отверстие как показано на рисунке 12, б).

2.1.11 Отредактируйте штриховку в режиме ручного задания контура штриховки. Порядок выполнения: При пустом автоменю выбрать штриховку, нажать левую клавишу мыши, выбрать опцию для перезадания контура штриховки, задать заново штриховку в режиме ручного ввода ее контура. При этом контур штриховки должен проходить по 2D пути (опция ), а не по линиям построения. Если все выполнено правильно, то после изменения положения отверстия изображение примет вид, показанный на рисунке 12,в)

а) б) в)

Рисунок 12 – Порядок редактировании положения отверстия и штриховки

Из выше изложенных построений видно, что при построении параметрических чертежей лучше использовать 2D пути и ручной ввод контура штриховки.

 







Date: 2015-04-23; view: 879; Нарушение авторских прав



mydocx.ru - 2015-2026 year. (1.622 sec.) Все материалы представленные на сайте исключительно с целью ознакомления читателями и не преследуют коммерческих целей или нарушение авторских прав - Пожаловаться на публикацию