Главная Случайная страница


Полезное:

Как сделать разговор полезным и приятным Как сделать объемную звезду своими руками Как сделать то, что делать не хочется? Как сделать погремушку Как сделать так чтобы женщины сами знакомились с вами Как сделать идею коммерческой Как сделать хорошую растяжку ног? Как сделать наш разум здоровым? Как сделать, чтобы люди обманывали меньше Вопрос 4. Как сделать так, чтобы вас уважали и ценили? Как сделать лучше себе и другим людям Как сделать свидание интересным?


Категории:

АрхитектураАстрономияБиологияГеографияГеологияИнформатикаИскусствоИсторияКулинарияКультураМаркетингМатематикаМедицинаМенеджментОхрана трудаПравоПроизводствоПсихологияРелигияСоциологияСпортТехникаФизикаФилософияХимияЭкологияЭкономикаЭлектроника






Проектирование технологической части дипломного проекта





Разработку технологической части дипломного проекта конструкторских специальностей можно условно разделить на три направления. Первое направление можно назвать аналитическим, где студент должен продемонстрировать возможности проанализировать конструкторские решения дипломного проекта с точки зрения технологической оптимальности изготовления. В этой части дипломного проекта необходимо учитывать эксплуатационные характеристики изделия и влияние на них технологических решений. Второе направление – прикладное, здесь перед студентом стоит задача разработать технологический процесс сборки изделия или отдельной сборочной единицы с учетом выбранного в результате анализа конструктивного решения. Возможна разработка нескольких технологических процессов, или технологических решений ответственного соединения, с последующим выбором лучшего по экономическим или технологическим показателям. Сравнение нескольких разработанных технологических процессов можно проводить на уровне технологических схем сборки. Третье направление – конструкторское, здесь студенту предлагается спроектировать оригинальную технологическую оснастку для проведения сборочных работ. В этой части дипломного проекта возможно провести анализ нескольких конструктивных решений технологической оснастки, или сравнить разработанную технологическую оснастку с действующим аналогом. В некоторых случаях предлагается провести анализ внедрения в технологический процесс сборки оригинальной или существующей оснастки с точки зрения повышения качества сборки, а также технологических, эксплуатационных, экономических показателей.

Варианты решений поставленных задач к технологической части дипломного проекта могут быть разнообразны, главным образом это зависит от конструкторских разработок проекта. Так, например, на рис. 18 - 21 иллюстративно представлен анализ технологичности конструктивных решений.

Рис. 18 Конструктивные варианты подшипникового узла

 

Рис. 19 Значения коэффициентов технологичности для конструктивных вариантов подшипникового узла

 

Рис. 20 Конструктивные варианты отработки подшипникового узла в сборе на технологичность

 

Рис. 21 Сравнительные значения коэффициентов технологичности для конструктивных вариантов подшипникового узла в сборе

 

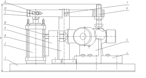
На рис. 22 последовательно представлены некоторые технологические эскизы сборки герметичного маслозаполненного компрессора при условии узловой сборки.

 

Рис. 22 Иллюстрации к выполнению технологических эскизов сборки герметичного маслозаполненного компрессора

 

На рис. 23 представлена студенческая конструкторская разработка технологического приспособления в рамках выполнения курсового проекта.

 

а

б

в

Рис. 23 Эскиз станочного приспособления

а. Вид спереди

б. Вид сверху

в. Местные виды

 

При разработке расчетно-пояснительной записки по первым двум направлениям необходимо произвести описание по п. 2 настоящих методических указаний. При разработке технологической оснастки необходимо произвести расчет наиболее нагруженных элементов конструкции, представить описание ее работы и комплект конструкторской документации (спецификации, технические требования на сборочную единицу и т.д.). В некоторых случаях рекомендуется провести анализ представленных технических требований с учетом возможных условий эксплуатации.


Список литературы:

1. Справочник технолога-машиностроителя. В 2-х т. Т 1 / Под ред. А.М. Дальского [и др.] М.: Машиностроение - 1, 2001. 912 с.

2. Справочник технолога-машиностроителя. В 2-х т. Т 2 / Под ред. А.М. Дальского[и др.] М.: Машиностроение - 1, 2001. 944 с.

3. Технология машиностроения: В 2-х т. Т.1. Основы технологии машиностроения: Учебник для вузов. Под ред. А.М. Дальского. М.: Изд-во МГТУ им. Н.Э. Баумана, 2001. 564с., ил.

4. Технология машиностроения: в 2-х т. Т.2. Производство машин: Учебник для вузов. Под ред. Г.Н. Мельникова. М.: Изд-во МГТУ им. Н.Э. Баумана, 2001. 640 с., ил.

5. ГОСТ 14.201 - 83. Обеспечение технологичности конструкции изделия. М., 1983. 11 с.

6. Учебное пособие к технологической части дипломного проекта конструкторских специальностей / Под ред. А.Г. Косиловой. М.: Изд-во МГТУ им. Н.Э. Баумана, 1984. 32 с., ил.

7. Ястребова Н.А., Деркач Г.Г. Технико-экономическое обоснование технологических процессов изготовления деталей в условиях гибкого автоматизированного производства. М.: Изд – во МГТУ им. Н.Э. Баумана, 2000. 24 с.


8. Ястребова Н.А. Методические указания к выполнению курсового проекта по технологии машиностроения. М.: Изд – во УНЦ МГТУ им Н.Э. Баумана «Криоконсул», 2004. 32 с.

9. Анурьев В.И. Справочник конструктора машиностроителя. В 3-х т. Т. 1. М.: Машиностроение, 2001. 728 с.

10. Общетехнический справочник / Под ред. Е.А. Скороходова. М.:Машиностроение, 1990. 496 с.: ил.

 







Date: 2015-07-23; view: 835; Нарушение авторских прав



mydocx.ru - 2015-2026 year. (2.242 sec.) Все материалы представленные на сайте исключительно с целью ознакомления читателями и не преследуют коммерческих целей или нарушение авторских прав - Пожаловаться на публикацию