Главная Случайная страница


Полезное:

Как сделать разговор полезным и приятным Как сделать объемную звезду своими руками Как сделать то, что делать не хочется? Как сделать погремушку Как сделать так чтобы женщины сами знакомились с вами Как сделать идею коммерческой Как сделать хорошую растяжку ног? Как сделать наш разум здоровым? Как сделать, чтобы люди обманывали меньше Вопрос 4. Как сделать так, чтобы вас уважали и ценили? Как сделать лучше себе и другим людям Как сделать свидание интересным?


Категории:

АрхитектураАстрономияБиологияГеографияГеологияИнформатикаИскусствоИсторияКулинарияКультураМаркетингМатематикаМедицинаМенеджментОхрана трудаПравоПроизводствоПсихологияРелигияСоциологияСпортТехникаФизикаФилософияХимияЭкологияЭкономикаЭлектроника






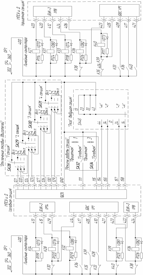
Последовательное соединение тяговых электродвигателей





В случае повреждения тягового электродвигателя М1 или М2 в головнойи М3 или М4 в прицепнойсекциях, после установки переключателей SA28 «1 секция» в положение «1-2» и SA29 «2 секция» в положение «3-4», МПСУ и Д включает линейные контакторы согласно таблицы 4.2. При сборе схемы последовательного соединения при отключенных двигателях М1 и М2 в головной и М3 и М4 в прицепной секциях, МПСУ и Д замыкает цепь питания электромагнитных вентилей линейных контакторов К28, К32, К34, К36 и К39 на головной секции и К27, К31, К33, К36 и К40 – на прицепной секции (см. рисунок 25).

На секциях второго электровоза сплотка в случае повреждения тягового электродвигателя М1 или М2 после установки переключателя SA30 «3 секция» (SA31 «4 секция») в положение «1-2» МПСУ и Д управляет линейными контакторами аналогично.

 

 
 

 


 

 

На секциях второго электровоза сплотка в случае повреждения тягового электродвигателя М3 или М4 после установки переключателя SA30 «3 секция» (SA31 «4 секция») в положение «3-4» МПСУ и Д управляет линейными контакторами аналогично.

 







Date: 2015-06-11; view: 636; Нарушение авторских прав



mydocx.ru - 2015-2026 year. (0.723 sec.) Все материалы представленные на сайте исключительно с целью ознакомления читателями и не преследуют коммерческих целей или нарушение авторских прав - Пожаловаться на публикацию