Главная Случайная страница


Полезное:

Как сделать разговор полезным и приятным Как сделать объемную звезду своими руками Как сделать то, что делать не хочется? Как сделать погремушку Как сделать так чтобы женщины сами знакомились с вами Как сделать идею коммерческой Как сделать хорошую растяжку ног? Как сделать наш разум здоровым? Как сделать, чтобы люди обманывали меньше Вопрос 4. Как сделать так, чтобы вас уважали и ценили? Как сделать лучше себе и другим людям Как сделать свидание интересным?


Категории:

АрхитектураАстрономияБиологияГеографияГеологияИнформатикаИскусствоИсторияКулинарияКультураМаркетингМатематикаМедицинаМенеджментОхрана трудаПравоПроизводствоПсихологияРелигияСоциологияСпортТехникаФизикаФилософияХимияЭкологияЭкономикаЭлектроника






Вспомогательные помещения





Вспомогательные помещения, необходимые на любых спортивных со­оружениях для инвалидов, т.е. блоки раздевальных, душевых, туалетов для занимающихся, помещения для медицинского обслуживания, реабилита­ции, зоны отдыха и питания, зрительские зоны, должны отвечать ряду спе­циальных требований.

Раздевальные. Должны обслуживать как отдельных инвалидов, так и боль­шие группы, прибывающие на организованные занятия или для участия в командных видах спорта. Раздевальные свободной планировки со скамьями устраивают многих инвалидов при условии, что инвалидная коляска может пройти вдоль и развернуться между скамьями и шкафчиками.

Некоторые инвалиды в колясках предпочитают отдельные кабины для


456 физкультурно-спортивные сооружения

переодевания, особенно во время массовых мероприятий. Индивидуальные кабины можно устроить в обычных общих раздевальных. Стандартная каби­на подходит для предпочитающих уединение ходячих инвалидов, которым не надо ложиться, чтобы снять протез. Но в кабине должны быть горизон­тальные опорные поручни. Размер кабины 1000 х 1200 мм. Необходимо также несколько кабин побольше - для инвалидов в колясках, которые пользуют­ся общей раздевальной. Желательны отдельные «семейные раздевальные». Размер этих помещений должен позволять разместиться по крайней мере одному пользователю коляской и помощнику.

При каждой раздевальной должно быть не менее двух комнат. В них предус­матриваются скамьи для сидения, душ, туалет и умывальник. Туалет должен позволять перемещение вбок на унитаз и иметь вблизи опорные поручни.

Рекомендуется выход из семейных раздевальных при бассейне делать не­посредственно на обходную дорожку. Единственный недостаток такой схе­мы - отсутствие прохода через ножную ванну (рис.13.24).

Скамьи в раздевальных должны располагаться на расстоянии не менее 1,8 м одна от другой. В раздевальных необходим подиум или островная ска­мья 750-900 х 3000 х 500 мм для раздевания лежа. На скамье желателен шарнирный бортик высотой 150 мм. На сиденье укладываются мягкие, мож­но поролоновые, маты.




 


ФИЗКУЛЬТУРНО-СПОРТИВНЫЕ СООРУЖЕНИЯ, ИСПОЛЬЗУЕМЫЕ ДЛЯ ЗАНЯТИЙ ИНВАЛИДОВ_________________________ 457

Там, где площадь для островной скамьи мала, вдоль одной из стен разде­вальной следует устроить расширенную скамью (не менее 600 мм) или ска­мью с частично откидным сиденьем, обеспечивающим при необходимости дополнительную ширину.

Самый удобный способ хранения одежды - на крючках, в раздеваль­ной, но это возможно только тогда, когда группа инвалидов получает раздевальную в свое распоряжение. Тогда часть крючков должна нахо­диться на высоте, удобной для инвалидов в колясках - 1300 мм. Если одежда хранится в шкафчиках (наиболее распространенный способ), то их число должно находиться в пределах доступности для инвалидов в колясках (от 400 до 1300 мм). Несколько шкафчиков большего размера (600 х 600 мм х 1750 мм) следует устроить для тех инвалидов, которым нужно запереть костыли или протезы. Если принимается система с гар­деробом домашней одежды, то гардеробная стойка должна быть на вы­соте около 500 мм.

В семейных раздевальных шкафчики должны находиться в тех же поме­щениях или в нише в сочетании с местом для хранения инвалидных коля­сок и других снятых вспомогательных устройств. Ниши - в основных поме­щениях общих раздевальных при зоне бассейна.

Зеркала размером по высоте 1400 мм, подвешенные на высоте 600 мм от пола, устраивают всех.

Туалеты и душевые - составная часть блока раздевальных (13. 25). Если к этим помещениям проходят через тамбуры или они отгорожены экранами, то планировка должна учитывать маневрирование коляски.

В многоместном туалете в конце ряда должна быть одна особая кабина. Для перемещения сбоку из кресла на унитаз расстояние от задней стены до переднего среза унитаза должно быть не менее 720 мм. Умывальники в каби­нах туалета должны быть в пределах доступности с унитаза, но не мешать передвижению инвалидного кресла. В раковине - единственный кран-смеси­тель с рычажной рукояткой.

В общем помещении умывальники на высоте 700, 800, 900 мм и распола­гаются так, чтобы можно было подъехать не только спереди, но и сбоку.

Для инвалидов-мужчин следует один из писсуаров установить на высоте 380 мм. Пол перед ним должен быть плоский. Желателен короткий верти­кальный опорный поручень.




 


458 физкультурно-спортивные сооружения

Инвалиды в колясках, которые переодеваются в отдельных кабинах, могут воспользоваться душем. Душевые в общих раздевальных также оборудуются с расчетом на доступность для инвалидного кресла. Для этого в отдельной душевой кабине в общем помещении ставится скамья из планок и делаются опорные поручни. Для подхода к кабине перед ней должно быть свободное пространство минимум 1200 х1200 мм. В обычных помещениях душевых так­же должен быть обеспечен доступ для инвалидов, которые могут пересесть для гигиенических процедур в решетчатое кресло. Краны в душевых делают на высоте не более 1300 мм, все души должны регулироваться термостати­ческими смесителями.


Проход от блоков раздевальных и душевых к бассейну должен быть как можно короче. По обе стороны прохода желательны сплошные поручни, чтобы инвалиды с ограниченной подвижностью могли обойтись без проте­зов и вспомогательных устройств, оставленных в раздевальной.

Ножные ванны и входы в бассейн за рубежом не всегда считаются целе­сообразными. Если ножные ванны приняты как необходимость для инвали­дов (по отечественным нормам), там, где они уже существуют, следует либо устроить короткий объезд для инвалидов в чистых колясках, либо ус­тановить съемный пандус или мостики.

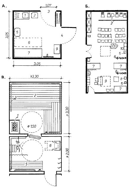
Помещения для медицинского обслуживания и реабилитации (рис. 13.26). Ком­ната первой медицинской помощи должна быть снабжена четким указате­лем, иметь прямой доступ из зала бассейна и располагаться вблизи глубокой




 


ФИЗКУЛЬТУРНО-СПОРТИВНЫЕ СООРУЖЕНИЯ, ИСПОЛЬЗУЕМЫЕ ДЛЯ ЗАНЯТИЙ ИНВАЛИДОВ_________________________ 459

части ванны. Нужна удобная связь с улицей: коридоры, лифты, лестницы должны позволять проносить носилки. Ширина дверей — не менее 1,07 м, минимальная площадь помещения -10 м2. При комнате первой помощи -помещение туалета, достаточное по площади для пользования инвалидами в колясках. Аптечка первой помощи устанавливается в пределах доступности для инвалида: не выше 1200 мм от пола.

Кабинет врача и перевязочная должны быть удобны для обслуживания инвалида в коляске. Комната спортивной медицины или кабинет функцио­нальной диагностики оборудуются для медицинского контроля за занимаю­щимися и для медико-просветительской работы. Неотъемлемый элемент спортивных сооружений для инвалидов - сауна.

Общественные зоны. Помещения для отдыха, клубные помещения, буфе­ты должны быть доступны для инвалидов в колясках, проходы между столи­ками и вдоль стоек - достаточно широкими для инвалидных кресел (мини­мум 800 мм), с тем чтобы можно было сесть за столик, не пересаживаясь из коляски и не загромождая проходы.

В небольших сооружениях эти зоны можно объединять с вестибюлем или фойе. В расположенных в этих зонах торговых или игровых автоматах следует располагать щель для оплаты на высоте 1000 - 1300 мм.

Зоны для зрителей и болельщиков проектируются с учетом низкой линии зрения детей и инвалидов в колясках. Поэтому остекление зри­тельских галерей должно начинаться как можно ниже, особенно если места для зрителей расположены выше, чем зона занятий. Поручни не должны заслонять зрелище людям в колясках. При устройстве наиболь­шего числа зрительских мест (на футбольных стадионах) особые зоны должны быть доступны и рассчитаны на инвалидов в колясках. Нужны минимум 4 места по 1,5 х 1,4 м для инвалидного кресла и сиденья для сопровождающего. Размер можно сократить до 1,5 х 0,9 м, если это ко­нец ряда и сопровождающие могут занять обычные места. Места для инвалидов не должны мешать проходу (13.27).


Отсутствие лифта или другие причины могут не дать возможности инвали­дам занимать зрительские места в верхних уровнях. Тогда дополнительное до-




 


460 физкультурно-спортивные сооружения

ступное для инвалидов пространство следует оборудовать в уровне земли.

Цвет и освещение. Оконные проемы следует располагать на уровне глаз чело­века в коляске, т.е. на высоте 0,9 - 1,3 м. Уровни освещенности в раздевальных, туалетах и душевых - те же, что в остальных вспомогательных помещениях. Для указания направлений, дверей можно использовать цветовые контрасты.







Date: 2015-06-07; view: 929; Нарушение авторских прав



mydocx.ru - 2015-2026 year. (3.748 sec.) Все материалы представленные на сайте исключительно с целью ознакомления читателями и не преследуют коммерческих целей или нарушение авторских прав - Пожаловаться на публикацию