Главная Случайная страница


Полезное:

Как сделать разговор полезным и приятным Как сделать объемную звезду своими руками Как сделать то, что делать не хочется? Как сделать погремушку Как сделать так чтобы женщины сами знакомились с вами Как сделать идею коммерческой Как сделать хорошую растяжку ног? Как сделать наш разум здоровым? Как сделать, чтобы люди обманывали меньше Вопрос 4. Как сделать так, чтобы вас уважали и ценили? Как сделать лучше себе и другим людям Как сделать свидание интересным?


Категории:

АрхитектураАстрономияБиологияГеографияГеологияИнформатикаИскусствоИсторияКулинарияКультураМаркетингМатематикаМедицинаМенеджментОхрана трудаПравоПроизводствоПсихологияРелигияСоциологияСпортТехникаФизикаФилософияХимияЭкологияЭкономикаЭлектроника






Нагрузки от мостовых кранов





При движении крана происходит перераспределение вертикальных сил между колесами, движущимися по рельсу с одной стороны крана. При расчете рам вертикальная составляющая крановой нагрузки считается квазистатической.

1. Вертикальное давление кранов. Исходной величиной для определения крановых нагрузок является нормативное давление крана на колесо , принимаемое согласно [7] либо (табл.1 прил.1). В этой же таблице указаны габаритные размеры кранов.

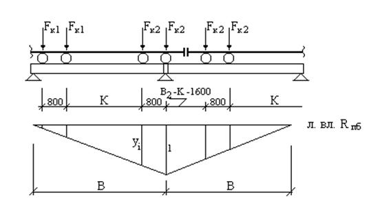
Расчетная сила , передаваемая на колонну колесами крана, определяется по линии влияния опорных реакций (Л.вл. ) подкрановых балок (рис.3.5) при невыгоднейшем расположении двух кранов на балках.

 

Рис.3.5. Размещение кранов грузоподъемностью более 50 т

в пределах подкрановых балок

, (3.10)

где коэффициент сочетаний, принимаемый для кранов режима работ равным ; нормативное давление го колеса крана; - ордината линии влияния под м колесом: - количество колес двух кранов, уложившихся в пределах двух подкрановых балок.

На противоположный ряд колонн также действует вертикальная сила от крана , но значительно меньшая. Усилие определяется по формуле:

; (3.11)

, (3.12)

где - полная масса крана с тележкой: - грузоподъемность крана (см. задание и табл.1 прил.1); - число колес с одной стороны одного крана.

2. Поперечное торможение. Расчётная горизонтальная сила , передаваемая подкрановыми балками через тормозные балки на колонну от сил горизонтального давления на колесо определяется при том же положении кранов, как и при определении и по формуле:

; (3.13)

, (3.14)

где - масса тележки крана (см. табл.1 прил.1).

Сила прикладывается к раме (через тормозную балку) в уровне верха подкрановой балки.

 







Date: 2015-07-27; view: 593; Нарушение авторских прав



mydocx.ru - 2015-2026 year. (0.377 sec.) Все материалы представленные на сайте исключительно с целью ознакомления читателями и не преследуют коммерческих целей или нарушение авторских прав - Пожаловаться на публикацию