Главная Случайная страница


Полезное:

Как сделать разговор полезным и приятным Как сделать объемную звезду своими руками Как сделать то, что делать не хочется? Как сделать погремушку Как сделать так чтобы женщины сами знакомились с вами Как сделать идею коммерческой Как сделать хорошую растяжку ног? Как сделать наш разум здоровым? Как сделать, чтобы люди обманывали меньше Вопрос 4. Как сделать так, чтобы вас уважали и ценили? Как сделать лучше себе и другим людям Как сделать свидание интересным?


Категории:

АрхитектураАстрономияБиологияГеографияГеологияИнформатикаИскусствоИсторияКулинарияКультураМаркетингМатематикаМедицинаМенеджментОхрана трудаПравоПроизводствоПсихологияРелигияСоциологияСпортТехникаФизикаФилософияХимияЭкологияЭкономикаЭлектроника






Постоянные нагрузки





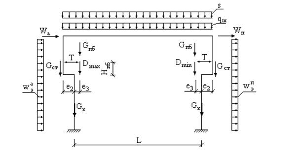
1. Собственный вес шатра (рис.3.4) на удобнее всего определять в табличной форме (см. прил.2). В распределенную нагрузку включаются веса всех слоев кровли, конструкции фермы и связей с соответствующими коэффициентами надежности по нагрузке – . Вес прогонов при шаге рам составляет , а при . Вес ферм со связями принимается равным при пролете рамы и ; при пролетах и соответственно.

Рис.3.4. Схема приложения нагрузок на раму

 

Линейная распределенная нагрузка на ригель (ферму) от веса шатра:

, (3.4)

где - расчетная постоянная нагрузка на , определяемая в табличной форме; - шаг рам; - здесь и далее коэффициент надежности по назначению.

Для здания класса II - - угол наклона кровли к горизонтали.

2. Собственные веса колонны и подкрановой балки определяются в первом приближении по формулам:

; (3.5)

, (3.6)

где - здесь и далее коэффициент надежности по нагрузке, равный для стальных конструкций [2. табл.1]; и веса колонны и подкрановой балки, приходящиеся на прилежащей площади, определяемые по табл.2 прил.1.

3. Вес ненесущей стены условно прикладывается в уровне перепада сечения колонны и подсчитывается по формуле:

, (3.7)

где - объемный вес материала стеновой панели, принимается в пределах ; - объемный вес стекла, принимаемый ; и - суммарные высоты стен и остекления, соответс­твенно не включая цокольную панель и первую полосу остекления; - толщина стеновой панели, принимается ; - толщина двойного остекления (для курсового проекта принимается ); - коэффициент, учитывающий вес оконной коробки и переплетов.

Для самонесущих стен то есть вертикальная нагрузка от стен и остекления, минуя каркас, передается непосредственно на столбчатый железобетонный фундамент через рандбалку.

 







Date: 2015-07-27; view: 662; Нарушение авторских прав



mydocx.ru - 2015-2026 year. (0.475 sec.) Все материалы представленные на сайте исключительно с целью ознакомления читателями и не преследуют коммерческих целей или нарушение авторских прав - Пожаловаться на публикацию