Главная Случайная страница


Полезное:

Как сделать разговор полезным и приятным Как сделать объемную звезду своими руками Как сделать то, что делать не хочется? Как сделать погремушку Как сделать так чтобы женщины сами знакомились с вами Как сделать идею коммерческой Как сделать хорошую растяжку ног? Как сделать наш разум здоровым? Как сделать, чтобы люди обманывали меньше Вопрос 4. Как сделать так, чтобы вас уважали и ценили? Как сделать лучше себе и другим людям Как сделать свидание интересным?


Категории:

АрхитектураАстрономияБиологияГеографияГеологияИнформатикаИскусствоИсторияКулинарияКультураМаркетингМатематикаМедицинаМенеджментОхрана трудаПравоПроизводствоПсихологияРелигияСоциологияСпортТехникаФизикаФилософияХимияЭкологияЭкономикаЭлектроника






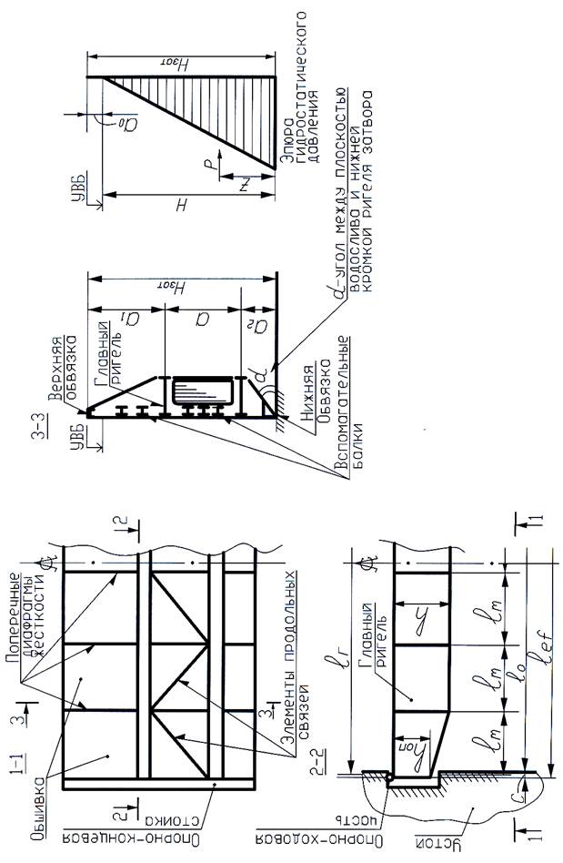
Разработка конструктивной схемы затвора





 

Вначале следует подробно изучить конструкцию затворов гидротехнических сооружений, функциональное назначение и взаимное расположение их элементов по литературным источникам, например по (I, с.267-294; 2, с. 53-74); после чего, руководствуясь исходными данными, разработать конструктивную схему затвора для своего варианта и вычислить основные размеры и нагрузки (рис.1).

Расчетный пролет затвора (расстояние между осями опорно-ходовых частей) определяют по формуле:

ℓеƒ = ℓ0+2C   (1)

где ℓ0 - отверстие в свету, в м;

C - расстояние от края устоя до оси опорно-ходовых частей, в м.

Расстояние C должно быть таким, чтобы обеспечивалось размещение в пазах устоев неподвижных частей затвора. Для затвора со скользящими опорами C = 0,25…0,30 м.

Нагруженный пролет (расстояние между вертикальными боковыми уплотнениями) принимают равным:

г = ℓ0 + (0,15…0,20), м.     (2)

Затем, назначают предварительную высоту ригеля (в дальнейших расчетах ее уточняют) в пределах:

h = (0,100…0,125) ℓеƒ, м.   (3)

 

Причем, большие значения высоты ригеля принимают для затворов из низколегированных сталей марок 09Г2С и 15ХСНД.

В поверхностных затворах высоту ригеля на опоре уменьшают до величины

h оп ≈ (0,5…0,6) h, м.   (4)

Такое изменение высоты позволяет уменьшить ширину ниши пазового устройства и длину устоев, а также несколько снижает общий вес ригеля. Начало изменения высоты ригеля обычно принимают в крайних панелях.

Стенка ригеля разбивается по длине на 6 или 8 панелей поперечными диафрагмами, количество панелей делают четным, что обеспечивает симметричность продольной связевой фермы. Длина панели ℓm назначается в пределах h < ℓm<2 h; допускается длину крайних панелей принимать несколько отличающейся от длины средних.

 

Полная высота затвора определяется по формуле:

нзат = н + ао, м.   (5)

где ао = (0.3…0.4) м – расстояние от уровня горизонта верхнего бьефа (УВБ) для верхней точки затвора.

В двухригельном затворе ригели устанавливают на равном расстоянии от линии действия равнодействующей силы гидростатического давления Р; при соблюдении этого условия ригели получаются равнонагруженными. Положение линии действия равнодействующей гидростатического давления определяется как:

Z = н/ 3, м.   (6)

Затем, назначают расстояние а2 от нижней точки затвора до оси нижнего ригеля; это расстояние должно обеспечить размещение опорно-ходовых частей. Для затворов со скользящими опорами из древесно-слоистого пластика его принимают в пределах:

а = (0,5…0,6), м.   (7)

Расстояние между ригелями а может быть получено из выражения:

а = 2 (Z – а2), м;   (8)

тогда вылет верхней консоли а1 равен:

а 1 = нзат – (а + а2), м.   (9)

 

Далее проверяют угол L между плоскостью водослива и нижней кромкой ригеля затвора. Для устранения вакуума (при угле L<30º) в стенке сплошного нижнего ригеля по линии нейтральной оси необходимо устраивать отверстия для прохода воздуха в зону возможного вакуума. Суммарная площадь этих отверстий должна быть не менее 20% площади стенки ригеля. Проверку угла L можно выполнить графически, для чего предварительно принять ширину безнапорного пояса 1/4…1/5 от высоты ригеля h.

Установив положение ригелей, переходят к расстановке вспомогательных балок, расстояния между которыми определяются конструктивными требованиями по обеспечению пространственной жесткости затвора и устойчивости обшивки на участках между смежными балками. При этом следует учитывать, что в затворах с шириной отверстия в свету ℓ0 >10 м толщина обшивки tоб принимается от 10 до 20 мм; что позволяет избежать получение вмятин при случайных ударах по обшивке.

В первом приближении эти требования можно считать выполненными, если расстояние между центрами тяжести смежных балок (или балки и ригеля) - ℓоб не более следующих значений, выраженных в долях толщины обшивки при tоб = 10 мм:

ℓ0 ≤ 70 tоб - на участках а 2 и а;

ℓ0 ≤ 90 tоб - на участке а 1;

ℓ0 ≤ 120 tоб - на участке между верхней обвязкой и ближайшей балкой.

В дальнейшем, при расчете обшивки, достаточность принятых расстояний ℓоб уточняется.

Стальная обшивка совместно с балочной клеткой образует жесткий диск, который надежно обеспечивает неизменное положение в пространстве сжатых поясов ригелей и их устойчивость в вертикальной плоскости. Геометрическая неизменяемость растянутых поясов ригелей обеспечивается введением в конструкцию затвора поперечных диафрагм и элементов фермы продольных связей (см. рис. 1). Поперечные диафрагмы из листовой стали располагают в вертикальных плоскостях перпендикулярно обшивке затвора, а продольные связи – в плоскости безнапорных поясов ригелей; при этом, в такой пространственной конструкции элементы поперечных диафрагм являются одновременно и стойками продольной связевой фермы. В курсовом проекте, в учебных целях, рекомендуется принять решетку продольной фермы с переменным направлением раскосов (см. рис.1).


Нагрузки от гидростатического давления и силы веса затвора определяют по §5,2 [2].

 

 







Date: 2015-04-23; view: 1141; Нарушение авторских прав



mydocx.ru - 2015-2026 year. (0.256 sec.) Все материалы представленные на сайте исключительно с целью ознакомления читателями и не преследуют коммерческих целей или нарушение авторских прав - Пожаловаться на публикацию