Главная Случайная страница


Полезное:

Как сделать разговор полезным и приятным Как сделать объемную звезду своими руками Как сделать то, что делать не хочется? Как сделать погремушку Как сделать так чтобы женщины сами знакомились с вами Как сделать идею коммерческой Как сделать хорошую растяжку ног? Как сделать наш разум здоровым? Как сделать, чтобы люди обманывали меньше Вопрос 4. Как сделать так, чтобы вас уважали и ценили? Как сделать лучше себе и другим людям Как сделать свидание интересным?


Категории:

АрхитектураАстрономияБиологияГеографияГеологияИнформатикаИскусствоИсторияКулинарияКультураМаркетингМатематикаМедицинаМенеджментОхрана трудаПравоПроизводствоПсихологияРелигияСоциологияСпортТехникаФизикаФилософияХимияЭкологияЭкономикаЭлектроника






Подбор элементов инвентарной мелкощитовой опалубки





«МОНОЛИТ» для отдельно стоящего столбчатого фундамента.

Размер фундамента в плане 3,2x3,2м. Сборку фундамента осуществляем с помощью элементов инвентарной мелкощитовой опалубки «МОНОЛИТ-72».(рис.2)

Рис.2

 


Подбор опалубки нижней плиты фундамента.

Рис.3

1) Щит стальной 1200x300 мм - 4 штуки (m=15,7x4=62,8кг)

2) Щит стальной 1000x300 мм - 4 штуки (m=13,1x4=52,4кг)

3) Несущая балка 3600 мм - 4 штуки (m=196,4x4=786,8кг)

4) Т-образная чека - 8 штук

Подбор опалубки средней плиты фундамента.

Рис.4

1) Щит стальной 1000x300 мм - 4 штуки (m=13,1x4=52,4кг)

2) Щит стальной 1200x300 мм - 4 штуки (m=15,7x4=62,8кг)

3) Несущая балка 3600 мм - 4 штуки (m=196,7x4=786,8кг)

4) Т-образная чека - 8 штук.

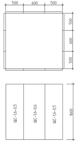
Подбор опалубки подколонника фундамента.

Рис.5

1) Щит стальной 1600x600 мм - 8 штук (m=31,2x8=249,60кг)

2) Щит стальной 1200x400 мм - 4 штуки (m=21,2x4=84,8кг)

3) Несущая балка 2600 мм - 4 штуки (m=176,6x4=706,4кг)

4) Т-образная чека - 8 штук

5) Схватки 1800 мм (вертикальные) - 8 штук (m=33,6x8=268,8кг)

6) Схватки 2400мм(горизонтальные)- 4 штуки (m=25,2x4=100,8кг)

Масса всего опалубочного блока равна: Тб=3100 кг

5. Подбор требуемых технических параметров самоходного







Date: 2015-07-24; view: 1430; Нарушение авторских прав



mydocx.ru - 2015-2026 year. (1.033 sec.) Все материалы представленные на сайте исключительно с целью ознакомления читателями и не преследуют коммерческих целей или нарушение авторских прав - Пожаловаться на публикацию