Пример 7
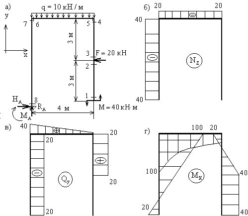
Рассмотрим жесткозащемленную плоскую раму (рис.11,а). В жесткой заделке рамы в общем случае нагружения возникают три опорные реакции: две силы ( и ) и опорный момент ( ). Для построения эпюр определение этих реакций не является безусловной необходимостью: расчет, как и в случае жесткозащемленной балки, можно вести от свободного конца, то есть всякий раз так выбирать отсеченную часть для рассматриваемого сечения, чтобы в нее не попадала опора с неизвестными опорными реакциями. Тем не менее, иногда целесообразно вычислить опорные реакции. Это позволяет проверить построение эпюр или облегчить их построение. Для вычисления реакций в жесткозащемленной раме используются три условия равновесия:

Построим эпюры для рассматриваемой рамы, не вычисляя опорные реакции.
Методика построения эпюр аналогична ранее рассмотренной для балок, т.е. сначала необходимо наметить характерные сечения. В дополнение к ранее указанным (см.1.2), в рамах характерными являются также сечения, расположенные бесконечно близко к жесткому узлу на всех элементах, сходящихся в этом узле.
Построение эпюры . Следуя установленным правилам, в рассматриваемой раме можно выделить 8 характерных сечений. Продольная сила в любом из них численно равна алгебраической сумме проекций всех сил, приложенных по одну сторону от рассматриваемого сечения, на продольную ось стержня. При этом следует учитывать, что положение продольной оси будет изменяться в зависимости от того, чему принадлежит рассматриваемое сечение - стойкам или ригелю.

Построение эпюры . Поперечная сила в любом сечении численно равна алгебраической сумме проекций всех сил, приложенных по одну сторону от рассматриваемого сечения, на поперечную ось рамы. Положение поперечной оси также будет изменяться в зависимости от принадлежности данного сечения стойкам или ригелю. С учетом правила знаков, двигаясь от свободного конца к жесткой заделке, получим для :
(проекция пары М на любую ось равна нулю);

Необходимо обратить внимание на тот факт, что , т.е. что поперечная сила в верхних сечениях противоположных стоек от действия силы, приложенной к правой стойке (при заделке, расположенной слева, и наоборот) имеет противоположные знаки. Отчасти это можно объяснить противоположными направлениями оси y для сечений 4 и 7, но более строгое обоснование указанного равенства будет дано ниже.
Построение эпюры . Изгибающий момент в любом сечении численно равен алгебраической сумме моментов всех нагрузок, приложенных по одну сторону от рассматриваемого сечения, относительно этого сечения (более строго: относительно оси x этого сечения). Обратим внимание на два важных замечания:
1) составляющая момента от действия сосредоточенного момента М всегда одинакова и равна М;
2) под плечом силы всегда понимается длина перпендикуляра, опущенного из центра тяжести данного сечения на линию действия силы. Это означает, что, например, плечо силы F для сечений 4-7 одинаково и равно 3 м.

Рис. 11
Таким образом, для сечений 1-8 получим:
(сжатым является правое волокно в сечениях 1-3, поэтому ордината отложена вправо от оси стойки);
(знаки "+" и "-" здесь имеют относительный характер; результирующий момент сжимает левые волокна в сечении 4 и нижние волокна в сечении 5, поэтому ордината "20" откладывается соответственно влево и вниз);
(сжаты нижние волокна);
(сжаты правые волокна);
(сжаты левые волокна).
Между в плоских рамах сохраняются те же зависимости, что и в балках, а именно:

Из этого следует, что правила контроля эпюр и остаются теми же, что и для балок,(см. 1.11).
Эпюры в плоских рамах строятся наиболее просто и при отсутствии нагрузок, распределенных вдоль стержней, представляют собой графически отрезки прямых, параллельные осям стержней (или совпадают с ними при 
Если проанализировать процесс построения эпюр (рис.11,б-г), то очевидно, что наиболее "сложно" вычислять ординаты в сечениях стержня, примыкающего к заделке (на рис.11,б-г это сечения 7 и 8). Как уже отмечалось, с этой целью иногда вычисляют реакции и момент .
При принятом для всей рамы направлении осей (рис.11,а) уравнения равновесия имеют вид:

Полученный для каждой из величин знак "+" говорит, что направления их были выбраны правильно.
После вычисления опорных реакций значения величин в сечениях 7 и 8 (как, впрочем, и в любом другом) можно вычислять, двигаясь от жесткой заделки к свободному концу.
Например, для сечений 7 и 8:
(знак "-" указывает на сжатие в этих сечениях с силой );
(т.к. реакция стремится повернуть каждое из этих сечений против часовой стрелки.)
При сравнении величины с ранее полученной величиной видно, что
, о чем уже говорилось выше.
(сжаты левые волокна стойки);
(сжаты правые волокна стойки).
Разумеется, результаты получаемые для любого сечения при движении от свободного конца к жесткой заделке и при движении в обратном направлении одинаковы.
Date: 2015-07-24; view: 589; Нарушение авторских прав | Понравилась страница? Лайкни для друзей: |
|
|