Главная Случайная страница


Полезное:

Как сделать разговор полезным и приятным Как сделать объемную звезду своими руками Как сделать то, что делать не хочется? Как сделать погремушку Как сделать так чтобы женщины сами знакомились с вами Как сделать идею коммерческой Как сделать хорошую растяжку ног? Как сделать наш разум здоровым? Как сделать, чтобы люди обманывали меньше Вопрос 4. Как сделать так, чтобы вас уважали и ценили? Как сделать лучше себе и другим людям Как сделать свидание интересным?


Категории:

АрхитектураАстрономияБиологияГеографияГеологияИнформатикаИскусствоИсторияКулинарияКультураМаркетингМатематикаМедицинаМенеджментОхрана трудаПравоПроизводствоПсихологияРелигияСоциологияСпортТехникаФизикаФилософияХимияЭкологияЭкономикаЭлектроника






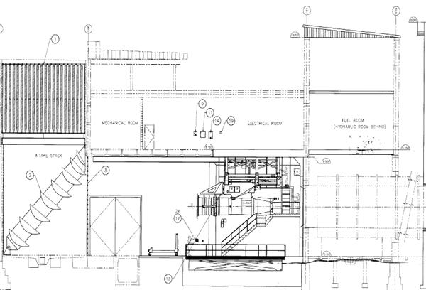
Структурные схемы испытательных стендов





 

 

 

 
 

 


Рисунок 4.2.

Помещение бокса состоит из трех частей: всасывающей, центральной, где устанавливается двигатель и испытательное оборудование, и выхлопной. Обычно бокс имеет следующий вид (см. рисунок…) и содержит такие части как:

- всасывающая часть с шумоглушением;

- испытуемый двигатель;


- эжекторная труба;

- отражатель;

- выхлопная часть с шумоглушением.

 

Такая конструкция позволяет обходится минимальными производственными площадями и, кроме того, препятствует попаданию посторонних предметов.

Шумоглушение во всасывающей и выхлопной частях бокса осуществляется с помощью пористых материалов. Во всасывающей части применяют мягкие (часто органические) материалы, частицы которых в случае попадания в двигатель не повреждают его проточную часть.

На выхлопе, где газы имеют высокую температуру, используют керамическую пористую крошку, стекловолокно и минеральную шерсть.

Впрыск воды в выхлопную струю двигателя или охлаждение водой стенок эжекторной трубы также снижают уровень шума и, кроме того, уменьшают температуру выхлопных газов, что облегчает работу шумоглушащих устройств.

Расход воздуха через помещение бокса складывается из расхода через двигатель и расхода, эжектируемого реактивной струей. Для обеспечения оптимального расхода эжектируемого воздуха, достаточного для снижения температуры выхлопных газов и не вызывающего погрешностей в измерении силы тяги, выхлопную струю пропускают через эжекторную трубу.

Испытуемый двигатель монтируется на силоизмерительном устройстве, установленном на железобетонном фундаменте. Чтобы колебания, вызванные работой двигателя, не передавались стенам бокса и стенда фундамент силовой части устанавливают на вибропоглащающую подушку, изолируемую от строительных конструкций, а глубина залегания этого фундамента выбирается большей, чем у стен.

Силоизмерительные устройства служат для крепления двигателя при испытании и измерения силы тяги.

Силоизмерительное устройство представляет собой платформу, подвешенную на шатунах или упругих лентах. В процессе испытания динамометрическая платформа под действием силы тяги может перемещаться в осевом направлении, что используется для измерения силы тяги. Платформа имеет систему рычагов, связывающих ее с градуировочным устройством и датчиком усилий.

Силоизмерительные устройства являются инструментом высокой точности. Погрешность измерения тяги с помощью динамометрической платформы не превышает 0,5%.

Особое внимание при определении тяги уделяется точности установки двигателя, если двигатель установлен под углом к динамометрической платформе, то измерительное устройство воспринимает силу тяги с погрешностью

= - , где


- угол между продольной осью двигателя и горизонтальной плоскостью.

Для уменьшения указанной погрешности точность установки двигателя на динамометрической платформе станка регламентируется технологической документацией в пределах 1…2º.

Кабина наблюдений и управления. В кабине управления находится обслуживающий персонал во время испытаний, а на пультах размещаются органы управления двигателем: РУД, стоп-кран, тумблеры запуска и основные приборы и средства визуального контроля параметров рабочего процесса: указатели измерителей силы тяги, частоты вращения, температуры выходящих газов, температуры входящего и выходящего масла, давления топлива и масла, расхода топлива; приборы контроля загрузки самолетных агрегатов; сигнальные лампочки, указывающие положение органов регулирования сопла, компрессора и других узлов, а также сигнализирующие об угрожающих значениях параметров рабочего процесса; кнопки пуска и остановки систем пожаротушения, вентиляции и т.д.

Кабины управления располагают спереди или сбоку двигателя, но не в плоскости вращения турбокомпрессора.

Визуальное наблюдение за двигателем, элементами регулирования, входом в двигатель и выхлопной струей, уровнем масла в маслобаке и т.п. осуществляется с помощью телевизионных камер и мониторов. Иногда в стене бокса выполняется окно наблюдения, которое защищается бронестеклом.


Общий вид испытательного стенда закрытого типа

для проведения испытаний ТРД (ТРДД)

 

 
 

 


Рисунок 4.3.


 

 

 

 

Рисунок 4.4.

 

 

Рисунок 4.5. Открытый испытательный стенд

 

 

 


 



 

Cтенд для проведения испытаний ТРДФ (ДТРДФ) с нижним расположением тягоизмерительной и технологических систем.

 

Устройства и системы открытого испытательного стенда

       
 
Механическое устройство, включая баланс тяги, адаптер, пилон двигателя
 
   
Пилон, включая топливопровод, воздухопровод, электропроводку, измерительные приборы
Двигатель для испытаний

 


Рисунок 4.5.


 

 

Рисунок 4.6.

 







Date: 2015-07-23; view: 2125; Нарушение авторских прав



mydocx.ru - 2015-2026 year. (0.716 sec.) Все материалы представленные на сайте исключительно с целью ознакомления читателями и не преследуют коммерческих целей или нарушение авторских прав - Пожаловаться на публикацию