Главная Случайная страница


Полезное:

Как сделать разговор полезным и приятным Как сделать объемную звезду своими руками Как сделать то, что делать не хочется? Как сделать погремушку Как сделать так чтобы женщины сами знакомились с вами Как сделать идею коммерческой Как сделать хорошую растяжку ног? Как сделать наш разум здоровым? Как сделать, чтобы люди обманывали меньше Вопрос 4. Как сделать так, чтобы вас уважали и ценили? Как сделать лучше себе и другим людям Как сделать свидание интересным?


Категории:

АрхитектураАстрономияБиологияГеографияГеологияИнформатикаИскусствоИсторияКулинарияКультураМаркетингМатематикаМедицинаМенеджментОхрана трудаПравоПроизводствоПсихологияРелигияСоциологияСпортТехникаФизикаФилософияХимияЭкологияЭкономикаЭлектроника






Крупных блоков и панелей





 

Стены из мелкоразмерных элементов (кирпича и мелких блоков) устраивают для зданий, имеющих небольшие размеры и много дверей и технологических проемов, а также связанных с производством, где наблюдаются повышенная влажность и агрессивная среда.

Устройство стен промышленных зданий из кирпича и мелких блоков аналогично рассмотренному ранее. Для обеспечения устойчивости стен в их тело закладывают крепежные детали, которые прикрепляют к колоннам каркаса.

Если в стенах есть ленточные проемы, в каркас вводят обвязочные балки, которые размещают над проемами и служат сплошными перемычками.

Стены из больших блоков, которые изготовляют из легких бетонов с плотностью 900-1600 кг/м3, имеют значительно лучшие технико-экономические показатели. На рис.14.1 показан фрагмент стены из крупных блоков и детали крепления блоков.

 

 

Рис.14.1 – Стены из крупных блоков:

а - фрагмент стены из крупных блоков; б - крепление блоков к колоннам; 1 - закладная деталь; 2 - колонна; 3 - стеновой блок; 4 - анкер

 

Рядовые блоки могут иметь длину от 750 до 3250 мм, а перемычечные или блоки-перемычки - 6000 мм. Высоту угловых и рядовых блоков принимают 1200 и 1800 мм, а перемычечных – 600 мм. Толщину блоков берут на основе теплотехнического расчета и принимают 400 и 500 мм.

Стены из блоков проектируют чаще всего самонесущими. Кладку ведут на растворе марки не ниже 25 с расшиванием швов, крепят блоки гибкими Т- образбными анкерами из стержней диаметром 10 мм.

Стены из железобетонных и легкобетонных панелей являются наиболее индустриальными. Их устраивают в отапливаемых и неотапливаемых зданиях независимо от материала конструкций каркаса при шаге колонн 6 и 12 м. Высота панелей 1,2 и 1,8 м, используются также панели высотой 0,9 и 1,5 м.

На рис.14.2 показаны схемы разложения панелей по высоте. При этом низ первой (цокольной) панели совмещают, как правило, с отметкой пола здания. Верхний ряд панелей в пределах высоты помещения рекомендуется устанавливать ниже несущих конструкций покрытия на 0,6 м.

 

Рис.14.2 – Схемы раскладки панелей в стенах одноэтажных зданий:

а - в продольных стенах; б - в торцовых; 1-3 - при железобетонных фермах и балках покрытия; 4, 5 - при стальных фермах

 

Для неотапливаемых зданий применяют железобетонные ребристые, часторебристые и плоские панели из бетона марок 200-400 с обычной и предварительно напряженной арматурой. Разрезка стен из панелей определяется характером остекления (рис.14.3), которое может быть ленточным или проемным.

При монтаже панелей особое внимание уделяют вопросам их крепления и опирания (рис.14.4), а также стыкования панелей между собой. Горизонтальные и вертикальные швы рекомендуется заполнять эластичными материалами (пороизолом, гернитом и др.), а извне – дополнительно мастиками - герметиками типа УМ-40, УМС-50 и др.

 

 

 

Рис.14.3 – Варианты разрезки стен одноэтажных зданий:

а - при ленточном остеклении; б - то же, при сплошном; в-д - при проемах; 1 - деревянные или стальные оконные панели размером 1,2х6 м; 2 - оконные панели из труб

1,8х6 м; 3 – то же, из гнутых профилей; 4, 5 - деревянные оконные панели

 

Рис.14.4 – Детали крепления панелей к колоннам:

а - на опорный столик; б - на уголках; 1 - колонна; 2 - закладные детали; 3 - опорный столик; 4 - панель; 5 – сварные швы; 6 - элементы крепления; 7 - закладная деталь

панели стены

 

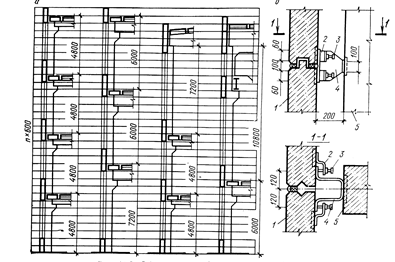
В многоэтажных зданиях наиболее эффективными являются стеновые панели (рис.14.5). Если стены навесные, то их опирают на стальные столики и крепят к колоннам, как в одноэтажных зданиях. Если стены расположены с относом от колонн (зазор оставляют для размещения коммуникаций), панели крепят к колоннам распорными болтами (рис.14,5,б) без применения сварки при монтаже.

 

Рис.14.5 – Стены из панелей многоэтажных зданий:

а - раскладка панелей; б - деталь крепления к колоннам; 1 - панель; 2 - кронштейн распорного болта; 3 - распорный болт; 4 - упор; 5 - колонна

 







Date: 2015-06-11; view: 785; Нарушение авторских прав



mydocx.ru - 2015-2026 year. (1.501 sec.) Все материалы представленные на сайте исключительно с целью ознакомления читателями и не преследуют коммерческих целей или нарушение авторских прав - Пожаловаться на публикацию