Главная Случайная страница


Полезное:

Как сделать разговор полезным и приятным Как сделать объемную звезду своими руками Как сделать то, что делать не хочется? Как сделать погремушку Как сделать так чтобы женщины сами знакомились с вами Как сделать идею коммерческой Как сделать хорошую растяжку ног? Как сделать наш разум здоровым? Как сделать, чтобы люди обманывали меньше Вопрос 4. Как сделать так, чтобы вас уважали и ценили? Как сделать лучше себе и другим людям Как сделать свидание интересным?


Категории:

АрхитектураАстрономияБиологияГеографияГеологияИнформатикаИскусствоИсторияКулинарияКультураМаркетингМатематикаМедицинаМенеджментОхрана трудаПравоПроизводствоПсихологияРелигияСоциологияСпортТехникаФизикаФилософияХимияЭкологияЭкономикаЭлектроника






Колоны. Подкрановые и обвязочные балки





 

Для устройства каркасов одноэтажных и многоэтажных промышленных зданий применяют железобетонные и стальные колонны.

Железобетонные колоны одноэтажных промышленных зданий (рис.13.6) могут быть с консолями и без них (если нет мостовых кранов). По расположению в плане их подразделяют на колонны средних и крайних рядов.

В зависимости от поперечного сечения колонны бывают прямоугольные, таврового профиля и двухветвевые. Размеры поперечного сечения зависят от величины действующих нагрузок. Применяют такие унифицированные размеры сечений колонн: 400х400, 400х600, 400х800, 500х500, 500х600 и 500х800 мм - для прямоугольных; 400х600, 400х800 мм - для тавровых и 400х1000, 500х1300, 500х1400, 500х1500, 600х1400, 600х1900 и 600х2400 мм для двухветвевых. Колонны могут состоять из нескольких частей, которые собирают на строительной площадке.

 

Рис.13.6 – Основные типы железобетонных колонн

одноэтажных промышленных зданий:

а - прямоугольного сечения для зданий без мостовых кранов при шаге 6 м; б – то же, при шаге 12 м; в – двухветвевые для зданий без мостовых кранов; г - прямоугольного сечения для зданий с мостовыми кранами; д – то же, двухтаврового сечения; е - двухветвевые для зданий с мостовыми кранами; е - общий вид колонны; 1 - закладочная деталь для крепления несущей конструкции покрытия; 2, 3 - то же, подкрановой балки; 4 - то же, стеновых панелей

 

Колонны с консолями состоят из надкрановой и подкрановой ветвей. Сечение надкранових ветвей чаще всего квадратное или прямоугольное: 400х400 или 500х500 мм.

Кроме основных колонн для устройства фахверков используют фахверковые колонны. Их устанавливают вдоль здания при шаге крайних колонн 12 м и длине панелей стен 6 м, а также в торцах зданий.

Для устройства каркасов многоэтажных зданий используют железобетонные колонны высотой на один, два и три этажа. Сечение колонн 400х400 и 400х600 мм (рис.13.7). Соединение ригелей с колоннами может быть консольным и безконсольным. Стыки колонн устраивают на 600-1000 мм выше перекрытия.

Рис.13.7 – Типы железобетонных колонн многоэтажных промышленных зданий

при оперании ригелей на консоли колонн

 

Стальные колонны одноэтажных зданий могут иметь постоянное по высоте и переменное сечение. В свою очередь, колонны с переменным сечением могут иметь подкрановую часть сплошного и сквозного сечения (рис.13.8). Сквозные колонны подразделяют на колонны с ветвями, соединенными связями, и колонны раздельные, которые состоят из независимо работающих шатровой и подкрановой ветвей (рис.13.8,д). Колонны постоянного сечения используют в случае применении кранов грузоподъемностью до 20 т и высоте здания до 9,6 м.

В случае, когда колонны в основном работают на центральное сжатие, применяют колонны сплошного сечения. Для изготовления сплошных колонн используют широкополочный прокатный или сплошной двутавр, а для сквозных колонн можно использовать двутавры, швеллеры и уголки.

Раздельные колонны устраивают в зданиях с тяжелыми мостовыми кранами (125 т и больше). В нижней части колонн для соединения с фундаментами предусматривают стальные базы (башмаки). Базы к фундаментам крепят анкерными болтами, которые закладывают в фундамент при их изготовлении. Нижнюю опорную часть колонны вместе с базой покрывают бетоном.

 

Рис.13.8 – Основные типы стальных колонн:

а - постоянного сечения; б-г – переменного сечения; д - раздельная

 

Жесткость и устойчивость зданий достигаются установкой системы вертикальных и горизонтальных связей. Так, для снижения и перераспределения усилий, которые возникают в элементах каркаса от температурных и других влияний, здание разделяют на температурные блоки и в середине каждого блока устраивают вертикальные связи между колоннами: при шаге колонн 6 м - крестовые; при шаге колонн 12 м - портальные (рис.13.9). Связи выполняют из уголков или швеллеров и приваривают к закладным частям колонн.

Для обеспечения работы мостовых кранов на консоли колонн монтируют подкрановые балки, на которые укладывают рельсы. Подкрановые балки обеспечивают также дополнительную пространственную жесткость здания. Они могут быть железобетонные и стальные.

Железобетонные подкрановые балки применяют при шаге колонн 6 и 12 м, но сравнительно редко, так как они имеют значительные массу, расход бетона и арматуры. Балки могут иметь тавровое (для длины 6 м) и двухтавровое сечение с утолщением стенок только на опорах.


К колоннам железобетонные подкрановые балки крепят сваркой закладных деталей и анкерными болтами. После тщательной установки и выверки гайки на анкерных болтах заваривают. Рельсы к балкам присоединяют прижимными лапками, которые располагают через 750 мм. В концах подкрановых путей устанавливают стальные упоры - ограничители, оборудованные амортизаторами-буферами из деревянного бруса.

 

Рис.13.9 – Вертикальные связи между колоннами и устройство температурного шва:

1 - крестовая связь; 2 - портальная связь

 

Более эффективными по сравнению с железобетонными являются стальные подкрановые балки, которые делятся на разрезные и неразрезные. Они более простые в изготовлении и монтаже. По типу сечения подкрановые балки могут быть сквозными (решетчатыми) и сплошными.

Высоту балок определяют по расчету, она может быть от 650 до 2050 мм с градацией размеров через 200 мм.

Крепление рельсов к балкам может быть неподвижным и подвижным. Неподвижное крепление осуществляют путем приваривания рельса к верхней полке балки при кранах грузоподъемностью до 30 т. Подвижное крепление, которое применяют наиболее часто, делают с помощью скоб и прижимных лапок.

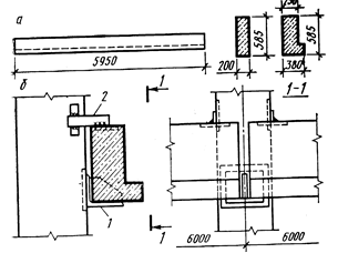
Если в качестве материалов для стен применяют кирпич или мелкие блоки, то для их опирания, а также в местах перепада высот смежных пролетов используют обвязочные железобетонные балки (рис.13.10,а). Их обычно устраивают над оконными проемами или лентами остекления.

Обвязочные балки длиной 5950 мм имеют высоту сечения 585 мм и ширину 200, 250 и 380 мм. Их устанавливают на опорные стальные столики и крепят к колоннам с помощью стальных планок, привариваемых к закладным элементам (рис.13.10,б).

 

 

Рис.13.10 – Обвязочные балки:

а - общий вид; б - узел крепления к колонне; 1 - стальной опорный столик;

2 - стальная планка

 







Date: 2015-06-11; view: 1300; Нарушение авторских прав



mydocx.ru - 2015-2026 year. (0.532 sec.) Все материалы представленные на сайте исключительно с целью ознакомления читателями и не преследуют коммерческих целей или нарушение авторских прав - Пожаловаться на публикацию