Главная Случайная страница


Полезное:

Как сделать разговор полезным и приятным Как сделать объемную звезду своими руками Как сделать то, что делать не хочется? Как сделать погремушку Как сделать так чтобы женщины сами знакомились с вами Как сделать идею коммерческой Как сделать хорошую растяжку ног? Как сделать наш разум здоровым? Как сделать, чтобы люди обманывали меньше Вопрос 4. Как сделать так, чтобы вас уважали и ценили? Как сделать лучше себе и другим людям Как сделать свидание интересным?


Категории:

АрхитектураАстрономияБиологияГеографияГеологияИнформатикаИскусствоИсторияКулинарияКультураМаркетингМатематикаМедицинаМенеджментОхрана трудаПравоПроизводствоПсихологияРелигияСоциологияСпортТехникаФизикаФилософияХимияЭкологияЭкономикаЭлектроника






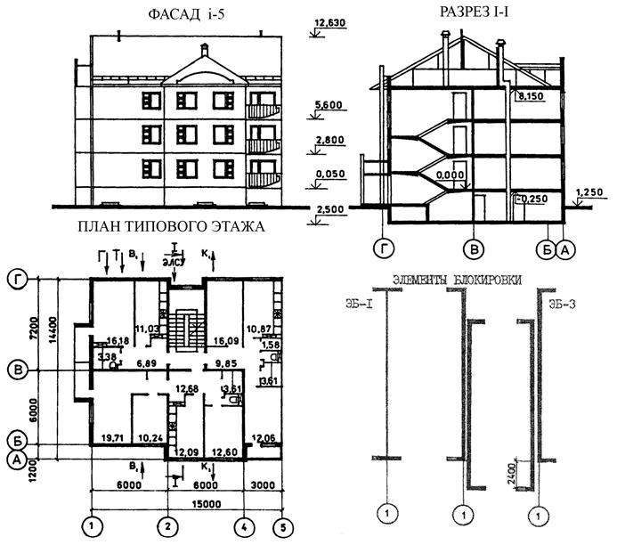
Блок-секция рядовая 4-этажная 8-квартирная





 


Вариант 36

Блок-секция торцевая правая 4-этажная 12-квартирная

 

 


Вариант 37

Блок-секция торцевая правая 4-этажная 12-квартирная


Вариант 38

Двухэтажный крупнопанельный 12-квартирный жилой дом-представитель


Вариант 39

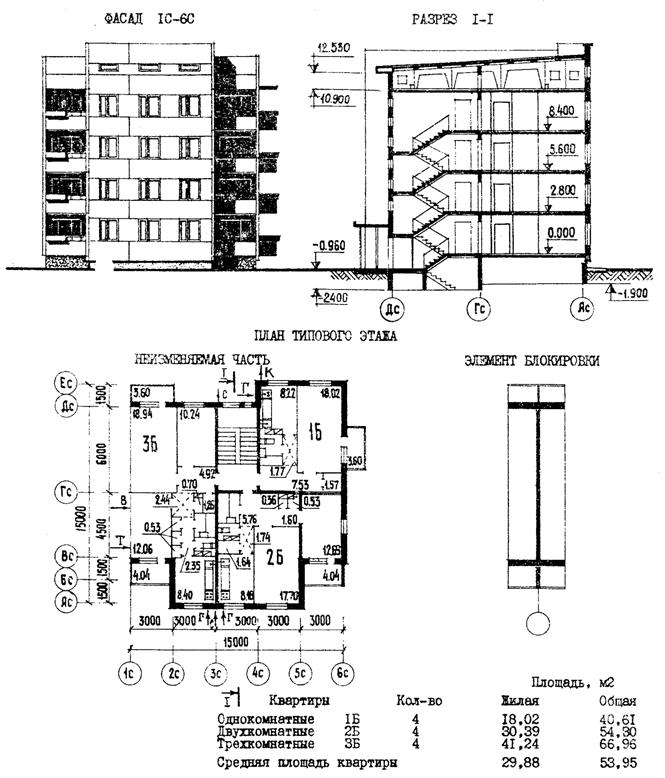
Блок-секция рядовая 9-этажная 12-квартирная

 

 

 

Квартиры Количество Площадь, м2
жилая общая
Однокомнатные   17,07 33,22
Двухкомнатные   29,21 50,27
Трехкомнатные   42,78 65,49
Трехкомнатные   42,78 65,79
Средняя площадь квартиры   32,95 53,70

 


Вариант 40

Блок-секция торцевая левая 3-этажная 9-квартирная

 

 

 

Экспликация квартир

Квартиры Количество Площадь, м2
жилая общая
Однокомнатные   16,18 40,66
Двухкомнатные   29,15 56,46
Трехкомнатные   42,55 74,11
Средняя площадь квартиры   29,29 57,08

 


 

Вариант 41

Блок-секция торцевая левая 3-этажная 12-квартирная

 

 







Date: 2015-06-11; view: 4389; Нарушение авторских прав



mydocx.ru - 2015-2026 year. (1.514 sec.) Все материалы представленные на сайте исключительно с целью ознакомления читателями и не преследуют коммерческих целей или нарушение авторских прав - Пожаловаться на публикацию