Главная Случайная страница


Полезное:

Как сделать разговор полезным и приятным Как сделать объемную звезду своими руками Как сделать то, что делать не хочется? Как сделать погремушку Как сделать так чтобы женщины сами знакомились с вами Как сделать идею коммерческой Как сделать хорошую растяжку ног? Как сделать наш разум здоровым? Как сделать, чтобы люди обманывали меньше Вопрос 4. Как сделать так, чтобы вас уважали и ценили? Как сделать лучше себе и другим людям Как сделать свидание интересным?


Категории:

АрхитектураАстрономияБиологияГеографияГеологияИнформатикаИскусствоИсторияКулинарияКультураМаркетингМатематикаМедицинаМенеджментОхрана трудаПравоПроизводствоПсихологияРелигияСоциологияСпортТехникаФизикаФилософияХимияЭкологияЭкономикаЭлектроника






Контора лесхоза и лесомелиоративной станции





 

 

 


Вариант17

Блок-секция рядовая 3-этажная 9-квартирная

 

Экспликация квартир

 

Квартиры Количество Площадь, м2
жилая общая
Однокомнатные   14,95 33,84
Двухкомнатные   28,23 52,42
Трехкомнатные   42,62 68,35
Средняя площадь квартиры   28,60 51,54

 


Вариант 18

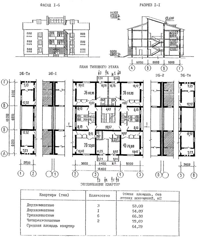
Блок-секция торцевая правая 4-этажная 12-квартирная


Вариант 19

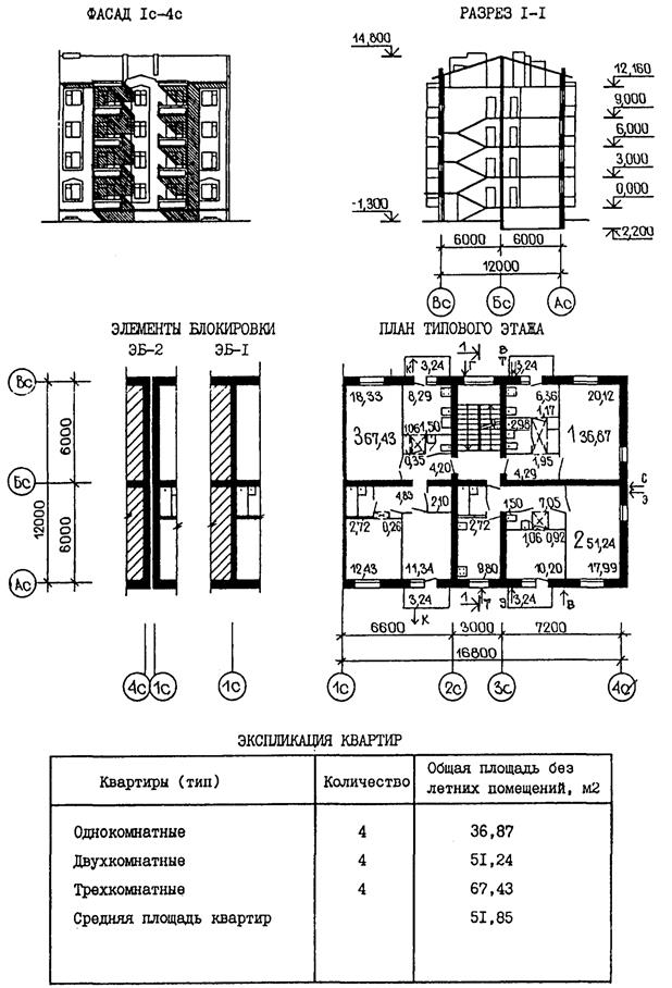
Трехэтажный 12-квартирный жилой дом

 

 


Вариант 20

Блок-секция торцевая правая 4-этажная 8-квартирная

 

Экспликация квартир

 

Квартиры Количество Площадь, м2
жилая общая
Двухкомнатные 2Б   29,4 48,94
Трехкомнатные 3А   39,21 58,69
Средняя площадь квартиры   33,08 52,60

Вариант 21

Блок-секция 5-этажная 20-квартирная с торцевыми окончаниями

 

 

 


Вариант 22

Блок-секция рядовая 9-этажная 40-квартирная

 

Экспликация квартир

 

 

Квартиры Количество Площадь, м2
жилая общая
Однокомнатные 1   13,46 35,01
Однокомнатные 1   13,98 33,92
Трехкомнатные 3   40,97 65,72
Трехкомнатные 3   41,59 67,58
Средняя площадь квартиры   27,50 50,56

Вариант 23







Date: 2015-06-11; view: 2030; Нарушение авторских прав



mydocx.ru - 2015-2026 year. (0.212 sec.) Все материалы представленные на сайте исключительно с целью ознакомления читателями и не преследуют коммерческих целей или нарушение авторских прав - Пожаловаться на публикацию