Главная Случайная страница


Полезное:

Как сделать разговор полезным и приятным Как сделать объемную звезду своими руками Как сделать то, что делать не хочется? Как сделать погремушку Как сделать так чтобы женщины сами знакомились с вами Как сделать идею коммерческой Как сделать хорошую растяжку ног? Как сделать наш разум здоровым? Как сделать, чтобы люди обманывали меньше Вопрос 4. Как сделать так, чтобы вас уважали и ценили? Как сделать лучше себе и другим людям Как сделать свидание интересным?


Категории:

АрхитектураАстрономияБиологияГеографияГеологияИнформатикаИскусствоИсторияКулинарияКультураМаркетингМатематикаМедицинаМенеджментОхрана трудаПравоПроизводствоПсихологияРелигияСоциологияСпортТехникаФизикаФилософияХимияЭкологияЭкономикаЭлектроника






Блок-секция 9-этажная 45-квартирная





Вариант 1

Блок-секция 9-этажная 45-квартирная

 

 


Вариант 2

Блок-секция рядовая 5-этажная 20-квартирная

 

 


Вариант 3

Блок-секция 9-этажная 31-квартирная

 

 

 


Вариант 4

Блок-секция торцевая левая 5-этажная 15-квартирная

 

 

 


Вариант 5

Блок-секция угловая правая 5-этажная 10-квартирная

 


Вариант 6

Общежитие на 117 мест для рабочих и служащих

 



Вариант 7

Блок-секция торцевая правая 5-этажная 20-квартирная

 

 


Вариант 8

Блок-секция угловая левая 5-этажная 10-квартирная


Вариант 9

Блок-пристройка для реконструкции действующих школ



Вариант 10

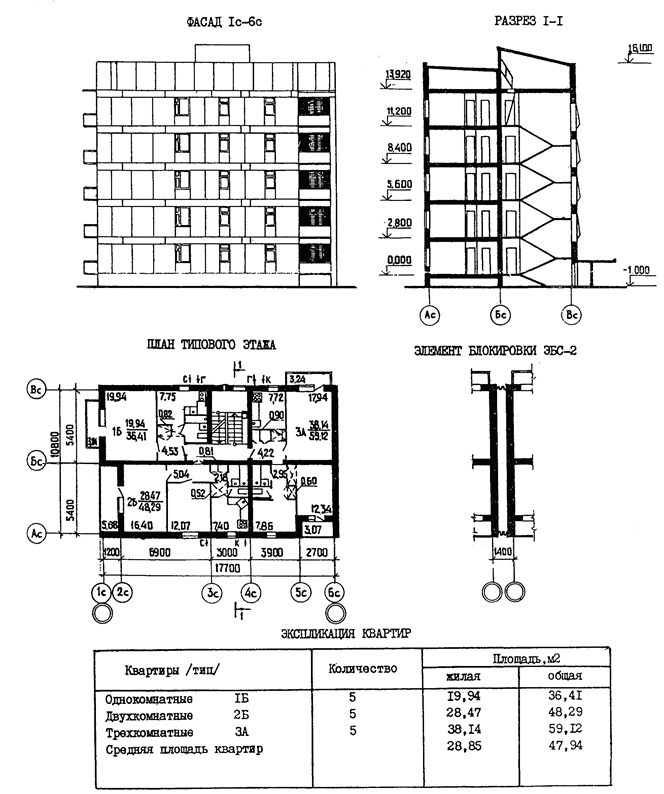
Блок-секция торцевая 5-этажная 25-квартирная

 

 

 


Вариант 11

Блок-секция торцевая 5-этажная 20-квартирная

 

 


Вариант 12

Блок-секция торцевая правая 4-этажная 12-квартирная

 

 

 


Вариант 13

Блок-секция торцевая 5-этажная 2-секционная 35-квартирная

 

 


 

Вариант 14

Двухэтажный двухсекционный жилой дом на 12 квартир

 

 


 

Вариант 15

Блок-секция 9-этажная 45-квартирная

 

 

 


Вариант 16







Date: 2015-06-11; view: 3907; Нарушение авторских прав



mydocx.ru - 2015-2026 year. (0.043 sec.) Все материалы представленные на сайте исключительно с целью ознакомления читателями и не преследуют коммерческих целей или нарушение авторских прав - Пожаловаться на публикацию