Главная Случайная страница


Полезное:

Как сделать разговор полезным и приятным Как сделать объемную звезду своими руками Как сделать то, что делать не хочется? Как сделать погремушку Как сделать так чтобы женщины сами знакомились с вами Как сделать идею коммерческой Как сделать хорошую растяжку ног? Как сделать наш разум здоровым? Как сделать, чтобы люди обманывали меньше Вопрос 4. Как сделать так, чтобы вас уважали и ценили? Как сделать лучше себе и другим людям Как сделать свидание интересным?


Категории:

АрхитектураАстрономияБиологияГеографияГеологияИнформатикаИскусствоИсторияКулинарияКультураМаркетингМатематикаМедицинаМенеджментОхрана трудаПравоПроизводствоПсихологияРелигияСоциологияСпортТехникаФизикаФилософияХимияЭкологияЭкономикаЭлектроника






Понятие о посадках. Допуск посадки. Схематическое изображение допусков и посадок. Понятие о системе допусков и посадок





Посадка – характер соединения двух деталей, определяемый разностью их размеров до сборки.

Допуск посадки - это сумма допусков отверстия и вала, составляющих соединение.

Различают три вида посадок: посадки с зазором (рис. 2, а, б); посадки с натягом; переходные посадки.

Посадка с зазором – посадка, при которой всегда образуется зазор в соединении, т.е. наименьший предельный размер отверстия больше наибольшего предельного размера вала.

Зазор ( S ) – это положительная разность между размером отверстия (D) и размером вала (d) (рис. 2, а).

. (13)

а) б)

 

Рис. 2. Схема образования зазоров и натягов в соединении вал – втулка

 

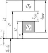
При посадке с зазором размер отверстия всегда больше или равен размеру вала, следовательно, на схеме поле допуска отверстия располагается выше поля допуска вала (рис. 3, а, б, в).

 

а б в

 

Рис. 3. Графическое изображение полей допусков для посадок с зазором: а – отклонения размеров отверстия и вала положительные; б – отклонения размеров отверстия и вала отрицательные; в – отклонения размеров отверстия положительные, вала – отрицательные

 

Наибольший зазор ( Smax ) – это разность между наибольшим предельным размером отверстия и наименьшим предельным размером вала, т.е.

(14) или . (15)

 

Наименьший зазор ( Smin ) – это разность между наименьшим предельным размером отверстия и наибольшим предельным размером вала, т.е.

(16) или (17)

Средний зазор ( Sm ) – это среднее арифметическое наименьшего и наибольшего зазоров, т.е.

. (18)

 

Допуск посадки с зазором ( ITs ) – сумма допусков отверстия и вала, составляющих соединение (19) или . (20)

 

Пример посадки с зазором: Ф25Н7/f6

Параметры отверстия:ES=+21 мкм; EI= 0; TD=21 мкм

Параметры вала: es=-20 мкм;ei=-33 мкм;Td=13 мкм

Наибольший и наименьший зазоры: Smax=ES-ei=+21-(-33)=54 мкм

Smin=EI-es=0-(-20)=20 мкм

Допуск посадки: TS=Smax-Smin=54-20=34 мкм

TS=TD+Td=21+13=34 мкм

 

Посадка с натягом – посадка, при которой всегда образуется натяг в соединении, т.е. наибольший предельный размер отверстия меньше наименьшего предельного размера вала. При графическом изображении поле допуска отверстия расположено под полем допуска вала (рис. 4, а, б, в).

Натяг ( N ) – это отрицательная разность размеров отверстия и вала до сборки (рис. 2, б):

. (21)

 

Наибольший натяг ( Nmax ) – это разность между наименьшим предельным размером отверстия и наибольшим предельным размером вала:

(22) или . (23)

 

Наименьший натяг ( Nmin ) – это разность между наибольшим предельным размером отверстия и наименьшим предельным размером вала:

 

(24 или . (25)

 

а б в

 

Рис. 4. Графическое изображение полей допусков для посадок с натягом: а – отклонения размеров отверстия и вала положительные; б – отклонения размеров отверстия и вала отрицательные; в – отклонения размеров вала положительные, отверстия – отрицательные

 

Средний натяг ( Nm ) – среднее арифметическое наибольшего и наименьшего натягов:

. (26)

 

Допуск посадки с натягом ( ITN ) – разность между наибольшим и наименьшим натягами (сумма допусков отверстия и вала, составляющих соединение):

 

(27) или . (28)

 

Посадки с натягом используются в тех случаях, когда необходимо передать крутящий момент или осевую силу без дополнительного крепления за счет сил трения, создаваемых натягом.

 

Пример посадки с натягом: Ф25r6/H7

Параметры отверстия:ES=+21 мкм; EI= 0; TD=21 мкм

Параметры вала: es=+41 мкм;ei=+28 мкм;Td=13 мкм

Наибольший и наименьший натяги: Nmax=es-EI=+41-0=41 мкм

Nmin=ei-ES=+28-21=7 мкм

Допуск посадки: TN=Nmax-Nmin=41-7=34 мкм

TN=TD+Td=21+13=34 мкм

 

 

Переходная посадка – посадка, при которой возможно получение как зазора, так и натяга в зависимости от действительных размеров отверстия и вала. Для переходной посадки характерно частичное перекрытие полей допусков отверстия и вала при их графическом изображении (рис. 5).

Переходная посадка характеризуется наибольшим зазором Smax и наибольшим натягом Nmax. При определении наибольшего зазора и наибольшего натяга следует воспользоваться формулами (14); (15) и (22); (23).

Допуск переходной посадки ITSN равен сумме допусков отверстия и вала, составляющих соединение:

(29) или . (30)

а б в

 

 

 


Рис. 5. Возможное расположение полей допусков отверстий и валов в переходных посадках: а – поля допусков располагаются над нулевой линией; б – поля допусков пересекают нулевую линию; в – поля допусков располагаются под нулевой линией

 

Пример переходной посадки: Ф25H7/k6

Параметры отверстия:ES=+21 мкм; EI= 0; TD=21 мкм

Параметры вала: es=+15 мкм;ei=+2 мкм;Td=13 мкм

Наибольший и наименьший натяги: Nmax=es-EI=+15-0=15 мкм

Nmin=ei-ES=+2-21=-19 мкм -Nmin=Smax

Допуск посадки: TN=Nmax-Nmin=15-(-19)=34 мкм

TN=TD+Td=21+13=34 мкм

 







Date: 2015-06-11; view: 3004; Нарушение авторских прав



mydocx.ru - 2015-2026 year. (1.985 sec.) Все материалы представленные на сайте исключительно с целью ознакомления читателями и не преследуют коммерческих целей или нарушение авторских прав - Пожаловаться на публикацию