Главная Случайная страница


Полезное:

Как сделать разговор полезным и приятным Как сделать объемную звезду своими руками Как сделать то, что делать не хочется? Как сделать погремушку Как сделать так чтобы женщины сами знакомились с вами Как сделать идею коммерческой Как сделать хорошую растяжку ног? Как сделать наш разум здоровым? Как сделать, чтобы люди обманывали меньше Вопрос 4. Как сделать так, чтобы вас уважали и ценили? Как сделать лучше себе и другим людям Как сделать свидание интересным?


Категории:

АрхитектураАстрономияБиологияГеографияГеологияИнформатикаИскусствоИсторияКулинарияКультураМаркетингМатематикаМедицинаМенеджментОхрана трудаПравоПроизводствоПсихологияРелигияСоциологияСпортТехникаФизикаФилософияХимияЭкологияЭкономикаЭлектроника






Виды сушильных камер и пиломатериалов. Принципиальные схемы и графики процессов воздухообмена в конвективных сушильных камерах с однократной и многократной циркуляцией





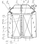
Сушильные камеры для пиломатериалов

По принципу действия различают сушилки непрерывного и пе-риодического действия.

Сушилки периодического действия работают путем периодиче-ского чередования сушильных циклов. Каждый цикл складывается из полной загрузки материала в сушилку, собственно сушки и полной выгрузки материала из сушилки.

Камеры с поперечно-горизонтальной циркуляцией

Камеры с поперечно-вертикальной циркуляцией

 

Для сушилок непрерывного действия характерен непрерывный процесс сушки. Материал порциями или непрерывно загружается в сушилку, проходит через нее, а затем выгружается из нее.

В РБ используются камеры периодического действия.

Укладка пиломатериалов в штабель

Штабель пиломатериалов состоит из горизонтальных рядов досок, разделенных по высоте межрядовыми прокладками.

При укладке должны обеспечиваться:

o Механическая прочность

o Стабильность его формы и уложенных в него пиломатериалов

o Равномерное омывание всех досок циркулирующими сушиль- ным агентом

 

При камерной сушке используются штабеля двух типов: пакет- ный, формируемый из нескольких (2-4) сушильных пакетов и цель- ный, собираемый целиком на месте его формирования.

Принципиальная схема сушилки и график процесса в ней опреде-ляется только родом сушильного агента и кратностью циркуляции, поэтому число вариантов принципиальных схем сравнительно неве-лико. К основным из них относятся варианты воздушной сушилки с одно- или многократной циркуляцией, газовой сушилки с одно- или многократной циркуляцией и сушилки, действующей на перегретом паре.

 

 

Воздушная сушилка с однократной циркуляцией. Принципи-альная схема этой сушилки весьма проста. Свежий атмосферный воздух в состоянии 0 поступает в калорифер. Процесс нагревания изображается на Id - диаграмме отрезком 0-1 (d=const). В состоя-нии 1 воздух подводится к штабелю или слою высушиваемого материала и при движении через него (т.е при испарении влаги) изменяет свое состояние по линии постоянного теплосодержания 1-2. Отработавший воздух в состоянии 2 полностью удаляется в атмосферу.

Недостаток этой сушилки – невозможность широкого регу-лирования состояния воздуха. Его параметры при входе в слой или штабель материала могут характеризоваться только точками, расположенными на вертикали d=const, проходящей через точку 0.

Воздушная сушилка с многократной циркуляцией. Принци-пиальная схема такой сушилки и график в ней показаны на рис.. Воздух поступает в соприкосновение с материалом в состояние 1. Испарение влаги изображается отрезком 1-2. Отработавший воздух 2 удаляется в атмосферу только частично. Значительная же часть его смешивается со свежим воздухом, подаваемым в сушилку. Процесс смешения характеризуется отрезком 0-2. По-лученная смесь 3 нагревается в калорифере. В результате (отре-зок 3-1) восстанавливается первоначальное состояние воздуха 1, с которым он вступает в штабель или слой материала для по-вторного цикла.

Сушилки с многократной циркуляцией очень гибки в регу-лировании процесса. Состояние воздуха, вступающего в слой или штабель материала, может изменяться в широких пределах за счет изменения степени нагрева воздуха в калорифере и крат-ности воздухообмена.

 







Date: 2015-06-11; view: 1247; Нарушение авторских прав



mydocx.ru - 2015-2026 year. (4.366 sec.) Все материалы представленные на сайте исключительно с целью ознакомления читателями и не преследуют коммерческих целей или нарушение авторских прав - Пожаловаться на публикацию