Главная Случайная страница


Полезное:

Как сделать разговор полезным и приятным Как сделать объемную звезду своими руками Как сделать то, что делать не хочется? Как сделать погремушку Как сделать так чтобы женщины сами знакомились с вами Как сделать идею коммерческой Как сделать хорошую растяжку ног? Как сделать наш разум здоровым? Как сделать, чтобы люди обманывали меньше Вопрос 4. Как сделать так, чтобы вас уважали и ценили? Как сделать лучше себе и другим людям Как сделать свидание интересным?


Категории:

АрхитектураАстрономияБиологияГеографияГеологияИнформатикаИскусствоИсторияКулинарияКультураМаркетингМатематикаМедицинаМенеджментОхрана трудаПравоПроизводствоПсихологияРелигияСоциологияСпортТехникаФизикаФилософияХимияЭкологияЭкономикаЭлектроника






Требования к формированию сооружений с искусственным льдом





Функционально-пространственные связи помещений любого сооруже­ния с искусственным льдом можно свести к трем категориям (рис. 5.10):

—обязательные связи между ледяной поверхностью и вспомогательны­
ми помещениями, обеспечивающие функциональное использование разде­
вальных, судейских, помещений льдоуборочной машины, помещения мед­
сестры;

—желательные связи между дополнительными функциональными эле­
ментами (залами, помещениями тренажеров) и раздевальными, методичес­
ким кабинетом, реабилитационными помещениями;

—необязательные связи между основными и дополнительными функци­
ональными элементами, а также вспомогательными помещениями, кото­
рые могут размещаться обособленно (помещения администрации, инже­
нерно-технического персонала).

Соревнования по фигурному катанию включают одиночное катание жен­щин и мужчин, парное катание, спортивные танцы. Ледяная площадка для соревнований должна иметь форму прямоугольника 60 х 30 м.

Учебно-тренировочные занятия подразделяются на школу и подготовку произвольной программы. Минимальный размер площадки с учетом разу­чивания фигур — 30 х 20 м. При подготовке произвольной программы необ­ходима полноразмерная площадка 60 х 30 м.



148 физкультурно-спортивные сооружения

Хоккей с шайбой проводится на площадке 61 х 30 м с радиусом закругле­ния 8,5 м. Вдоль продольных сторон площадки оставляются свободные зоны для размещения судей, мест запасных и оштрафованных во время соревно­ваний игроков. Таким образом, площадки, предназначенные только для учеб­но-тренировочных занятий по хоккею с шайбой, могут располагаться в зале, имеющем лишь проход вокруг этой площадки, в то время как сооружение, предназначенное для соревнований, а также для учебно-тренировочных занятий должно иметь свободные зоны вокруг льда (рис. 5.11).

Крытая арена, предназначенная для соревнований по фигурному ката­нию или хоккею с шайбой, имеет размеры 66 х 36 м с учетом необходимых свободных зон вокруг ледяной площадки.

Поле для игры в хоккей с мячом — прямоугольный участок ровной ледя­ной поверхности длиной от 90 до 110 м, шириной от 50 до 70 м (рис. 5.12). Габариты поля зависят от ранга соревнования. Вокруг поля предусматрива­ется зона безопасности шириной 2,5 — 3,0 м. Игра в хоккей с мячом получи­ла распространение в основном в России и в странах северной Европы.

Крытые сооружения, включающие поле для игры в хоккей с мячом, остаются уникальными ввиду большой плоскости искусственного льда, необходимого для этой игры. Тренировки и неофициальные соревнования могут проводиться и на площадке 61 х 30 м.



СООРУЖЕНИЯ ДЛЯ КОНЬКОБЕЖНОГО СПОРТА, ХОККЕЯ, ФИГУРНОГО КАТАНИЯ_____________________________________ 149

Скоростной бег на коньках проводится на конькобежных дорожках стан­дартного размера. Для соревнований длина замкнутого кольца 400 или 333,3 м с двумя полосами шириной по 4 — 5 м. Внутри овала — дорожка для раз­минки 3 - 5 м. Внутренний радиус - 25 м. Вокруг конькобежной дорожки -зона безопасности шириной 1,5 - 2 м с защитным барьером: в открытых сооружениях — из снега, а в крытых — из эластичного материала. За барье­ром размещается проход. Общая ширина зоны 2,5 — 3 м (рис. 5.13). Часто для тренировок конькобежцев дополнительно к дорожке предусматривается круг или кольцо, образуемое частично за счет поворота конькобежной дорожки.

Для учебно-тренировочной работы с юными конькобежцами предлагается использовать конькобежную дорожку длиной 250 м, при этом ширина дорожки равна 4 м. В крытом сооружении 250-метровая дорожка может быть использова­на не только для учебно-тренировочных занятий, но и для соревнований.

В зависимости от принятой длины конькобежной дорожки — 250; 333,3; 400 м, принятых радиусов поворотов, ширины каждой дорожки видоизме­няется также расчетная длина ее прямых участков. Так, если для 250-метро­вой дорожки с внутренним радиусом 21 м и наружным 25 м она составляет 51,099 м, то для 400-метровой дорожки при внутреннем радиусе 25 м и 5-метровой ширине дорожки она равна 111,98 м.


150___________________________________________________________ физкультурно-спортивные сооружения

При строительстве крупных сооружений с искусственным наморажива­нием льда, как открытых, так и крытых, экономически целесообразно пре­дусматривать максимально возможную универсализацию использования ле­довой поверхности. Например, рационально сочетание дорожки для скоро­стного бега на коньках и поля для хоккея с мячом (рис. 5.14).


Повышенный интерес к шорт-треку в последние годы в странах Амери­ки, Австралии, Европы определен возможностью использовать многочис­ленные крытые хоккейные площадки. Раньше шорт-трек существовал как разновидность скоростного бега на коньках, а в середине 80-х гг. стал пре­вращаться в самостоятельный вид спорта, и все сильнейшие шорттрекови­ки Канады, Японии, Голландии перешли на специализированную подго­товку. Беговую дорожку длиной 111,12 м размечают на площадке, ограни­ченной бортами хоккейной коробки (рис. 5.15). Соревнования зрелищны и


СООРУЖЕНИЯ ДЛЯ КОНЬКОБЕЖНОГО СПОРТА, ХОККЕЯ, ФИГУРНОГО КАТАНИЯ 151

эмоциональны. За шорт-треком — большое будущее, и это будущее видится прежде всего в его массовости. У нас много спортивно-зрелищных залов с искусственным льдом (с хоккейной ареной), которые могут использовать­ся для соревнований и тренировок. Подготовка шорттрековика включает элементы акробатики, легкой атлетики, силовую подготовку в зале, мини-футбол, баскетбол, тренировку на велотреке, бег на роликах и т.д.

Комплекс дополнительных занятий, предназначенный для трениро­вок хоккеистов, соответствует организации тренировочного процесса для шорттрековиков.

Среди игр на льду наибольшей популярностью пользуется керлинг. Игра проводится на дорожке размером 44,5 х 4,75 м. На ледяной дорожке яркой краской нанесен «дом» — круглая мишень — цель, в которую надо попасть скользящей по льду битой. В отличие от тира «мишень» расположена не вертикально, а горизонтально. Как правило, керлинг проводится на двух и более дорожках по 45 х 10-30 м (рис. 5.16). Устраиваются специальные пло-


152 физкультурно-спортивные сооружения

щадки для керлинга, для тренировок и для соревнований, состоящие из 6 дорожек. Увеличенная до 60 х 30 м площадка из 6 дорожек может использо­ваться начинающими фигуристами и для массового катания, но не для хок­кея, так как яркая разметка площадки мешает игре.

Учебно-тренировочный процесс — многолетняя и целенаправленная под­готовка, охватывающая ряд возрастных периодов. Учебная работа ведется круглогодично и поэтапно, начиная с групп подготовки и до высшего спортивного мастерства. По фигурному катанию занятия начинаются с 5 лет, по хоккею с 10 и рассчитаны на 10 лет для фигуристов, на 9 - для хоккеистов. Фигурное катание - спорт с ранней специализацией, уже на первом этапе существенная часть подготовки ведется на льду. Для стабиль­ных занятий фигуристов и хоккеистов помимо демонстрационной арены не­обходимы три тренировочных площадки. В демонстрационном сооружении следует иметь хотя бы один тренировочный каток, обеспечивающий ста­бильные круглогодичные занятия.

Учебная работа по подготовке фигуристов и хоккеистов складывается из теоретических и практических занятий для всесторонней подготовки спорт­сменов. Восстановительные мероприятия, входящие в общефизическую под­готовку, укрепляют здоровье юных спортсменов. Практические занятия -общая и специальная физическая подготовка, половина которой проходит на льду. Общая подготовка включает плавание и бег, занятия на воздухе, в зале, в помещении индивидуальной силовой подготовки.

В тренировках фигуристов и хоккеистов большую роль играет общефизи­ческая подготовка в зале. Методика включает ручные игры, основную гим­настику, занятия элементами акробатики, «сухую» отработку фигуристами поддержек, произвольной программы. Для этих занятий необходим зал 30 (36) х 18 х 8 м в составе сооружения.


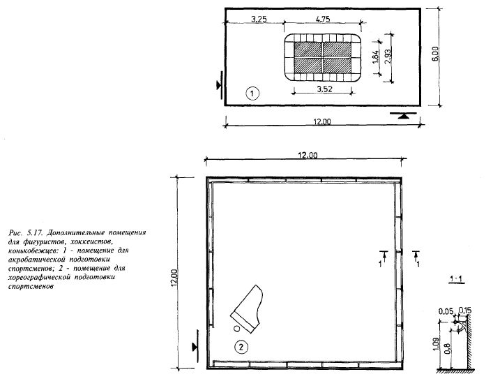
Силовая подготовка (рис. 5.17) стала обязательной частью учебно-трениро-


СООРУЖЕНИЯ ДЛЯ КОНЬКОБЕЖНОГО СПОРТА, ХОККЕЯ, ФИГУРНОГО КАТАНИЯ_____________________________________ 153

вочного процесса по большинству видов спорта, в том числе по хоккею и фи­гурному катанию. При различном ее объеме и характере для каждого занимаю­щегося она осуществляется в форме индивидуальных занятий с тренером. Для расстановки оборудования — помоста, тренажеров и пр. — необходимо поме­щение 12 х 6 х 4 м в составе сооружения. Специальная подготовка спортсменов имеет свои характерные особенности. Занятия хореографией — основа фигур­ного катания. Хореографические упражнения проделывают как у станка, так и в центре зала. Площадь зала для 30 занимающихся - 12 х 12 х 4,8 (6) м.

В современной подготовке фигуристов обязательна, а в ряде других видов желательна индивидуальная тренировка вестибулярного аппарата путем уп­ражнений на батуте. В помещении 12 х 6 х 5 (6) м, если полотно батута врезано заподлицо с полом, высота помещения может быть понижена до 5 м.

В методике тренировки конькобежцев все увеличивается роль специали­зированной физической и координационной подготовки. Существенное зна­чение приобрели тренажерные установки, на них ведутся специализирован­ная подготовка спортсменов (тренажеры обеспечения), совершенствова­ние уровня технической подготовки (координационные тренажеры). Исходя из габаритов универсальных тренажеров, требуемые размеры тренажерного зала - 24 х 12 м либо 24 х 18 м (при расширенном составе тренажеров). В обоих случаях обязателен батут, а значит, и высота 6 м. Необходимо поме­щение для имитационного бега на коньках 12 х 6 м или 24 х 6 м высотой 4 м, помещения силовой подготовки 12 х 6 м или 12 х 18 м.

В сооружении желателен игровой зал, используемый также для общефи­зической подготовки спортсменов, размером 30 (36) х 18 м, высотой 8 м.

При конькобежной дорожке должны быть предусмотрены помещения для судей по конькам. Они располагаются в районе финишного створа на высоте 2 — 3 м (примерно на уровне 7-го и 8-го рядов): помещения для судьи-информатора (3 м2), четырех судей-хронометристов и двух судей-секретарей на финише (7 м2), служба электронного хронометража (2-3 человека, 3 м2), управление табло (6 м2), аппаратная для музыкального сопровождения парадов, награждений, выступлений фигуристов; комнаты для судей по конькам, которые следует разместить рядом с помещениями судей в районе финишного створа.

В состав сооружения для конькобежного спорта должны включаться от­крытые сооружения, например роликодром с 200-метровой дорожкой. Ши­рина дорожки 8 м, т.е. 2 дорожки по 4 м каждая, различные тренировочные дорожки — опилочная 100 м, рекортановая 100 м, обе шириной по 5 м. Необ­ходимы вспомогательные помещения для спортсменов, судейские помеще­ния. Конькобежные дорожки используются для массового катания и, следо­вательно, должны иметь весь комплекс помещений для обслуживания посе­тителей.







Date: 2015-06-07; view: 1651; Нарушение авторских прав



mydocx.ru - 2015-2026 year. (1.282 sec.) Все материалы представленные на сайте исключительно с целью ознакомления читателями и не преследуют коммерческих целей или нарушение авторских прав - Пожаловаться на публикацию