Приложение К
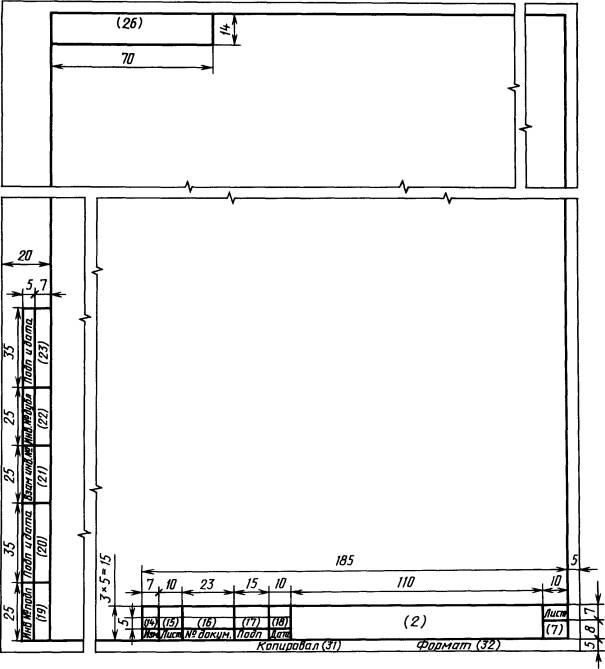
Основная надпись для текстовых конструкторских документов
(первый или заглавный лист)


Основная надпись для чертежей (схем) и текстовых конструкторских документов (последующие листы)
Форма 2а

ЛИСТ СОГЛАСОВАНИЯ
СОГЛАСОВАНО
| Заместитель директора по учебной работе
| Н.В. Калугина
| | Председатель ЦМК автоматизации и ИКТ
| Н.С. Агупова
| | Председатель ЦМК технических дисциплин
| В.В. Звездихина
| | Председатель ЦМК экономических и социальных дисциплин
| Н.В. Фомичева
| |
|
|
[1] Параметры определяются настоящим стандартом и методическими указаниями по выполнению дипломного проекта (работы)
Date: 2015-07-27; view: 440; Нарушение авторских прав | Понравилась страница? Лайкни для друзей: |
|
|