Главная Случайная страница


Полезное:

Как сделать разговор полезным и приятным Как сделать объемную звезду своими руками Как сделать то, что делать не хочется? Как сделать погремушку Как сделать так чтобы женщины сами знакомились с вами Как сделать идею коммерческой Как сделать хорошую растяжку ног? Как сделать наш разум здоровым? Как сделать, чтобы люди обманывали меньше Вопрос 4. Как сделать так, чтобы вас уважали и ценили? Как сделать лучше себе и другим людям Как сделать свидание интересным?


Категории:

АрхитектураАстрономияБиологияГеографияГеологияИнформатикаИскусствоИсторияКулинарияКультураМаркетингМатематикаМедицинаМенеджментОхрана трудаПравоПроизводствоПсихологияРелигияСоциологияСпортТехникаФизикаФилософияХимияЭкологияЭкономикаЭлектроника






ВВЕДЕНИЕ. по дисциплине “Сварка давлением”

ПОЯСНИТЕЛЬНАЯ ЗАПИСКА

к курсовому проекту

по дисциплине “Сварка давлением”

Тема “Разработка технологического процесса и оборудования

для точечной контактной сварки”

 

Разработал

студент группы ТиУВ-08

 

Проверил

доцент С.В. Щетинин

 

Мариуполь 2012г

РЕФЕРАТ

 

 

Курсовой проект включает расчётную и графическую часть.

Пояснительная записка содержит 36 страницы печатного текста, 7 рисунков, 7 таблиц, 1 приложение.

Графическая часть состоит из двух листов формата А1 и одного листа формата А2.

 

В курсовом проекте на основании анализа конструкции и материала изделия разработан технологический процесс контактной сварки, произведен расчет режима, включающего расчет величины тока, усилия сжатия и цикла сварки, расчет сварочного контура и трансформатора, выбрана машина для точечной сварки.

 

ТОЧЕЧНАЯ СВАРКА, ЛАТУНЬ, КАРКАС, ЭЛЕКТРОД, СВАРОЧНЫЙ КОНТУР, ТРАНСФОРМАТОР, КОНТАКТНАЯ МАШИНА

 

СОДЕРЖАНИЕ

ВВЕДЕНИЕ…………………………………………………………………… 4

ХАРАКТЕРИСТИКА ИЗДЕЛИЯ…………………………………………… 6

ХАРАКТЕРИСТИКА И СВАРИВАЕМОСТЬ МАТЕРИАЛА ИЗДЕЛИЯ … 8

СПОСОБ СВАРКИ И ТИП СОЕДИНЕНИЯ…… ……………………… 11

РАСЧЕТ РЕЖИМА СВАРКИ………… ………………………………….....15

ПРОЕКТИРОВАНИЕ И РАСЧЕТ СВАРОЧНОГО КОНТУРА 22

Проектирование сварочного контура…………………………………..22

5.2 Расчет габаритных размеров сварочного контура……………..............24

Расчет сечений элементов сварочного контура………… ……… ……25

Расчет общего электрического сопротивления сварочного контура…29

Расчет вторичного номинального напряжения машины…………….31

РАСЧЕТ СВАРОЧНОГО ТРАНСФОРМАТОРА………………………… 32

Конструктивные особенности трансформатора…………………….. 32

6.2 Расчет обмоток трансформатора………………………………………. 34

6.3 Расчет магнитопровода…………………………………………………. 36

6.4 Расчет трансформатора…………………………………………………. 38

7 МАШИНА КОНТАКТНОЙ СВАРКИ………………………………… 42

8 ТЕХНОЛОГИЧЕСКИЙ ПРОЦЕСС ИЗГОТОВЛЕНИЯ ИЗДЕЛИЯ……… 44

9. СБОРОЧНО-СВАРОЧНОЕ ПРИСПОБЛЕНИЕ …………………………. 47

ЗАКЛЮЧЕНИЕ ……………………………………………………………...48

ПЕРЕЧЕНЬ ССЫЛОК……………………………………………………… 49

ПРИЛОЖЕНИЕ А СПЕЦИФИКАЦИИ……………………………………. 50

 

 

ВВЕДЕНИЕ

Контактная сварка – процесс получения не­разъемного соединения металлических деталей за счет межатомных сил связей в результате на­грева электрическим током и пластического деформирования усилием сжатия[1,2,3]. Таким образом, кон­тактная сварка один из видов сварки давлением. С физической точки зрения соедине­ние при контактной сварке, как и при лю­бом другом виде сварки, образуется за счет действия сил междуатомного взаимодействия. Нагрев и пластическая деформа­ция создают при контактной сварке бла­гоприятные условия для развития этих сил между свариваемыми поверхностя­ми. В большинстве случаев нагрев осуществляется теплом, выделяемым током, как на активном сопротивлении свари­ваемых деталей, так и на контактном со­противлении между ними. Отсюда проис­ходит и название процесса контактная сварка. Контактная сварка осуществляется без расплавления металла – сварка в пла­стическом состоянии, значительно чаще, она заканчивается после местного расплавления металла в зоне соединения.

Точечная сварка – способ контактной сварки, при котором детали сваривают по отдельным ограниченным участкам касания. Точечная сварка широко применяется в штампосварных конст­рукциях, в которых две или более деталей, штампованные из листа, свариваются в жесткий узел, например, пол легкового автомобиля, кабина грузовика и др. Точками часто свариваются каркасные конструкции, например, боковины и крыша пассажирского вагона, бункер комбайна, узлы самолета и др.

Широко применяется точечная сварка пересекающихся стержней диаметром до 25 мм и выше при изготовлении арматуры железобе­тона в виде сеток и каркасов.

Точечная сварка дает лучшие результаты при изготовлении уз­лов из относительно тонкого металла в стальных конструкциях большого размера обычно до 2,5–4 мм; в небольших узлах, легко подаваемых к мощным стационарным машинам, до 5–6 мм. Специальные машины позволяют сваривать сталь и значительно боль­шей толщины. Практически освоена точечная сварка деталей из легких сплавов толщиной до 6–7 мм. Важная область точечной сварки – соединение очень тонких деталей в электровакуумной технике, приборостроении и др. При сварке компактных узлов обычно применяют стационарные точечные машины мощностью от нескольких сот ватт до 1000 кВт. При сварке в массовом произ­водстве с большим количеством точек, например, арматурных сеток, узлов автомобиля и др. успешно применяются многоточечные машины. Общая мощность такой машины нередко превышает 1000 кВт.


Современные машины осуществляют сварку по автоматизированному циклу [4,5]. Машины средней и большей мощности имеют пнев­матический, реже гидравлический привод механизма сжатия элек­тродов, иногда развивающий усилие в несколько тонн. Применяет­ся и электропривод в сочетании с кулачковым механизмом; в неав­томатических машинах – педальный привод.

1 ХАРАКТЕРИСТИКА ИЗДЕЛИЯ

 

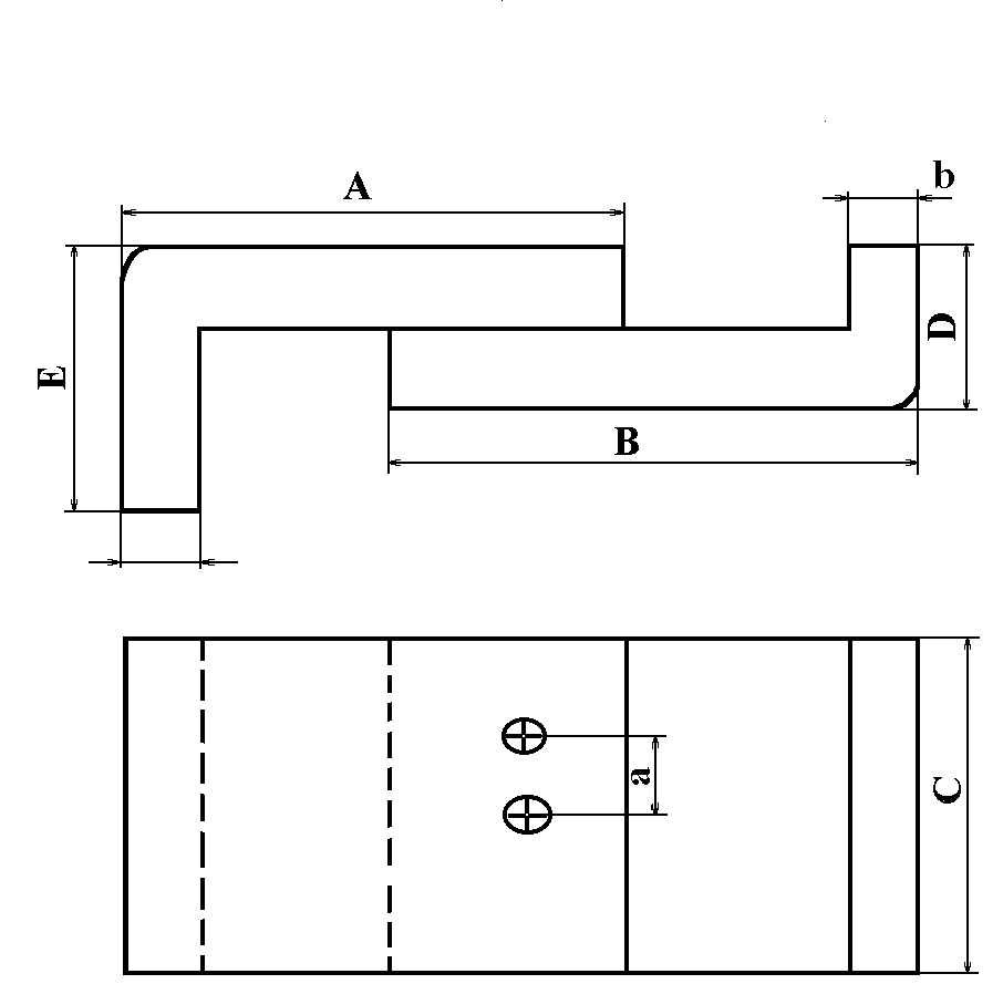
Согласно заданию необходимо разработать технологический процесс контактной сварки каркаса (рис.1.1), который представляет собой конструкцию из двух сваренных внахлест неравнобоких уголков с размерами А=750 мм, В=500 мм, С=550мм, D=200 мм, E=180 мм, b=0.8 мм, a=30 мм.

Рисунок 1.1 – Каркас

 

Подобные узлы применяются для изготовления различных приспособлений сварочной арматуры, работающих в средах повышенной агрессивности, теплообменников, деталей печной арматуры.

Перечень прокатных профилей с указанием формы, геометрических характеристик, массы единицы длины, допусков и условий поставки называется сортаментом. Разнообразие видов профилей, входящих в сортамент, а также достаточно частая градация размеров одного вида профиля обеспечивают экономичное проектирование конструкций при возможности создания разнообразных конструктивных форм. Коэффициент градации – отношение площади сечения данного профиля Fn к площади сечения ближайшего меньшего Fn-1 в каждом сортаменте имеет переменное значение. В области наиболее применяемых профилей коэффициент градации меньше. Уголковые профили прокатывают в виде равнобоких ГОСТ 8509-72 и неравнобоких ГОСТ 8510-72 уголков. Сортамент уголков весьма обширен: от очень малых профилей с площади сечения 1-1,5 см2 до мощных профилей с площадью сечения 140 см2. Полки уголков имеют параллельные грани, что облегчает конструирование. Широкое применение уголки имеют в легких сквозных конструкциях. Рабочие стержни из уголков обычно компонуются в симметричные сечения из двух или четырех уголков. Более экономичны уголки с меньшими толщинами полок. В сжатых стержнях сечения, составленные из тонких уголков, обладают большей устойчивостью. В стержнях с отверстиями для болтов ослабление сечения отверстиями тем меньше, чем тоньше полки.

 

 

 

2 ХАРАКТЕРИСТИКА И СВАРИВАЕМОСТЬ МАТЕРИАЛА ИЗДЕЛИЯ

 

Латунь — сплав красной меди с цинком. Количество вводимого цинка в разные марки латуни колеблется в пределах 10—42%. Латунь по отношению к красной меди является сплавом с повышенным временным сопротивлением и повышенной вязкостью, причем цвет красной меди переходит в желтый цвет сплава. Повышение содержания цинка, сверх указанной выше величины делает сплав твердым, хрупким и малопригодным для технических целей. Кроме цинка в некоторые марки латуни вводится свинец и олово в небольших количествах: первый вводится в мунцевую латунь с целью улучшить обработку металла резанием; второй в морскую латунь с целью увеличить сопротивляемость сплава коррозии. Механические и технологические свойства. При обработке латуни в холодном состоянии прокаткой или протяжкой материал получает наклеп, что сопровождается повышением временного сопротивления и понижением удлинения. Окончательный продукт может быть мягким или твердым в зависимости от того, будет ли произведен отжиг после холодной обработки, а если отжига произведено не будет, то степень твердости определится величиной обжатия металла при прокатке или протяжке; пускаемые в дело латунные изделия, следовательно, могут быть мягкими, полутвердыми и твердыми. Для представления о механических качествах латуни разных марок в зависимости от обработки в мягком, полутвердом, твердом состоянии, приводится влияние высоких температур. Все латунные сплавы при нагреве понижают временное сопротивление, твердость и вязкость. Медно-цинковые сплавы мало пригодны для машинной и котельной арматуры, работающей при высоких температурах, с нагревом паром, подвергавшихся в процессе изготовления штамповке или протяжке в холодном состоянии и не получивших после того отжига или слабо отожженных приводит к появлению трещин, которое происходит иногда на складах, иногда во время работы. Например, отмечены неоднократные случаи растрескивания холодильниковых трубок при пуске пара. В изделии после обработки в холодном состоянии остаются внутренние напряжения. Существующие в металле напряжения могут быть выведены из равновесия и это может вызвать трещины, если изделие подвергнуть резким колебаниям температур или поверхность будет подвержена коррозии. Растрескивание трубок на складах объясняется действием на латунь, всегда находящегося в воздухе в небольшом количестве, аммиака. Склонность к растрескиванию может быть ослаблена уменьшением степени обжатия при последней протяжке, что снизит наклеп, а также может быть устранена нагревом до 250—300°С. При таком нагреве внутренние напряжения будут ослаблены, снижается электропроводность материалов на 55-75 % с соответствующим увеличением твердости.


Латунь хорошо сваривается на точечных машинах, чувствительность к термическому воздействию мала. Химический состав и свойства латуни представлены в таблицах 2.1 и 2.2.

Таблица 2.1 – Химический состав в % и виды полуфабрикатов деформируемых простых латуней по ГОСТ 1019-47

Марка Компоненты Примеси (не более) Полуфабрикаты
Cu Zn Pb Fe Sb Bi P Всего
Л62 60,5-63,5 Осталь-ное 0,08 0,15 0,005 0,002 0,002 0,5 Полосы, листы, ленты, трубы, прутки, Проволока

 

 

Таблица 2.2 –Физические и технологические свойства простых деформируемых латуней Л62

Марка Л62
Температура плавления в °С  
Плотность в г/см3 8,43
Модуль упругости в кг/мм2 Мягкой 10 000
Твердой
Коэффициент линейного расширения Х 106 1/°С 20,6
Удельная теплоемкость в кал/г ·°С 0,092
Теплопроводность в кал/см · с ·°С 0,26
Температура горячей обработки в °С 750-850
Температура отжига в °C 450-650
Удельное электрическое сопротивление, Ом∙ мм2 0,07–0,08
Температурный коэффициент сопротивления, α, оС-1 0,002

 


3 СПОСОБ СВАРКИ И ТИП СОЕДИНЕНИЯ

 

Тщательная отработка технологичности спроектирован­ного узла — обязательное требование современного производства. Она включает правильный выбор материала, размеров и формы деталей, рациональные способы изготовления, сборки, сварки узла, а также ряд других операций с установлением качества и точности выполнения и основное оборудование, приспособления и т. п.

Правильный выбор материала оказывает непосредственное влия­ние на качество и экономичность сварного узла. Наряду с высокими эксплуатационными характеристиками материал должен иметь хо­рошие технологические свойства: штампуемость, свариваемость и др.

При проектировании сварной конструкции важно обеспечить удобный подход электродов к месту сварки, чтобы детали могли быть сварены на стандартном оборудовании прямыми электродами. Форма и размеры узлов для точечной, шовной и рельефной сварки весьма разнообразны – от простых плоских панелей до сложных пространственных конструкций. Наиболее технологичны узлы открытого типа, менее технологичны узлы полузакрытого типа, ухудшающие доступ одного из электродов. Наименее тех­нологичны узлы закрытого типа и узлы коробчатой формы с вну­тренними швами, закрытые панели малой высоты и т. п. Детали для контактной сварки обычно изготовляют из листов и профилей. Выбор способа сварки обусловлен толщиной и материалом деталей, конструкцией узла, требованиями к качеству соединений, характе­ром конкретного производства.

Для сварки изделия, состоящего из двух уголков, толщина которых составляет 1,6 мм целесообразно использовать точечную сварку, циклограмма которой представлена на рисунке 3.1.

Рисунок 3.1–Циклограмма точечной сварки

 

Основные конструктивные элементы точечного сварного соединения (рис.3.2) следующие.

Р асчетный (минимальный) диаметр ядра. Его измеряют в плоскости сопряжения деталей и обозначают d. Эти размеры устанавли­вают из условия получения необходимой и стабильной прочности, герметичности шва при минимальной нахлестке.

Максимальные размеры ядра ограничивают из-за возможности появления различных дефектов, снижения стойкости электродов, устанавливая верхние пределы на 15–25 % больше минимально допустимых (при s 0,5 мм). Приближенно при толщине деталей s≥0,5 мм минимальный диаметр литого ядра для соединений группы А можно определить по эмпирической формуле:

d — 2s +(2÷3) мм.

Более точные его значения, учитывающие уменьшение отношения d с ростом толщины, описываются формулой d = 4s2/3.

Другими конструктивными элементами соединений являются величина проплавления, глубина вмятины от электрода, расстояние между центрами соседних точек в ряду (шаг), величина перекрытия литых зон (при шовной сварке), расстояние от центра точки до края нахлестки, между осями соседних рядов точек и др.

Рисунок 3.2 – Конструктивные элементы точечного сварного соединения

 

Рассчитываем размеры конструктивных элементов.

После анализа свойств и свариваемости, природы дефектов и методов их предупреждения, требований, предъявляемых к качеству соединений, находим оптимальный режим. Для точечной сварки – это Iсв, tсв, Fсв, Fк, tк, а также размеры рабочей поверхности электродов (dэ, Rэ).

Диаметр электрода определяется по формуле:

, мм, (3.1)

где δ – толщина детали, 0,8 мм.

Диаметр электрода: мм.

Принимаем диаметр электрода согласно расчетным данным:

мм.

Шаг точек согласно условию: мм.

Величина нахлестки: , мм (3.2)

Величина нахлестки равна: мм.

Расстояние от оси шва до края нахлестки: ,мм.(3.3)

Расстояние от оси шва до края нахлестки мм.

Величины проплавления hи h1принимаем h = 50 % δ, тогда

h = h1= 0,5∙0,8=0,4 (мм).

Глубины вмятин gи g1принимаем g=15% δ, тогда

g=g1=0,15∙0,8=0,12(мм)

При точечной сварке величина перекрытия литых зон герметичного шва f должна быть не менее 25 % длины литой зоны шва l.

0,8

1,6

1,6

0,24

Рисунок 3.3– Конструкция сварной точки

4 РАСЧЕТ РЕЖИМА СВАРКИ

 

Величина сварочного тока определяется по закону Джоуля-Ленца:

(4.1)

, А, (4.2)

где QЭЭ – общее количество теплоты, затрачиваемой на образование сварного соединения;

К3 – коэффициент, учитывающий изменения сопротивления во время сварки, для латуни К3 = 1;

RДК – сопротивление деталей к концу нагрева.

Общее количество теплоты, затрачиваемое на образование сварного соединения, определяется из теплового баланса при точечной сварке:

, (4.3)

где – энергия, затраченная на нагрев до ТПЛ столбика металла высотой 2δ;

– энергия, расходуемая на нагрев зоны термического влияния;

– потери теплоты в электродах.

Энергия, затрачиваемая на нагрев столбика металла толщиной 2δ до температуры плавления:

, (4.4)

где – диаметр электрода, 5 мм;

–толщина свариваемых деталей, 0,8 мм;

– плотность свариваемого металла, 8,43 г/см3;

–удельная теплоемкость латуни, 0,092 кал/г ∙ОС.

Энергия, затрачиваемая на нагрев столбика металла толщиной 2δ до температуры плавления:

.

Энергия, затрачиваемая на нагрев зоны термического влияния, определяется по формуле:

,кал, (4.5)

где x2 – ширина кольца, окружающего ядро, со средней температурой, равной ТПЛ/4;

К1 – коэффициент, учитывающий, что средняя температура кольца ниже средней температуры ТПЛ/4, К1=0,8.

При расчете Q2 принимается, что заметное повышение температуры наблюдается на расстоянии x2 от границы ядра. Значение х2 определяется временем сварки и температуропроводностью металла:

, (4.6)

где а М – коэффициент температуропроводности свариваемого металла, ;

tСВ – время сварки, с.

Коэффициент температуропроводности латуни:

см2/с.

Время сварки определяется из продолжительности включения точечной машины:

,%, (4.7)

где tCВ – время сварки, с;

tЦ – длительность одного цикла, с.

Длительность одного цикла:

,с. (4.8)

Для точечных машин ПВ = 20%, tCВ =0,12 с.

Длительность одного цикла:

.

При точечной сварке длительность цикла включает время сжатия tСЖ, время сварки tСВ, время проковки tПР, время паузы tП:

, (4.9)

где tСЖ – время сжатия, tСЖ = 0,14 с;

tСВ – время сварки, tСВ = 0,12 с;

tПР – время проковки, tПР = 0,14 с;

t П – время паузы, t П = 0,2 с.

Значение x2 равно:

.

Энергия, затрачиваемая на нагрев зоны термического влияния:

кал.

Потери теплоты в электроды определяются, принимая, что за счет теплопроводности нагревается участок электрода длиной х3 и объемом К2πd2x3/4 до температуры ТПЛ/8, по формуле:

, кал, (4.10)

где сЭЛ теплоемкость электрода, 0,1 кал/г∙ОС;

γЭЛ плотность электрода, 8,9 г/см3;

К2 – коэффициент, учитывающий форму электрода, равный для цилиндрического электрода, К2=1;

х3 – длина участка электрода, которая определяется по формуле:

, (4.11)

где а ЭЛ – коэффициент температуропроводности электрода, ,

где λЭЛ – коэффициент теплопроводности электрода, 0,95 кал/см∙с∙ОС.

Коэффициент температуропроводности электрода:

.

Значение х3 :

.

Потери на нагрев электрода:

кал.

Общее количество теплоты, затрачиваемое на образование сварного соединения:

Электрическое сопротивление определяется по формуле:

.Ом, (4.12)

где – удельное электрическое сопротивление, Ом∙мм2/м;

l – длина, м;

S – площадь поперечного сечения, мм2.

Электрическое сопротивление деталей к концу нагрева определяется по формуле:

, мкОм (4.13)

где – диаметр контакта к концу нагрева, мм;

– удельное электросопротивления для температур Т1 и Т2, мкОм∙см;

КП – коэффициент, учитывающий неравномерность нагрева пластин,

КП = 0,85;

АД – коэффициент, согласно графику АД = 0,8.

Удельное электрическое сопротивление при температуре определяется по формуле:

, мкОм∙см, (4.14)

где – удельное электросопротивление латуни при 00 С, =7мкОм∙см;

Т – температура, при которой определяется удельное электрическое сопротивление материала;

α – температурный коэффициент сопротивления, α = 0,002 1/°С.

При температуре ТПЛ = 9050С удельное электрическое сопротивление:

мкОм∙см,

при температуре ТПЛ = 7050С удельное электрическое сопротивление:

Ом∙мм2/м.

Электрическое сопротивление деталей к концу нагрева:

мкОм.

Величина сварочного тока:

.

При точечной сварке проявляется шунтирование тока, когда часть тока протекает вне зоны сварки, например, через ранее сваренные точки (рис.4.1).

 

Рисунок 4.1 – Схема шунтирования тока

 

Величина тока шунтирования определяется по формуле:

,A, (4.16)

где IСВ – величина сварочного тока, IСВ =8,5 кА;

RД – электрическое сопротивление деталей, RД =10,13 мкОм;

RШ – электрическое сопротивление шунта.

Электрическое сопротивление шунта определяется по формуле:

, (4.17)

где КЭ – коэффициент, КЭ=0,4;

bПР– приведенная с учетом растекания тока ширина шунта, равная

, мм (4.18)

мм;

– удельное электрическое сопротивление шунта, =7 мкОм∙см;

lШ– длина шунта, равная шагу точек, lШ=3,0 см;

δ – толщина металла, δ=0,08 см.

Электрическое сопротивление шунта:

.

Величина тока шунтирования:

Величина вторичного номинального тока определяется по формуле:

,А. (4.19)

Вторичный номинальный ток:

кА.

Расчет сварочного усилия при точечной сварке определяется по формуле:

,Н, (4.20)

где – условное сопротивление деформации металла зоны сварки, =200 МПа.

Усилие сжатия:

Усилие проковки определяется по формуле:

(4.21)

 

Усилие проковки:

Режим точечной сварки представлен в таблице 4.1.

Таблица 4.1 – Режим точечной сварки

Толщина свариваемого металла   d, мм Диаметр электрода,     dЭЛ, мм Вторичный ток,     I2, кА Длительность цикла, с Усилие на электро-дах, кН
tСЖ tСВ tПР tП FСЖ FПР
0,8   8,7 0,14 0,12 0,14 0,2 3,9 7,8

 

 

5 ПРОЕКТИРОВАНИЕ И РАСЧЕТ СВАРОЧНОГО КОНТУРА

 

5.1 Проектирование сварочного контура

 

Сварочный контур (рис.5.1) – это система токоведущих элементов и электрических контактов, обеспечивающих подвод тока от вторичного витка трансформатора к свариваемым деталям.

В машинах точечной сварки сварочный контур состоит из:

а) электродов, непосредственно подводящих ток к свари­ваемым деталям и передающих необходимые усилия для их об­жатия; электроды быстро изнашиваются и яв­ляются рабочим инструментом;

б) электрододержателей для закрепления электродов;

в) консолей, соединенных непосредственно или через спе­циальные держатели с механизмами, развивающими необходи­мые усилия сжатия свариваемых деталей; между электрододер­жателем, консолями и другими элементами контура имеются не­подвижные или подвижные контакты. Под действием сил Р консоль вместе с электрододержателем пере­мещается для сближения электродов поступательно;

г)гибких шин, связывающих колодки вторичного витка транс­форматора с подвижными элементами контура. В машинах ма­лой мощности вторичный виток трансформатора делается гибким из медной фольги и может непосредственно соединяться с держателями консолей без промежуточных шин. Обычно электрододержатели во время сварки перемещаются в одной плоскости — шины изгибаются в этой же плоскости.

Неподвижные контакты бывают постоянными, разбираемыми только при ремонте или переналадке машины, и переменными, разбираемыми при смене или регулировании электродов.

Таким образом, сварочный контур в электрическом отношении представляет собой систему жестких и гибких элементов, после­довательно (а иногда и параллельно) соединенных неподвижны­ми (постоянными или разбираемыми) и подвижными контактами. В механическом отношении сварочный контур является силовым узлом, иногда передающим очень значительные усилия.

 

 

Рисунок 5.1 – Сварочный контур точечной машины

1 – электроды;

2 – электрододержатели;

3 – верхний и нижний хоботы;

4 – верхняя и нижняя часть верхней крышки;

5 - верхняя и нижняя часть нижней крышки;

6 – верхняя и нижняя гибкие шины;

7 – колодки трансформатора;

8 – лобовая плита машины;

9 – зажимная пластина

 

5.2 Расчет габаритных размеров сварочного контура

 

Размеры контура (полезный вылет Lполезн и раствор Н) ограничивают габариты изделий, которые могут быть сварены с их введением в контур машины. Так как с увеличением Lполезн и Hs быстро растет внутреннее сопротивление машины и падает ее к.п.д. и cos φ, в универсальных машинах обычно вылет не превышает 800 мм, а раствор — 200—300 мм. Однако в некоторых специальных машинах полезный вылет достигает 3000 мм.

Все элементы сварочного контура, как правило, изготовляют­ся из медных сплавов с достаточно высокой электропроводностью и прочностью. Их сечение и взаимное расположение должны быть такими, чтобы при протекании заданного тока и номиналь­ном ПВ не было чрезмерных потерь на внутреннем сопротивле­нии контура и перегрева его элементов, а также обеспечивалась приемлемая внешняя характеристика машины.

Значительную часть активного сопротивления контура состав­ляет сопротивление его контактов. В эксплуатации ослабление их затяжки и окисление могут резко изменять сопротивление ма­шины. Поэтому контакты периодически разбирают­ся и очищаются (при интенсивной работе — ежемесячно) и систе­матически подтягиваются.

Силовые элементы контура должны обладать достаточной прочностью и жесткостью, а электроды и подвижные контакты — также износостойкостью; электрододержатели и хоботы должны допускать быструю смену и удобную регулировку электродов. Очень важна маневренность элементов контура, расширяющая возможность использования машины для сварки узлов сложной формы.

Габаритные размеры сварочного контура (рис.5.2) зависят от размеров свариваемых деталей и вида привода сжатия.

Для определения полного вылета (L,мм) необходимо прибавить 80¸150мм для удобства монтажа машины:

LПОЛН = LПОЛЕЗ + (80¸150) =300 + 100 =400 мм (5.1)

Габаритные размеры соответствуют ГОСТ 297-80.


1 – лобовая плита машины

2 2 – колодки трансформатора

3 – осевая линия

Н

 

 

L полезное

L полное

Рисунок 5.2 –Схема габаритных размеров сварочного контура

 

5.3 Расчет сечений элементов сварочного контура

Сечение элементов сварочного контура определяется по формуле:

, мм2, (5.2)

где I2ДЛ – длительный вторичный ток, А;

J2ДОП – допустимая плотность тока, А/мм2, зависящая от материала элемента сварочного контура и вида его охлаждения (табл.5.1)

Таблица 5.1 – Допустимые плотности тока

Наименование элемента контура Материал Условия охлаждения J2ДОП, А/мм2
Электроды Медь Воздушное 20–30
Электрододержатели Медь Водяное 12–18
гибкие шины Медь Воздушное 1–2,5
Консоль Медь Воздушное 1–2
Крышка Медь Воздушное 1–2
Крышка Медь Воздушное 1–2

Длительный вторичный ток определяется по формуле:

, (5.3)

где I – вторичный номинальный ток, I =8700 А;

ПВ – продолжительность включения, 20 % согласно ГОСТ 297-81.

Окончательно сечение элементов сварочного контура определяется по формуле:

. (5.4)

Сечение элементов сварочного контура.

Воздухоохлаждаемая медная консоль круглого сечения (рис.5.3):

 


 

 

Рисунок 5.3 – Консоль

.

Гибкие шины из меди М1 с охлаждением на воздухе (рис.5.4):

 

Рисунок 5.4 – Гибкие шины

Медная крышка с воздушным охлаждением (рис.5.5):

 

Рисунок 5.5. – Медная крышка

Электрододержатель из сплава БрХ с водяным охлаждением (рис.5.6):

 

 

Рисунок 5.6 – Электрододержатель

Электрод:

Размеры элементов сварочного контура представлены в таблице 5.2.

Таблица 5.2 – Размеры элементов сварочного контура

Наименование элемента сварочного контура Площадь сечения, мм2 Длина элемента, мм
Электроды 155,6  
Электрододержатели 259,4  
гибкие шины 1729,2 35,4/20
Консоль верхняя/нижняя 1945,4 300/500
Крышка верхняя/нижняя 2593,8 200/300

 

Консоли точечных машин рассчитываются на прочность и жесткость упрощенно, исходя из модуля упругости материала.

Схема нагрузки консолей точечной машин представлена на рисунке 5.7


Рисунок 5.7 – Схема нагрузки консолей точечных машин

Расчет консоли на прочность производится по формуле:

, (5.5)

где σ – действительное напряжение, возникающее в консоли, МПа;

[σ] – допустимое напряжение, [σ]=200 МПа;

М – изгибающий момент, ;

W – осевой момент сопротивления, .

Действительное напряжение, возникающее в консоли, определяется по формуле:

. (5.6)

Диаметр консоли определяется из сечения по формуле:

, . (5.7)

Диаметр консоли:

Действительное напряжение в консоли:

.

σ <[σ], поэтому прочность машины обеспечена.

Расчет консоли на жесткость производится по формуле:

, (5.8)

где f – прогиб консоли;

I – осевой момент инерции сечения консоли, ;

Е – модуль упругости материала консоли, 105 МПа;

К – коэффициент, К=3.

Прогиб консоли:

(5.9)

Жесткость консоли обеспечена.

 

5.4 Расчет общего электрического сопротивления сварочного контура

 

Полное электрическое сопротивление сварочного контура определяется по формуле:

, (5.10)

где – сумма активных сопротивлений всех элементов контура и контактов между ними при Т=1000С;

- сумма индуктивных сопротивлений сварочного контура, мкОм.

Активное сопротивление одного элемента:

, (5.11)

где КП – коэффициент поверхностного эффекта, КП = 1;

– удельное электрическое сопротивление меди при температуре 1000С, равное , ,

Удельное электрическое сопротивление при температуре 1000 С:

.

Активное сопротивление электродов:

Активное сопротивление гибких шин:

.

Активное сопротивление верхней крышки:

Активное сопротивление нижней крышки:

.

Активное сопротивление верхней консоли:

.

Активное сопротивление нижней консоли:

.

Активное сопротивление электрододержателя:

.

Активное сопротивление переходных контактов:

электрод – электрододержатель (2);

эектрододержатель – верхняя крышка (2);

электрододержатель – нижняя крышка (2);

верхняя крышка – верхняя консоль;

нижняя крышка – нижняя консоль;

верхняя консоль – гибкая шина;

гибкая шина – жесткая шина (2);

нижняя консоль – колодка трансформатора;

жесткая шина – колодка трансформатора (2)

Во вторичных контурах точечных, рельефных и стыковых машин все контакты между элементами токоподвода неподвижны. Сопротивление неподвижного контакта постоянного контакта 1 – 8 мкОм.

Следовательно

.

Активное сопротивление всех элементов контура:

.

Индуктивное сопротивление сварочного контура:

,мкОм. (5.12)

см2. (5.13)

.

Общее сопротивление сварочного контура:

 

5.5 Расчет вторичного номинального напряжения машины

 

Вторичное номинальное напряжение машины определяется согласно закону Ома

по формуле:

,В, (5.14)

где I2H – номинальный сварочный ток, А;

ZM – полное сопротивление машины, Ом.

Полное сопротивление машины определяется по формуле:

. (5.15)

Полное сопротивление машины:

.

Номинальное вторичное напряжение машины:

Полная мощность машины определяется по формуле:

,кВА. (5.16)

Полная мощность машины: .

6 РАСЧЕТ СВАРОЧНОГО ТРАНСФОРМАТОРА

 

6.1 Конструктивные особенности трансформатора

 

Электрическая энергия сетевого напряжения преобразуется в энергию, необходимую для контактной сварки, в однофазном сварочном трансформаторе. Для контактной сварки требуются большие токи 2 – 80 кА, иногда до 300 кА, при низком напряжении 1 – 12 В, до 25 В при двух витках.

Трансформатор представляет собой статический электромагнитный аппарат с двумя (или больше) обмотками, предназначенный чаще всего для преобразования переменного тока одного напряжения в переменный ток другого напряжения. Преобразование энергии в трансформаторе осуществляется переменным магнитным полем. Трансформаторы широко применяются при передаче электрической энергии на большие расстояния, распределении ее между приемниками, а также в различных выпрямительных, усилительных, сигнализационных и других устройствах.

Основными частями трансформатора являются магнитопровод и катушка с обмотками. Материалом для магнитопровода трансформаторов служит листовая электротехническая сталь различных марок и толщины, горячей прокатки и холоднокатаная; от содержания кремния, которое отражено в марке стали, а также от толщины листа зависят потери мощности в магнитопроводе от вихревых токов. Толщину листа применяемой стали выбирают в зависимости от частоты сети, питающей трансформатор: с увеличением частоты толщину листа надо уменьшать. Ленточные (витые) магнитопроводы изготавливают из лент рулонной стали; предварительно лента покрывается изолирующим и склеивающим составом. Броневые магнитопроводы собирают из пластин Ш-образной формы и прямоугольных пластин, замыкающих Ш-образную пластину. Эти магнитопроводы имеют один стержень, на котором располагают все обмотки трансформатора.

Сборка броневого магнитопровода производится так же, как и магнитопровода стержневого типа, описанного выше. Поскольку в броневом магнитопроводе обмотка размещается на среднем стержне, магнитный поток разветвляется на правую и левую части и, таким образом, в крайних стержнях его значение будет в 2 раза меньше, чем в центральном; это позволяет уменьшить сечение крайних стержней в 2 раза по сравнению с центральным. собирают из отдельных штампованных колец, покрытых изолирующим лаком; сборка производится с помощью намотки на пакет пластин ленточной лакоткани. Этот магнитопровод обладает наилучшими магнитными свойствами: наименьшее магнитное сопротивление, минималь-ные индуктивность рассеивания и чувствительность к внешним магнитным полям, однако изготовление обмоток в данном случае может производиться только на специальных станках челночного типа или вручную.

Броневые магнитопроводы с находящимися на них обмотками собирают в узел с помощью шпилек и накладок либо путем запрессовки в скобу.

Исходные данные для расчета трансформатора:

номинальный ток сварки I = 8,7 кА;

режим работы ПВ – 20%;

вторичное напряжение U = 1,87 В;

частота тока f = 50 Гц;

коэффициент регулирования КС = = 2;

число ступеней регулирования вторичного напряжения: NС = 8.

Сварочный трансформатор броневого типа предназначен на однофазное включение в сеть переменного тока с частотой 50 Гц, U = 380 В. Используются дисковые обмотки, так как это уменьшает потоки трансформатора, улучшается охлаждение первичной обмотки за счет теплоотвода в элементы обычно водоохлаждаемого вторичного витка. Первичная обмотка делится на секции. Отпайки от секции подключают к специальному переключателю ступеней, где с помощью ножей осуществляются различные комбинации соединения секций для получения требуемого U2 и коэффициент трансформации. Охлаждение вторичной обмотки – водяное. Первичная обмотка охлаждается за счет отвода тепла в элементы вторичного витка и за счет воздуха окружающей среды.

 

6.2 Расчет обмоток трансформатора

 

Марка металла магнитопровода – Э41, s = 0,5мм. Э41- листовая горячекатанная электрохимическая сталь. Материал первичной обмотки – медный провод, вторичной – медь М1. Витки первичной обмотки изолированы друг от друга и от остальных элементов машины. Число витков первичной обмотки при W2 = 1 на номинальной ступени определяется по формуле:

, (6.1)

где U1 - первичное напряжение, U1 = 380 В;

U- вторичное напряжения на номинальной ступени, U = 1,54 В.

Число витков первичной обмотки:

Выбираем закон изменения U по ступеням с помощью уравнения:

(6.2)

Выбираем схему регулирования (рис.6.1), которая используется в машинах средней и большой мощности:

 

 

25 25 50 50 100 100

Рисунок 6.1 - Схема регулирования

а1 = а2 = 25, b1 = b2 = 50, c1 = c2 = 100.

Напряжение ступеней определяется по формуле:

Количество витков и U представлены в таблице 6.1.

Таблица 6.1 – Количества витков и напряжения по ступеням

№ ступеней Число витков Напряжение U, В Способы соединения
    1,08 1,28 1,25 1,37 1,5 1,67 1,87 2,13 2а + 2b + 2c a + 2b + 2c 2a + b + 2c a + b + 2c 2a + 2b + c a + 2b + c 2a + b + c a + b + c

 

Сечение витков первичной обмотки по длительному первичному току:

, мм2, (6.3)

где J1ДОП – допустимая плотность тока для дисковой катушки, плотно прижатой к дискам вторичной обмотки, охлаждаемых водой,

J1ДОП= 3А/мм2).

Сечение витков первичной обмотки:

мм2

Сечение витков вторичной обмотки определяется по формуле:

, мм2, (6.4)

где J1ДОП – допустимая плотность тока для вторичной обмотки трансформатора, J2ДОП= 2А/мм2).

Сечение вторичной обмотки трансформатора:

мм2.

Число элементов определяется числом катушек первичной обмотки и для схемы в 2 раза меньше числа катушек первичной обмотки.

 

6.3 Расчет магнитопровода

 

Расчет магнитопровода включает определение сечения и размеров стержня: толщины набора, высоты и ширины окна и т.д.

Сечение сердечника определяется по формуле:

, м2, (6.5)

где UM –напряжение на последней ступени, 2,13 В;

f1 частота, f1 = 50Гц;

W2– число витков вторичной обмотки, W2=1;

В – индукция в сердечнике, В= 0,8¸1,8 Т.

Исходя из формы пластин, стали из которых сделан сердечник, ПВ машины и мощности трансформатора принимаем В = 1,5 Т.

Сечение сердечника:

м2.

Из-за неплотной сборки стальных листов и наличия изоляции действительное сечение сердечника увеличивается:

м2, (6.6)

где КС – коэффициент, КС = 0,92 – 0,95.

Действительное сечение магнитопровода:

м2.

В трансформаторах броневого типа это сечение относится к среднему стержню, на котором расположены обмотки, а сечение остальных стержней равно половине S’C, то есть 35∙10-4 м2.

Форму сечения сердечника обычно выбирают прямоугольную с соответствием сторон h/b = 1¸3.

Принимаем h = 10 ∙10-2 м, b =7∙ 10-2 м.

Размер окна выбираем в зависимости от полного сечения обмоток, которые должны быть уложены в окне трансформатора, изоляции, прокладок и каналов охлаждения:

м2, (6.7)

где КЗО – коэффициент заполнения окна = 0,4¸0,6;

c,d – размеры окна;

Wi – максимальное количество витков обмотки, W1 = 353;

S1 – сечение витков первичной обмотки, S1 =6,39 мм2;

S2 – сечение вторичного витка обмотки, S2 =1945 мм2

Сечение окна:

м2.

Из условий экономического раскроя стандартного листа железа соотношение сторон с /d выбирают в пределах 2¸3 Принимаем с = 0,14 м, d = 0,05 м. Между средними катушками оставляют зазор 10¸14мм для размещения отводов и клиньев. Внутренний размер изолированной катушки по ширине выбирают на 8¸15 мм больше ширины сердечника bik = bi + (8¸15), а по длине на 20¸40 мм, hik = h +(20¸40) мм для установки клиньев и свободного надевания катушки.

bik =7 + 13 =20мм, hik = 10 + 20 = 30мм.

Внутренний размер диска вторичного витка выбирают меньше по ширине на 2¸3 мм, а по длине на 1¸2мм, внутренних размеров катушек.

140 100

50 70

Рисунок 6.2 – Сердечник броневого типа

 

6.4 Расчет трансформатора

 

Далее выполняется поверочный расчет трансформатора для определения потерь, КПД и условий охлаждения. Ток холостого хода трансформатора определяется по формуле:

, А (6.8)

где IA– активная составляющая тока холостого тока, А;

IP – реактивная составляющая тока холостого тока, А.

Активная составляющая тока определяется по формуле:

,А, (6.9)

где РСТ – потери холостого хода, РСТ = Рσ, Вт;

КП – коэффициент добавочных потерь, КП =1,2.

Р = 3,5 Вт/кг, s = 1,8 кг, РСТ = 3,5.1,8 = 6,3 Вт.

Активная составляющая холостого хода:

A.

Реактивная составляющая холостого хода определяется по формуле:

(6.10)

где АW– ампер-витки на 1 м длины участка. Согласно графику

АW=2100 ампер-витка/м;

LСР – средняя длина силовой линии, LСР =2(с+d)+4bШ= 0,5 м;

ВП – число зазоров в магнитной цепи, ВП =1,5;

δ – величина зазора в магнитной цепи, δ = 5 ∙10-5м;

К1 – коэффициент, учитывающий уменьшение тока холостого хода из-за наличия гармоник, К1 =1,5.

;

WП – число витков первичной обмотки на последней ступени, WП = 178.

Реактивная составляющая холостого хода:

.

Ток холостого хода трансформатора:

Относительное значение тока холостого хода не должно превышать значений, указанных в ГОСТ 297-73. В нашем случае io не должно превышать 20%:

.

Значит ток холостого хода удовлетворяет ГОСТу 297-73.

КПД контактной машины определяется по формуле:

, (6.11)

, (6.12)

где R2 = – активное сопротивление вторичной обмотки трансформатора;

r2 – удельное электросопротивление материала вторичной обмотки трансформатора при 75 0С, r2 =1,75 мкОм∙см;

КП2 – коэффициент поверхностного эффекта, КП2 = 0,5;

R”1 = – сопротивление первичной обмотки трансформатора, приведенное по вторичной цепи (при W2 = 1);

R1 = – активное сопротивление первичной обмотки трансформатора;

r1– удельное электросопротивление первичной обмотки трансформатора;

L1СР – средняя длина одного витка I-обмотки трансформатора, L1СР=2(b+h)=34 см.

Активное сопротивление первичной обмотки трансформатора:

.

Активное сопротивление вторичной обмотки трансформатора:

 

Сопротивление первичной обмотки трансформатора, приведенное по вторичной цепи (при W2 = 1):

С целью упрощения расчета индуктивные сопротивления не учитываем:

РСТ – потери холостого хода (РСТ = 6,3 Вт);

РМ = РМ1 + РМ2 + РК – потери мощности в обмотках трансформатора и элементов сварочного контура; (6.15)

РМ1 = I12Д .R1 – потери мощности в первичной обмотке трансформатора;

РМ2 = I22Д .R2 – потери мощности во вторичной обмотке трансформатора;

РК = I22Д .RК – потери мощности в элементах сварочного контура.

РМ1 = 19,172.95861∙.10-6 = 35,2 Вт

РМ2 = 85002 ∙1,53∙.10-6 = 110,5 Вт;

РК = 85002.124,78∙.10-6 = 9015 Вт;

РМ = 35,2 + 110,5 + 9015 = 9160,7 Вт.

Количество воды, необходимое для охлаждения трансформатора:

, (6.13)

где – потери мощности в обмотке трансформатора;

- период входящей и выходящей воды;

Вт

Скорость течения воды:

 

где dB – диаметр трубки охлаждения, см;

7 КОНТАКТНАЯ МАШИНА ДЛЯ ТОЧЕЧНОЙ СВАРКИ

Для сварки каркаса выбираем машину, которая должна подходить по рассчитанным параметрам:

-номинальный вто



<== предыдущая | следующая ==>
 | Конструкция ДПТ





Date: 2015-07-24; view: 674; Нарушение авторских прав



mydocx.ru - 2015-2026 year. (1.58 sec.) Все материалы представленные на сайте исключительно с целью ознакомления читателями и не преследуют коммерческих целей или нарушение авторских прав - Пожаловаться на публикацию