Главная Случайная страница


Полезное:

Как сделать разговор полезным и приятным Как сделать объемную звезду своими руками Как сделать то, что делать не хочется? Как сделать погремушку Как сделать так чтобы женщины сами знакомились с вами Как сделать идею коммерческой Как сделать хорошую растяжку ног? Как сделать наш разум здоровым? Как сделать, чтобы люди обманывали меньше Вопрос 4. Как сделать так, чтобы вас уважали и ценили? Как сделать лучше себе и другим людям Как сделать свидание интересным?


Категории:

АрхитектураАстрономияБиологияГеографияГеологияИнформатикаИскусствоИсторияКулинарияКультураМаркетингМатематикаМедицинаМенеджментОхрана трудаПравоПроизводствоПсихологияРелигияСоциологияСпортТехникаФизикаФилософияХимияЭкологияЭкономикаЭлектроника






Технологічний розрахунок





 

Технологічна карта або серії карт, що стосуються основного ведучого технологічного процесу, визначають тривалість будівництва, основні технологічні схеми, основні ведучі монтажні механізми. Для кам'яної будівлі – це технологічний розрахунок або технологічна карта кам'яної кладки типового поверху. Для металевої будівлі – монтаж одного шагу каркасу. Для монолітного залізобетонного каркасу – виконання бетонних робіт каркасу, насамперед виконання перекриттів.

Це не обов’язково повинна бути технологічна карта в повному обсязі згідно з ДБН А.3.1-5-2009, але достатня для визначення тривалості робіт.

Технологічний розрахунок можна вважати розділом графіка виконання робіт (календарного, сіткового, циклограми). Але більш точно технологічний розрахунок є основою для складання графіка. Досить часто вважається, що для графіка достатньо визначити обсяги робіт, підібрати комплект технологічних карт або розробити їх і сформувати графік. Графік, з такого погляду, – це ілюстрація прийнятих рішень. Можна вважати і так. Але до стадії ілюстрації треба визначити ці рішення – вибрати технологію і послідовність основних процесів, вибрати кран чи інший монтажній механізм, визначити захватки, необхідні обсяги опалубки тощо. Ці питання повинні бути визначені до складання графіку, або вважати їх складовою частиною складання графіку.

Для того щоб згідно з ДБН А.3.1-5 заповнити колонки 4, 5, 8 календарного графіка (затрати праці, тривалість робіт, численність працюючих в змін), треба виконати ряд технологічних розрахунків:

- скільки треба кранів, а отже вирахувати монтажний цикл крана, його продуктивність, чи задовольняє він необхідну кількість підйомів, чи потрібен не один кран;

- скільки одночасно робочих місць може бути на захватці чи на всьому фронту поверху,

- чи можна виконувати опалубку вище розміщеного поверху до повного завершення нижнього,

- визначити терміни розпалубки залежно від умов витримки бетону,

- які заходи необхідні для досягнення максимальної виробітки (наприклад, одночасність виконання робіт на одній захватці).

Чинними будівельними нормами детальна розробка технології і такі розрахунки на стадії ПОБ і навіть ПВР не передбачена. Досвід будівництва цехів, конвеєрного монтажу показав, що розробка технології вже в період будівництва затримує будівництво та часто приводить до значних змінень конструктивних рішень.

Для дипломного проекту при організаційному проектуванні зведення монолітного каркасного будинку детальна розробка технології або детальний розрахунок основного будівельного процесу є основою організації, насамперед основою визначення тривалості будівництва одного поверху. Цей технологічний розрахунок на весь комплексний процес (включно з опалубними, арматурними роботами, укладкою бетону, витримкою його та розпалубкою) визначає тривалість кожного виду робіт на поверху та їх взаємозв'язок. Цей розрахунок можна розглядати як технологічну карту комплексного процесу всіх робіт поверху.

Дуже часто усереднені показники не відповідають конкретним умовам. так середній показник по вкладанню бетону баштовим краном вважається 0,45 год/м³ (2,22 м³/год – 17,8 м³/змін), а фактично може досягати до 130 м3 в зміну (0,062 год/м³).

При вкладанні бетонної суміші бетононасосом в середньому приймається 0,17 год/м³ (5,9м³/год) при потужності бетононасосів від 40 м³/год до 60 м³/год та навіть 120м³/год, що відповідає 0,025 год/м³, 0,017 год/м³, 0,008 год/м³. Тому на основні роботи, які визначають і основні показники будівництва, необхідно використовувати технологічні карти чи типові, прив'язані до конкретних умов; чи розроблені для конкретного проекту.

Склад робітничих ланок можна приймати за ЕНіР чи галузевими нормами (якщо вони вже затверджені на даний вид робіт). Звідти ж можна прийняти виробітку. Складність полягає в тому, що можна брати середню виробітку 0,17 м3/год (наприклад, для укладки бетону), а можна розрахувати більш детально – з урахуванням монтажного циклу крана, основних операцій. Основним питанням виконання монолітного житлового односекційного будинку є виконання перекриттів, а у виконанні перекриттів – прискорення набору міцності бетоном. Будь-який вид робіт на поверху такого будинку можна виконати за одну-дві зміни – опалубку колон, арматуру колон, опалубку перекриття, арматуру перекриття, укладання бетону. Причому, всі ці роботи цілком поєднуються в одну добу – 3 зміни.


Прийнято порядок виконання робіт двома потоками:

- колони арматурні, опалубні роботи та укладання бетону баштовим краном;

- плити перекриттів – всі роботи та укладання бетонної суміші бетононасосом.

Для плит використовується комплекс заходів для прискорення набору міцності бетоном:

- застосування хімічних добавок СП-7М – вже відомі добавки, які забезпечують через 16 годин 67% проектної міцності при 40°С;

- вакуумування, після якого за 16 годин досягається 26% приросту міцності при 20°С;

- нагрів нагрівальними проводами по режиму: 2+3+5+2=12 годин при максимальній температурі 60°С;

- підвищення проектного класу бетону до С50/60: +23%міцності (при 20°С).

Цей комплекс заходів по інтенсифікації набору міцності бетону перекриттів завчасно досліджується лабораторією. Бетонування колон наступного поверху виконується до завершення розпалубки нижнього для забезпечення безперервності завантаження опалубщиків, які можуть монтувати і армокаркаси колон (як заходи надійності).

Трудозатрати монтажу блоків опалубки колон і арматури приблизно рівні затратам на розпалубку, приймаючи ручне переміщення елементів опалубки до місць строповки для баштового крана. Необхідно враховувати, що розпалубка опалубних блоків ведеться з розбиранням блоків поелементно. Чиста розпалубка, переміщення та збирання нових блоків прирівнені половині трудозатрат на монтаж опалубних блоків, але додається переміщення до місць завантаження баштовим краном.

В прийнятому проекті 12-поверхового житлового будинку використані наступні рішення:

- поставка бетонної суміші з найближчого бетонного заводу -за 15хв.("Лотос");

- укладка бетонної суміші в колони, стіни жорсткості та ліфтову шахту баштовим краном, в перекриття – бетононасом;

- постачання і подача бетонної суміші на поверх виконується постачальником;

- для прискорення набору міцності та терміну розпалубки прогрів укладеного бетону як в зимових умовах, так і влітку виконується одночасним застосуванням комплексу заходів:

1. Бетон з добавкою модифікаціїСП-7М – суперпластифікатора та прискорювача росту міцності бетону.

2. Застосування вакуумування свіжоукладеної суміші перекриттів

3. Підвищений проектний клас міцності бетону з С25/30 до С30/35, що підвищить міцність ще на 23%.

4. Використання «Термосу» в зимовий період – після вакуумування та загладжування поверхня бетону вкривається матами утеплювача, що заощаджує витрати електроенергії на нагрів проводами..

5.Електропрогрів як в зимних умовах так і літом нагрівальними проводами бетону перекриттів та електродами колон.

Таким чином, перехід на клас С32/40, разом з добавкою СП-7М, вакуумуванням та електропрогрівом нагрівальними проводами по режиму повинно забезпечити в термін 16 годин проектну міцність, достатню для сприйняття навантаження від укладки бетонної суміші наступного перекриття.

 

Проектування будгенплану

 

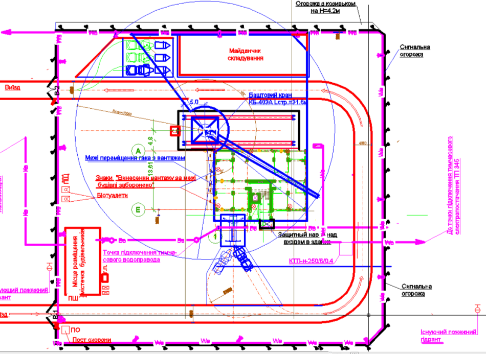
Схематично будівельний генеральний план майданчику, на якому здійснюються роботи зі зведення багатоповерхової монолітної житлової будівлі, представлено на рис. 3.1.

 

Рис. 3.1. Схема будгенплану

 

На будгенплані монтажного циклу (на час робіт зі зведення монолітного каркасу будівлі) розміщені основні машини та механізми (зокрема, баштовий кран та автобетононасос), межі переміщення гака з вантажем, сигнальні огорожі, майданчик складування, точки підключення тимчасового водопроводу та тимчасового електропостачання, в’їзд та виїзд з будівельного майданчику тощо.


 

РЕКОМЕНДОВАНА ЛІТЕРАТУРА

1.Амбарцумян С.А., Мартиросян A.C., Галумян A.B. Нормы выполнения бетонных работ с помощью бадьи и бетононасоса в скоростном монолитном домостроении // Промышленное и гражданское строительство. 2010. – №2. – С. 29-31.

2. Амбарцумян С.А., Мартиросян A.C., Галумян A.B. Нормы выполнения опалубочных работ при скоростном монолитном домостроении // Промышленное и гражданское строительство. 2009. – №2. – С. 39-41.

3. Амбарцумян С.А., Мартиросян A.C., Галумян A.B. Производство работ по устройству монолитных железобетонных конструкций. Учебное пособие. – М.: 2008. – 138 с.

4. Галумян A.B. Возможности интенсификации сроков строительства в монолитном домостроении // Научно-техническое творчество молодежи -путь к обществу, основанному на знаниях: сб. тр. I Международной Научно-практической конференции (24-27 июня, г. Москва, ВВЦ, 2009 г.). – М.: МГСУ. – 2009. – С.110-111.

5. Галумян A.B. Методика выбора опалубки при скоростном строительстве жилых зданий из монолитного железобетона // Бетон и железобетон. 2009. – № 2. – С. 6-9.

6. Зиневич Л.В., Галумян A.B. Некоторые организационно-технологические особенности современного скоростного монолитного домостроения // Вестник МГСУ. 2009. – № 1 (спецвыпуск). – С. 29-30.

7. Зиневич Л.В., Галумян A.B. Скоростное монолитное домостроение: условия достижения высоких темпов строительства и качества бетона получаемых конструкций // Бетон и железобетон. – №5, 2009. – C. 23-26.

8. Руководство по прогреву бетона в монолитных конструкциях / М.: ЦНИИОМТП, 2009.

9. Методические рекомендации по устройству бетонных конструкций методом вакуумированиябетонной смеси.Москва - 1984.

10. Головнев С. Г. Технология бетонных работ в зимнее время / С.Г. Головнев. Челябинск: Изд-во ЮУрГУ, 2004. – 70 с.


Додаток А







Date: 2015-07-22; view: 1192; Нарушение авторских прав



mydocx.ru - 2015-2026 year. (1.673 sec.) Все материалы представленные на сайте исключительно с целью ознакомления читателями и не преследуют коммерческих целей или нарушение авторских прав - Пожаловаться на публикацию