Главная Случайная страница


Полезное:

Как сделать разговор полезным и приятным Как сделать объемную звезду своими руками Как сделать то, что делать не хочется? Как сделать погремушку Как сделать так чтобы женщины сами знакомились с вами Как сделать идею коммерческой Как сделать хорошую растяжку ног? Как сделать наш разум здоровым? Как сделать, чтобы люди обманывали меньше Вопрос 4. Как сделать так, чтобы вас уважали и ценили? Как сделать лучше себе и другим людям Как сделать свидание интересным?


Категории:

АрхитектураАстрономияБиологияГеографияГеологияИнформатикаИскусствоИсторияКулинарияКультураМаркетингМатематикаМедицинаМенеджментОхрана трудаПравоПроизводствоПсихологияРелигияСоциологияСпортТехникаФизикаФилософияХимияЭкологияЭкономикаЭлектроника






Пензенский Государственный Университет Архитектуры и Строительства

Министерство образования и науки РФ

Федеральное агентство по образованию РФ

Пензенский Государственный Университет Архитектуры и Строительства

 

Кафедра Строительных конструкций

 

 

Реферат

По дисциплине: «Конструкции из дерева и пластмасс»

на тему: «Клееные деревянные конструкции»

 

Выполнил: Буданов

Барменков

Принял: Лаврова О.В.

 

ПЕНЗА 2012

Древесина в строительстве становится все более часто используемым материалом, так как дерево является натуральным экологически чистым продуктом, взятым человеком из природы. Оно стало популярным у архитекторов, дизайнеров и современных покупателей благодаря своему симпатичному внешнему виду и приятным «теплым» качествам. Помимо этого, дерево является обновляющимся естественным неистощаемым ресурсом и одним из редких строительных материалов, которым предоставлен сертификат окружающей среды.

Улучшить и довести характеристики прочности, устойчивости к влаге, сопротивляемости горению древесины до уровня современных строительных требований, сохраняя при этом природные качества «теплоты» дерева, свойства «дышать» и внешней красоты – основная задача современной деревообрабатывающей промышленности. Ее решение во многом способствует использованию клееных изделий и конструкций.

Клееные изделия изготавливаются из древесины различных пород (в основном, сосны, лиственницы, ели) по специальной технологии. Древесина, как уже отмечалось выше, экологически чистый природный полимер с замечательными качествами: прочностью, долговечностью, низкой теплопроводностью. Современные технологии позволяют наделить этот материал дополнительными специальными свойствами – формоустойчивостью, правильной геометрией, чистотой поверхности (при полном отсутствии пороков), эстетически безупречным внешним видом.

Клееные деревянные конструкции являются индустриальным видом современных конструкций, производство которых осуществляется на специализированных предприятиях.

Изготовление клееных изделий сегодня освоено в России на ряде деревообрабатывающих предприятий («Стайлерс» в Санкт-Петербурге, на Волоколамском заводе строительных материалов и в других регионах).

Деревянные клееные конструкции начали применяться в нашей стране еще в 30-40-х годах прошлого столетия.

В строительной практике деревянные клееные конструкции применяются в зданиях и сооружениях самого различного назначения. По сравнению с аналогичными железобетонными конструкциями, использование клееных конструкций позволяет снизить массу конструкции в 4-5 раз, трудоемкость изготовления и монтажа более чем в 2 раза.

Наибольший экономический эффект от применения клееных конструкций достигается при перекрытии ими больших пролетов (18-36 м) – такие пролеты имеют кинотеатры, крытые рынки, бассейны, выставочные залы, легкоатлетические манежи, конно-спортивные сооружения, а также их используют в зданиях и сооружениях, подверженных химически агрессивному воздействию среды. Практикуется также комплексное применение несущих деревянных клееных конструкций совместно с облегченными ограждающими.

В Европе большой популярностью пользуются аквапарки и крытые бассейны, своды которых обычно выполняются из клееных деревянных конструкций. Проекты по строительству аквапарков сегодня активно разрабатывают в России.

Высокая химическая стойкость древесины успешно используется при выборе материала несущих конструкций сооружений для хранения агрессивных к металлу и бетону солей и минеральных удобрений. Эксплуатационная надежность и долговечность древесины в агрессивной среде действующих калийных комбинатов уже превышает 40 лет, что существенно выше, конструкций из железобетона и стали.

В большинстве крупных городов России разрабатываются проекты по реконструкции четырех- и пятиэтажных домов путем надстройки на них мансардных этажей. Наиболее эффективно применять в подобных конструкциях деревянную клееную балку. По сравнению с конструкциями из железобетона и металла, клееные деревянные конструкции имеют меньший вес, высокие эстетические качества и возможность получения оригинальных архитектурных форм и дизайнерских решений.

Клееные конструкции широко используются в мостостроении. Отличительными особенностями подобных конструкций являются долговечность и простота в монтаже.

Широкое применение клееные деревянные конструкции получили и в индивидуальном жилищном строительстве.

Древесина – оптимальный для России строительный материал со всех точек зрения: экономической – она весьма дешева, инженерной – пригодна для изготовления любых строительных конструкций, экологической – благотворно влияет на здоровье людей, географической – деревья хвойных пород в изобилии растут по всей территории страны. Современные деревянные дома – это не только неповторимый микроклимат в жилище, но нередко и весьма оригинальная архитектура.


Однако дерево – отличный строительный материал, если только оно сухое. При использовании в строительстве не просушенных деревянных деталей возникают серьезные проблемы: это деформированные крыши, выдавленные рамы, не закрывающиеся двери, вспученная вагонка на стенах, щели в полах и т. д.

Получить качественные строительные конструкции без камерной сушки пиломатериалов невозможно, а высушить без деформаций древесину толщиной 10-15 см (брус, бревно) практически невозможно. При высыхании древесины происходит изменение ее структуры, внутренние напряжения деформируют материал, образуются трещины, происходит усадка, что приводит к значительным дефектам готовых изделий. При строительстве зданий из массивной древесины естественной влажности требуется значительное время, чтобы материал в конструкциях высох, дал окончательную усадку, после чего можно приступать к дальнейшему строительству и отделке, используя различные уплотнительные материалы и обшивки. Однако даже если подождать год, пока дом «сядет», все равно останутся щели между брусьями, трещины в стенах и в конечном итоге необходимо будет приобретать дорогостоящую вагонку для отделки дома снаружи и внутри. Кроме того врезки и врубки в углах здания, сделанные вручную будут продуваться и сосать влагу, т. к. топором невозможно обеспечить идеальную точность.

Все эти проблемы решаются при использовании клееного профилированного бруса. Клееная древесина в несущих и ограждающих конструкциях используется давно. Тем не менее, в жилищном строительстве клееный брус появился около 30 лет назад.

Он тщательно высушен, более прочен и менее подвержен различным неблагоприятным воздействиям (гниению и т. п.). Усадка клееного бруса не превышает 1%, что дает возможность значительно сократить сроки возведения дома «под ключ» – не требуется длительное ожидание осадки сруба. Все эти достоинства клееного бруса объясняются процессом его производства, который состоит из нескольких последовательных стадий. Наиболее распространенный материал для клееного бруса – сосна и ель, реже используют лиственницу и кедр. Прежде всего, бревна распускают на доски необходимого размера, которые тщательно сушат. В отличие от массивного цельного бруса доски просушить гораздо проще, поэтому их влажность оказывается существенно ниже. Материал проверяют на наличие зримых дефектов. Поврежденные участки удаляют, а оставшиеся сращивают. После того, как доски высушены, обработаны антипиренами и антисептиками, их строгают по первому классу чистоты. Из этих тщательно высушенных, отстроганных, отсортированных и собранных по кусочкам досок на специальных прессах и склеивается брус.

Еще одна «хитрость» при изготовлении клееного бруса заключается в том, что при склеивании в единый брус направление древесных волокон, или, как их еще называют, «годовых колец», в ламелях задается в противоположные друг от друга стороны. За счет этого клееный брус оказывается более прочным по сравнению с обычным: при изменении влажности он не изменяет своей формы, то есть его «не ведет», повышаются звукоизолирующие свойства.


После склейки ламелей из полученного массива на специальных высокоточных станках вырезается брус необходимого размера и профиля. Это один из самых ответственных моментов изготовления клееного бруса, ведь от точности изготовления пазо-гребневого соединения зависит качество всего бруса и в итоге – качество будущего дома. У фирм-производителей клееного бруса конструкции этих соединений существенно различаются. Встречаются конструкции, представляющие собой паз и выступ, в которые для уплотнения прокладывается ленточный синтетический уплотнитель. При более сложных системах «паз-выступ» использование дополнительных уплотнителей не требуется за счет высокой точности изготовления. В результате абсолютно плотного совмещения элементов такие сочленения не продуваются и не промерзают, в них не проникает влага.

Производство и применение деревянных клееных конструкций (ДКК) находятся на этапе динамично устойчивого развития. Временные параметры этого этапа, условия устойчивости развития, тенденции и приоритеты в обеспечении динамики темпов – эти и другие задачи требуют системного анализа и программного решения.

Общая характеристика. Изготовление деревянных клееных конструкций (ДКК) – давно известный способ получения продукции деревообработки с заданными (требуемыми) потребительскими, эксплуатационными параметрами: столярных плит, мебельных щитов, щитового паркета и др.

Производство массивных, крупногабаритных ДКК (так называемых балок) строительного назначения было начато в середине прошлого века. Эти конструкции являются ответственными элементами строительных систем зданий и сооружений, могут воспринимать большие эксплуатационные нагрузки и обеспечивают устойчивость и безопасность строительных объектов. Поэтому именно этим ДКК (так называемым несущим) уделялось и уделяется наибольшее внимание, особенно в научно-технической и нормативно-методической сферах.

Другие виды ДКК (брусья стен, щиты, бруски окон и дверей и др.) относят к ненесущим конструкциям, выполняющим ограждающие и декоративные (эстетические) функции.

Деревянные клееные конструкции зачастую являются важными элементами строительных систем зданий и сооружений, могут воспринимать большие эксплуатационные нагрузки и обеспечивают устойчивость и безопасность строительных объектов. Производство и применение деревянных клееных конструкций наиболее развито в Европе, Северной Америке, Японии. Мировой объем производства несущих ДКК в 2003 году составил около 4,5 млн. кубометров (в 2004 году – порядка 5 млн. кубометров). Россия пока производит лишь около 2% этих объемов, но за несколько последних лет объемы производства увеличились в 10 раз (с 7,4 тыс., кубометров в 1998 году до 76 тыс. кубометров в 2003 году).


Европа экспортирует, в основном в Японию, до 25% объемов несущих ДКК. Россия экспортирует (в Европу, Японию, Китай и др.) до 40% производимых ДКК, включая мебельные щиты. Япония производит около 0,5 млн. кубометров несущих ДКК, а применяет, прежде всего, в строительстве, более 1 млн. кубометров этих конструкций.

Основными отраслями – потребителями ДКК сейчас являются строительство и мебельное производство, по объемам и количеству научно-проектных разработок лидируют ДКК строительного назначения, среди которых выделяются несущие ДКК, хотя объемы их производства составляют только треть общих объемов строительных ДКК.

Сложившаяся техническая лексика в сфере производства применения ДКК не имеет четкого смыслового разделения: деревянной клееной конструкцией может быть названа часть здания, сооружения или законченная самодостаточная конструкция, являющаяся элементом строительной конструкции, которая, в свою очередь, представляет частный и тоже самодостаточный вариант общетехничёского (энциклопедического) понятия «конструкция».

В строительных нормативных документах (СНиП-10-01) определено: строительная конструкция – часть здания или другого строительного сооружения, выполняющая определенные несущие, ограждающие и/или эстетические функции; строительное изделие – изделие, предназначенное для применения в качестве элемента строительных конструкций зданий и сооружений. Таким образом, ДКК является изделием, используемым при изготовлении строительных конструкций.

Следовательно, когда из определенной совокупности деревянных клееных балок или брусьев, т.е. ДКК, создаются – с использованием стержней, болтов, накладок, поясов и др. соединительных деталей – большепролетные системы перекрытий зданий или сооружений, эти системы должны характеризоваться как строительные конструкции, а использованные для их создания ДКК – как их элементы.

На этой основе определены и предлагаются для технического лексикона в данной области следующие определения:

- деревянная клееная конструкция – монолитная совокупность деревянных деталей определенных параметров и взаиморасположения, соединенных клеевой прослойкой, предназначенная для выполнения несущих, ограждающих и/или эстетических (декоративных) функций в строительных конструкциях, а также в изделиях различного назначения (окна, двери, полы, мебель и др.);

- несущие ДКК – это конструкции, предназначенные для восприятия постоянных эксплуатационных, в основном механических, нагрузок, обеспечивающие безопасность строительных конструкций, и разрушение которых приводит к потере устойчивости всего здания или сооружения;

- ненесущие ДКК предназначаются для выполнения ограждающих и/или декоративных (эстетических) функций строительных конструкций; они являются самонесущими, и их разрушение не приводит к потере устойчивости здания или сооружения. В ряде случаев ДКК выполняют несколько функций в совокупности. Например, клееные брусья стен малоэтажных зданий выполняют ограждающие, несущие и декоративные функции, что должно учитываться при их изготовлении и применении.

К основным классификационным признакам ДКК относят функциональное назначение (несущие и ненесущие ДКК) и условия эксплуатации. По критерию безопасности несущие ДКК подразделяют на несколько групп ответственности. По условиям эксплуатации (температурно-влажностный режим) ДКК подразделяют на несколько классов, в общем виде характеризующих использование ДКК внутри или снаружи зданий или помещений.

Имеющаяся отечественная нормативная база по данной продукции:

- сориентирована преимущественно на несущие ДКК;

- не является комплексной, т.к. не регламентирует все стадии цикла существования ДКК;

- не обновлялась и не уточнялась последние 20-25 лет;

- не располагает современным понятийным аппаратом;

- должна быть приведена в соответствие с введенным с 01.07.03 г. ФЗ «О техническом регулировании», в частности гармонизирована со стандартами ведущих стран мира.

Так, основной нормативный документ – ГОСТ 20850-84 «Конструкции деревянные клееные. Общие технические условия» – действует около 20 лет, а СНиП И-25-80 «Деревянные конструкции» – более 20 лет. В этом заключается одна из причин массового производства ДКК на основе технических условий (ТУ).

В странах-производителях и потребителях ДКК (Европа, США, Япония) сложилась и с конца прошлого века активно реализуется более современная система нормативного обеспечения. Например, стандарты Евросоюза (EN) учитывают назначение конструкций, регламентируют условия их изготовления и системного контроля, определяют требования к клеям, вводят классы прочности пиломатериалов и др. Однако единого понятийного аппарата эти стандарты также не имеют.

Детальный анализ нормативной базы ДКК изложен в «Рекомендациях по изготовлению и применению деревянных клееных конструкций в строительстве», подготовленных и распространенных Ассоциацией производителей и потребителей ДКК в марте 2004 года, и в «Общих рекомендациях по организации производства ДКК», разработанных фирмой «МП «ДОМ».

Специфика производства. Деревянные клееные конструкции – результат взаимодействия четырех основных факторов: это древесина, клеи и защитные вещества, производственные условия (здания с определенным температурно-влажностным режимом, оборудование, инструменты, транспортные и грузоподъемные средства) и персонал, т.е. человеческий фактор. Среди параметров конструкций приоритетное значение имеют критические эксплуатационные показатели прочности и стойкости клеевых соединений, определяющих при прочих равных условиях безопасность и долговечность строительных и других конструкций на основе ДКК.

Каждый из факторов имеет свою специфику. Степень учета специфики и уровень взаимодействия факторов в процессе изготовления ДКК определяют качество этой продукции.

При общей оценке требований к древесине и их влияния на эффективность производства ДКК, особенно ненесущих, следует учитывать следующие преимущества:

- возможность использования менее качественного пиловочника (по диаметру и сортности);

- более рациональное использование древесины, в частности при раскрое бревен на ленточнопильных станках, за счет сращивания короткомерных деталей и др.;

- возможность получения изделий требуемых длин и сечений, существенно ограничиваемых диаметром, длиной и качеством пиловочника при изготовлении цельных брусьев, балок и др. деталей;

- обеспечение большей прочности клееной пилопродукции;

- возможность обеспечения параметрического многообразия клееных деталей, элементов, конструкций.

Учет преимуществ древесно-сырьевой базы ДКК и научно-практические возможности либерализации требований к древесине для ДКК различного назначения будут существенно и позитивно влиять на развитие их производства.

Расход клея – как второго основного компонента ДКК – может составлять в отдельных видах ДКК десятки килограммов на один кубометр клееной пилопродукции. При существующих уровнях цен (до 150-200 руб. / кг) стоимость клеев, следовательно, может определять до половины себестоимости ДКК. Но клеи – основа прочности, надежности и долговечности ДКК. Поэтому выбор клея – это, прежде всего определение гарантии качества ДКК. Здесь в полной мере должно соблюдаться соотношение «качество – цена». Определенным образом это относится и к выбору защитных веществ для огне- и биозащиты ДКК.

С помощью деревянных клееных конструкций создаются сложные элементы зданий. Основным критерием качества любого клея, т.е. его эксплуатационных свойств (прочность и долговечность клеевого соединения, водостойкость, эластичность и т.д.) и технологических свойств (вязкость, время отверждения и т.д.), является стабильность свойств в поставляемых партиях.

Особенностью отечественных клеев для деревянных клееных конструкций является отсутствие единой регламентированной и методически обеспеченной номенклатуры показателей их качества, гарантий стабильности основных свойств, комплексного сервиса (компоненты, оборудование для клееприготовления и клеенанесения, обучение персонала и др.). Импортные, прежде всего европейские, клеи во многом лишены этих недостатков.

Принципиальная важность качества клеев для обеспечения эксплуатационных параметров ДКК и оптимальных технико-экономических показателей производства конструкций будет постоянно стимулировать поиск новых научно-практических решений – как по линии новых и модифицированных клеев, так и по линии импортозамещения.

Защитные вещества (антипирены и антисептики) применяют для предохранения ДКК от воздействия огня (обеспечение огне- и пожаростойкости) и от негативного влияния на древесину переменных и постоянных температурно-влажностных факторов. Иными словами, защитная обработка деревянных клееных конструкций должна обеспечить их безопасность и долговечность в период эксплуатации. Глобализация нормативных требований по защите ДКК, особенно несущих, уже длительное время подвергается обоснованным сомнениям:

- био- и пожаростойкость ДКК должны, прежде всего, обеспечиваться конструктивными решениями при проектировании конкретных зданий и сооружений (если таких решений не предусмотрено, то лишь защитная обработка древесины слабоэффективна);

- исследования отечественной и мировой науки, а также практика ряда стран доказывают, что пожаростойкость ДКК в значительной степени определяется не только и не столько их защитной обработкой, а массивностью их сечения: чем она больше, тем выше пожаростойкость ДКК;

- затраты на глубокую пропитку древесины антипиренами (а поверхностная обработка малоэффективна) сопоставимы с полной себестоимостью ДКК.

Представляется очевидным, что в ближайшие годы эти сомнения с уровня дискуссионности перейдут в формат конкретных нормативных решений.

Среди общетехнических параметров технологического оборудования (производительность, точность, надежность и др.) особой перспективной актуальностью выделяется уровень автоматизации, что по ряду причин, которые рассмотрены ниже, будет служить определяющим критерием высокого качества и конкурентоспособности производства ДКК.

Машинная сортировка пиломатериалов, автоматизированные процессы их сушки, приготовление и нанесение клея без участия человека, комплексы для торцевого сращивания деталей – эти уже реально существующие примеры показывают: вектор прогресса в техническом обеспечении ДКК направлен в сторону практически полной автоматизации их производства. При этом не следует ожидать «механического симбиоза» отдельных автоматизированных операций: реальная автоматизация, производства ДКК возможна только на основе полной математической модели всего технологического процесса и ее программной реализации. «Штабным регулятором» автоматизированного комплекса должен, безусловно, стать центр контроля и испытаний (ЦКИ), показания приборов которого будут являться корректирующими сигналами. Реальным шагом к созданию ЦКИ может стать адаптация имеющихся в других отраслях приборов для оперативного контроля качества клеевого соединения ДКК.

Человеческий фактор в общем виде определяется как участие человека в выполнении, контроле, оценке операций и процессов, в подготовке и реализации решений по их регулированию. Влияние Человеческий фактор может быть негативным по нескольким причинам: непрофессиональное выполнение операции, т.е. прямой брак; контроль несвоевременный, неполный и неквалифицированный; ошибки в оценке ситуации; несвоевременное или неадекватное решение и т.д.

Процесс изготовления ДКК высокого качества обязательно должен учитывать влияние человеческого фактора на компоненты и условия производства (древесина, клеи, оборудование и др.) и предусматривать систему мер по локализации или нейтрализации этого влияния.

Локализация человеческого фактора осуществляется системными организационно-техническими и социальными мерами:

- комплексом организационно-распорядительной, технологической, инструкторской и др. документации, регламентирующей действия персонала;

- подбором квалифицированного персонала и его периодической аттестацией на основе профориентирования;

- системой морального и материального стимулирования;

- постоянным и эффективным контролем соблюдения технологической и исполнительской дисциплины и др.

Эти меры являются обязательной составной частью современных систем управления производством (менеджмента) и систем качества продукции. При четком их соблюдении обеспечивается существенная локализация человеческого фактора и относительно стабильный уровень качества продукции. Но устойчивость и долговечность эффекта локализации тоже зависят от человеческого фактора – на уровне руководящего персонала. Понимание ограниченной эффективности локализации человеческого фактора обусловливает поиск, разработку и реализацию решений по нейтрализации влияния человеческого фактора. Нейтрализация человеческого фактора заключается в максимально возможном исключении участия человека в выполнении, контроле, оценке конкретных операций изготовления ДКК, в выработке и реализации решений по регулированию этих операций. Поэтому нейтрализация человеческого фактора может быть обеспечена только техническими средствами, т.е. автоматизацией операций, выполняемых по заданной программе.

Локализацию человеческого фактора следует оценивать как обязательное тактическое условие конкурентоустойчивого развития производства ДКК в ближайшие годы, а нейтрализацию человеческого фактора необходимо рассматривать как стратегическое направление и приоритет развития производства ДКК на более длительную перспективу. Это направление требует системных и долговременных научно-технических разработок, выполнение которых должно быть осознано и инициировано профессиональным сообществом.

Тенденции развития. В последние 5-7 лет в мировом и отечественном производстве ДКК отмечаются и с различной динамичностью развиваются определенные тенденции, системное изложение и анализ которых имеют существенное значение для концептуальных оценок направлений развития этой отрасли деревообработки.

1. Устойчивый рост объемов промышленно-гражданского строительства, современные архитектурно-проектные решения уникальных зданий и сооружений (спортивно-зрелищных, торговых и т.п.) и реконструкции жилого фонда (за счет мансардных этажей), создание малоэтажных домов повышенной комфортности, экологические приоритеты в мебельном производстве и другие факторы, в т.ч. технико-экономические преимущества изделий из древесины, обусловили масштабное увеличение спроса на деревянные клееные конструкции.

2. Объемное увеличение спроса на ДКК сопровождается и определяется как расширением областей их применения, так и номенклатурным многообразием ДКК (брусовых, дощатых, щитовых, гнутоклееных и др.).

3. Структура сбыта ДКК явно приобретает формат двухуровневой системы: внутренний рынок и внешний рынок (экспорт). Требования последнего существенно отличаются, что обусловливает строительство и деятельность специализированных предприятий в России (как в европейской части страны – с ориентацией преимущественно на рынки Западной Европы, так и в Сибири и на Дальнем Востоке – для поставок в страны Восточно-Азиатского региона, прежде всего в Японию и Китай).

4. В среде участников цикла существования ДКК (архитекторов, проектантов, ученых, производственников, строителей) получают развитие интеграционные процессы как основа саморегулирования и решения общих задач при учете частных интересов. В 2003 году образованы:

- Межрегиональная ассоциация производителей деревянных клееных конструкций, объединившая ряд в основном экспортно-ориентированных предприятий;

- Ассоциация производителей и потребителей клееных деревянных конструкций, основной целью которой является поддержка отечественных изготовителей ДКК и комплексное решение проблем их производства и применения на основе консолидации интересов, опыта и возможностей всех участников цикла существования ДКК.

5. Перспективно устойчивая динамика спроса на ДКК инициирует выполнение локальных исследований прикладного значения (обзоры, аналитические материалы, испытания новых типов конструкций и т.п.), не имеющих системного характера, не создающих программного обеспечения всего цикла существования ДКК и, главное, не формирующих научного задела, т.е. перспективных результатов.

Актуальность этих задач и необходимость их решения будут, возможно, осознаваться по мере развития и укрепления ассоциаций как саморегулируемых профессиональных сообществ, которые полностью (судя по зарубежной практике) формируют и реализуют направления развития своих отраслей.

6. Руководство и технический персонал предприятий-изготовителей ДКК в основном усвоили приоритетную значимость качества для обеспечения конкурентоспособности выпускаемой продукции, что совсем не характерно для большинства рабочего персонала, квалификация которого не всегда соответствует требованиям изготовления ДКК.

7. Базирование производства экспортно-ориентированных предприятий на нормативах качества регионов-импортеров ДКК, стратегическая открытость страны для мировых рынков (при вступлении России в ВТО), хроническое старение отечественной нормативной базы обостряют проблему ее обновления на основе гармонизации с нормативными документами ведущих стран и регионов и в форматах новых документов, установленных ФЗ «О техническом регулировании».

8. С введением с 01.07.03 г. ФЗ «О техническом регулировании» производство и применение ДКК, как и другие промышленные производства, должны в течение нескольких лет получить новое нормативное обеспечение:

- регламентирующее виды безопасности ДКК на всех стадиях цикла их существования – от создания (проекта) и изготовления до эксплуатации и утилизации;

- нормирующее степени риска причинения вреда жизни или здоровью человека и имуществу различных форм собственности во всех стадиях цикла существования ДКК;

- базирующееся только на параметрах потребительского (эксплуатационного) качества ДКК и не регламентирующее их конструктивные решения, способ изготовления и др.;

- имеющее форматы технических регламентов (обязательных для исполнения) и национальных стандартов и стандартов организаций, являющихся документами добровольного применения.

9. Среди научно-практических решений, отличающихся перспективной новизной, вызывающих интерес и даже локально применяемых на ряде предприятий-изготовителей ДКК, но не имеющих достаточных научно-технических обоснований и окончательных регламентов и поэтому находящихся в дискуссионном поле, следует отметить:

- раздельное и достаточное или последовательно-совмещенное применение машинной и визуальной оценки качества пиломатериалов для изготовления ДКК. Машинный способ обеспечивает более точную оценку физико-механических, прежде всего прочностных, свойств древесины и степени влияния на них ряда пороков древесины (в основном сучков). Визуальный способ менее точен в оценке прочностных свойств древесины, но более объективен при оценке влияния других пороков (грибные окраски, трещины и др.);

- использование в многослойных ДКК (балках, брусьях и т.п.) ламелей (слоев) различного качества (сортности) и различных древесных пород. Производственная эффективность таких способов формирования слоев ДКК очевидна, но не имеет достаточных экспериментальных, в т.ч. мониторинговых, исследований;

- критическая величина градиента (перепада) влажности древесины в смежных склеиваемых деталях не должна превышать 4% (±2%); обиходное мнение, что каждый 1% градиента снижает прочность клеевого соединения на 10%, не имеет достаточного экспериментального обоснования. Тем более с учетом появившейся в последнее время информации о новых клеях, способных обеспечивать прочность клеевого соединения деревянных деталей любой влажности;

- использование клеев с демпфирующими добавками в производстве ДКК для условий с большими температурными колебаниями;

- применение раздельного (сначала наносится на деревянную деталь отвердитель, затем, через короткое время, смола) или традиционного способа (смесь смолы и отвердителя) нанесения клея. При явных производственных преимуществах раздельный способ не имеет полных и достоверных описаний физико-химических процессов при раздельном соединении смолы и отвердителя; требуются масштабные лабораторные и мониторинговые исследования;

- деревянные клееные конструкции все активнее используются в жилищном строительстве, особенно при возведении малоэтажных домов гарантированная стабильность свойств клея исключает необходимость периодического операционного контроля прочности клеевых соединений в процессе изготовления ДКК. Практическая неоперативность влияния результатов применяемого контроля очевидна и требует более современных методов и средств (например, приборов непрерывного контроля параметров клеевой прослойки). Отказ же от операционного контроля по критерию гарантированной стабильности свойств поставляемого клея или его компонентов (смолы и отвердителя) представляется необоснованным, т.к. в обеспечении прочности клеевого соединения участвуют, кроме клея, другие факторы (оборудование, человек и др.);

- массивные ДКК, т.е. конструкции крупных поперечных сечений, более безопасны в пожарном отношении, чем конструкции из других материалов (металла, железобетона и др.); это подтверждается солидными справочными источниками и практикой нормирования пожарной безопасности в ряде стран, но не учитывается в отечественных нормативных документах, которые предусматривают обязательную антипиреновую обработку ДКК.

Консерватизм отечественных противопожарных нормативов, имеющий ощутимые экономические последствия для изготовителей массивных несущих ДКК (из-за количества требуемых огнезащитных материалов, их стоимости и др. затрат на защитную обработку конструкций), может и должен быть преодолен на основе учета зарубежного опыта, получения результатов сравнительных испытаний и анализа статистических данных;

- научно-методические и в перспективе технические возможности создания и эффективной работы автоматизированных производств ДКК на основе компьютерно-программного их обеспечения. Такой уровень обеспечения уже характерен для ряда операций, например сушки пиломатериалов, изготовления и нанесения клея, машинной сортировки пиломатериалов. Реализация этой крупной и принципиально важной для перспектив ДКК научно-практической проблемы потребует масштабных инвестиций и долгосрочных работ.

10. Отмечается динамичное увеличение количества публикаций по вопросам изготовления и применения ДКК и профессиональных публичных мероприятий (семинаров, конференций, «круглых столов» и др.), что обусловлено темпами развития этой отрасли деревообработки. Одновременно идет процесс накопления практической и проблемной информации как одного из важных параметров оценки перспектив развития ДКК.

11. Формируется осознание активной и продуктивной роли профессионального сообщества в создании (на основе стандартов организаций, что предусмотрено ст. 17 ФЗ «О техническом регулировании») современной нормативно-технической базы ДКК. В наиболее полном виде это отражено в системе технического регулирования ДКК, принятой и реализуемой АПП КДК.

Такая позиция и система позволяют:

- оперативно разрабатывать (с учетом апробированных новых решений в области ДКК), вводить и применять нормативные документы, регламентирующие все аспекты цикла существования ДКК;

- конструктивно, на основе результатов практического применения стандартов организации, участвовать в работах по подготовке нормативных документов федерального уровня – технических регламентов и национальных стандартов;

- существенно уменьшить затраты времени и средств на нормотворчество на уровне предприятий;

- создать современную нормативно методическую базу сертификации ДКК;

- определить и ввести в практику отечественного производства ДКК критерии высокой конкурентоспособности продукции и современного технического и организационно-структурного уровня предприятий.

12. Отмечаемая частота профессиональных мероприятий и динамика публикаций по проблемам ДКК не снижают, а только усиливают остроту дефицита регулярной разноплановой информации в области ДКК. Поэтому актуализируется задача организации периодического издания (журнала, бюллетеня и т.п.), которая может быть решена профсообществом участников цикла существования ДКК

Прогнозы и приоритеты. Макроанализ состояния и динамики областей применения ДКК дает основания для следующих выводов:

а) ДКК – высокотехнологичный, инновационно активный, экономически эффективный, инвестиционно привлекательный вид продукции деревообработки;

б) объемные параметры производства ДКК определяются масштабами и темпами развития промышленно-гражданского строительства, сопутствующего ему развития современного мебельного производства и возможностями расширения участия России на международных рынках (особенно при вступлении в ВТО);

в) опережающими темпами в ближайшие годы будет развиваться производство несущих ДКК;

г) получит развитие применение ДКК в различных областях промышленно-гражданского строительства, прежде всего в малоэтажном строительстве, при изготовлении столярно-строительных и др. изделий;

д) вектор экспорта ДКК (в виде балок, брусьев и щитов) будет заметно усиливаться в восточно-азиатском и ближневосточном направлениях;

е) количественно ежегодные темпы производства ДКК на ближнюю перспективу могут прогнозироваться:

- по несущим ДКК – до 50%, в т.ч. на экспорт – до 30%,

- по ненесущим ДКК – до 40%, в т.ч. на экспорт – до 30%,

- для мебели – до 60%,

- для малоэтажного строительства – до 25%.

При этом степень удовлетворения внутреннего спроса не превысит 80%, если не будут введены новые мощности по производству ДКК;

ж) принципиальную важность имеет работа профессиональных сообществ и вертикально интегрированных структур для эффективной реализации перспектив развития ДКК на изложенных в п. «б» условиях, при сохранении вектора идущих в стране преобразований и при адекватном и оперативном реагировании производства на динамику рынков спроса.

Перспективы развития производства и применения ДКК и анализ их проблематики обусловливают ряд приоритетов тактического и стратегического уровня, среди которых наибольшей текущей и среднесрочной актуальностью выделяются:

- современное нормативно-техническое обеспечение цикла существования ДКК на основе реализации системы технического регулирования;

- формирование, расширение, укрепление профессионального сообщества создателей, изготовителей и потребителей ДКК и обеспечение его активной и эффективной деятельности на федеральном, региональных, отраслевых и промышленно-строительных уровнях;

- обеспечение конкурентоустойчивости отечественного производства ДКК, прежде всего на основе эффективных форм его организации, импортозамещения и гарантий высокого качества продукции;

- создание новых и модернизация существующих предприятий на основе гибких многовариантных технологий, обеспечивающих оперативное реагирование на динамику спроса;

- научное обоснование параметров безопасности с учетом особенностей изготовления и применения ДКК, в частности по пожарной безопасности;

- совершенствование имеющихся и разработка новых видов ДКК на основе результатов маркетинга – существующих и потенциальных рынков спроса;

- проведение поисковых НИОКР по созданию автоматизированного производства ДКК при одновременном выполнении работ по научно-техническому обеспечению центров испытания конструкций на предприятиях-изготовителях ДКК;

- системное и активное изучение опыта развитых стран мира в области производства и применения ДКК;

- необходимость разработки и системной реализации программы работ по обеспечению перспектив развития производства и применения ДКК на основе обоснованных приоритетов;

- целесообразность наличия в профессиональном сообществе изготовителей ДКК базового предприятия, на котором должны апробироваться новые научно-технические и нормативно-методические решения и проводиться мероприятия по повышению квалификации рабочего персонала.

Перспективная объемность производства и применения деревянных клееных конструкций, их высокая технологичность и наукоемкость, инновационная активность производства ДКК и его значимость для проблемы конкурентоспособного уровня и повышения товарности продукции отечественной деревообработки определяют необходимость комплексных и разноуровневых решений в этой сфере.

Эффективность реализации изложенных направлений развития ДКК будет определяться комплексностью и детализацией программы работ различного уровня, обеспеченностью этих работ исполнителями и достаточными средствами, системным контролем, оценкой и, при необходимости, корректировкой сроков и результатов. Формирование, обеспечение, выполнение такой программы представляются принципиально важными как для самого профессионального сообщества, так и для всего отечественного строительного комплекса.

 

 

Разм

 

 

Арки также как и рамы относятся к распорным конструкциям, т. е. для них характерно наличие горизонтальной составляющей опорной реакции (распора).

Арки используются в качестве основных несущих конструкций зданий различного назначения. Их применяют в покрытиях промышленных, сельскохозяйственных и общественных зданий пролетом от 12 до 70 м. В зарубежном строительстве с успехом применяют арки пролетом до 100 м и более.

По статической схеме арки разделяют на трехшарнирные и двухшарнирные без ключевого шарнира:

Рисунок 1 – Трехшарнирная и двухшарнирная арка

По схеме опирания их делят на арки с затяжками, воспринимающими распор и на арки без затяжек, распор которых передается на опоры.

Рисунок 2 - Арка без затяжки и с затяжкой

Затяжки изготовливают в большинстве случаев из арматуры или профильной стали. Возможно применение деревянных клееных затяжек, в условиях химически агрессивных сред, где металл будет корродировать.

 

По форме оси арки делят на:

- треугольные из прямых полуарок

- пятиугольные

Рисунок 3

- сегментные, оси полуарок располагаются на общей окружности

- стрельчатые, состоящие из полуарок, оси которых располагаются на двух окружностях, смыкающихся в ключе под углом.

Рисунок 4

 

По конструкции арки делятся на:

1) цельные (только треугольной формы);

2) арки из ферм

Рисунок 5 – Арка из фермы (l=30…60 м, f=l/3…l/2)

3) арки из балок на пластинчатых нагелях (Деревягина)

4) кружальные арки, состоящие из двух или более рядов косяков, соединенных между собой нагелями

Рисунок 6 – Кружальная арка

5) арки с перекрестной дощатой стенкой на гвоздях

Рисунок 7 – Арка с перекрестной дощатой стенкой (l=20…40 м, f≥l/6)

6) клееные арки (дощатоклееные и клеефанерные)

 

Из перечисленных видов арок наиболее широкое применение получили клееные арки заводского изготовления. Распоры и несущая способность таких арок могут отвечать требованиям сооружения покрытий самого различного назначения, в том числе уникальных по своим размерам.

Арки остальных видов являются арками построечного изготовления и сейчас почти не применяются. Дощатоклееные деревянные арки представляют собой пакет склеенных по пласте гнутых досок.

По форме оси дощатоклееные арки могут иметь любой из перечисленных выше видов, т.е. они могут быть треугольными (без затяжек – при высоте 1/2 l и с затяжками – при высоте 1/6 … 1/8 l в покрытиях до 24 м), пятиугольными с гнутыми участками в местах переломов осей, пологими сегментными двух- или трехшарнирными со стрелой подъема не менее 1/6 l (в редких случаях 1/7…1/8 l) и высокими трехшарнирными стрельчатыми из элементов кругового очертания со стрелой подъема 1/3…2/3 l. Последние два вида клееных арок (сегментные и стрельчатые) рекомендуются в качестве основных.

Поперечное сечение клееных арок рекомендуется принимать прямоугольным и постоянным по всей длине. Высота поперечного сечения назначается от 1/30…1/50 пролета. Толщина слоев для изготовления арок при радиусе кривизны до 15 м принимается не более 4 см.

Клееные арки имеют перспективы применения в легких покрытиях. Они, как правило, имеют треугольную форму и состоят из коробчатых клеефанерных полуарок. Такие арки имеют малую массу и позволяют получать существенную экономию древесины. Однако, они требуют расхода водостойкой фанеры, являются более трудоемкими при изготовлении, чем дощатоклееные и имеют меньший предел огнестойкости.

Самым распространенным и перспективным видом арок являются дощатоклееные арки.

 

Расчет арок

Расчет арок производится по правилам строительной механики, причем распор пологих двухшарнирных арок при стреле подъема не более 1/4 пролета разрешается определять в предположении наличия шарнира в ключе.

Расчет арок после сбора нагрузок выполняется в следующем порядке:

1) геометрический расчет арки;

2) статический расчет;

3) подбор сечений и проверка напряжений;

4) расчет узлов арки.

Нагрузки, действующие на арку, могут быть распределенными и сосредоточенными. Постоянную равномерную нагрузку g от массы покрытия и самой арки определяют с учетом шага арок. Она обычно условно считается в запас прочности, равномерно распределенной по длине пролета, для чего ее фактическое значение умножают на отношение длины арки к ее пролету S/l.

Массой арки можно задаться предварительно с использованием коэффициентов собственной массы kсв=2…4, и определить его в зависимости от массы покрытия gn, снега p и других нагрузок из выражения

Снеговую нагрузку р определяют по нормам нагрузок и воздействий, условно равномерно распределенную по длине пролета покрытия.

При расчете сегментных арок при f/l≥1/8 нужно учитывать также распределение снеговой нагрузки по треугольным эпюрам при значении коэффициента перехода в ключе 0, близ опор – от 1.6 до 2.2 с одной стороны и от 0.8 до 1.1 – с другой.

Стрельчатые арки при определении снеговых нагрузок могут условно считаться треугольными.

Ветровую нагрузку q определяют по нормам нагрузок и воздействий с учетом шага арок и считают приложенной нормально к поверхности покрытия. При этом для упрощения расчета криволинейные эпюры этой нагрузки можно заменять прямолинейными нормальными к хордам полуарок.

При стрельчатых арках они условно могут считаться треугольными, и нагрузка распределится нормально к хордам полуарок.

Сосредоточенные, временные нагрузки Р включают в себя массу подвесного оборудования и временных нагрузок на нем.

Геометрический расчет арки заключается в определении всех размеров, углов и их тригонометрических функций полуарки, необходимых для дальнейших расчетов. Исходными данными при этом являются пролет l, высота f, а в стрельчатых арках также радиус полуарки r или ее высота f.

По этим данным в треугольных арках определяют длину S/2 и угол наклона полуарки α. В сегментных арках определяют радиус

,

центральный угол φ из условия и длину дуги полуарки и находят уравнение дуги в координатах с центром в левой опоре

Рисунок 8 – Геометрическая и расчетная схема арки

В стрельчатых арках определяют угол наклона α и длину l хорды, центральный угол φ и длину S/2 полуарки, координаты центра a и b, угол наклона опорного радиуса φ0 и уравнение дуги левой полуарки . Затем половину пролета арки делят на четное число, но не менее шести равных частей и в этих сечениях определяют координаты х и у, углы наклона касательных α и их тригонометрические функции.

 

Статический расчет

Опорные реакции трехшарнирной арки состоят из вертикальных и горизонтальных составляющих. Вертикальные реакции Ra и Rb определяют как в однопролетной свободно опертой балке из условия равенства нулю моментов в опорных шарнирах. Горизонтальные реакции (распор) Ha и Hb определяют из условия равенства нулю моментов в коньковом шарнире.

Определение реакций и усилий удобно производить в сечениях только одной левой полуарки в следующем порядке:

сначала усилия от единичной нагрузки справа и слева, затем от левостороннего, правостороннего снега, ветра слева, ветра справа и массы оборудования.

Изгибающие моменты следует определять во всех сечениях и иллюстрировать эпюрами.

Продольные и поперечные силы можно определять только в сечениях у шарниров, где они достигают максимальных величин и необходимы для расчетов узлов. Необходимо также определять продольную силу в месте действия максимального изгибающего момента при таком же сочетании нагрузок.

Усилия от двустороннего снега и собственной массы определяют путем суммирования усилий от односторонних нагрузок.

Полученные результаты сводят в таблицу усилий, по которой затем определяют максимальные расчетные усилия при основных наиболее не выгодных сочетаниях нагрузок.

В число таких сечений должны входить:

1) собственная масса и снег;

2) собственная масса, снег и масса оборудования;

3) все действующие нагрузки, включая ветровую с коэффициентом 0.9, вводимого в усилия от временных нагрузок.

Для клееных арок «Пособие» к СНиП II-25-80 расчет на прочность рекомендует выполнять при следующих сочетаниях нагрузок.

а) в пологих арках (f<1/3l)

– расчетная постоянная и временная (снеговая) нагрузка на всем пролете и временная нагрузка от подвесного оборудования;

- расчетная постоянная нагрузка на всем пролете, односторонняя временная (снеговая) нагрузка на половине пролета и временная нагрузка от подвесного оборудования;

- расчетная постоянная нагрузка на всем пролете, односторонняя временная (снеговая) нагрузка, распределенная по треугольнику на l/2, и временная нагрузка от подвесного оборудования;

б) стрельчатых арках (f≥1/3l)

- расчетная постоянная и временная (снеговая) нагрузки на всем пролете и временная нагрузка от подвесного оборудования;

- расчетная постоянная нагрузка на всем пролете, временная (снеговая) на S/2 или части пролета в соответствии со СНиП «Нагрузки и воздействия» и временная нагрузка от подвесного оборудования;

- ветровая нагрузка с постоянной и остальными временными (с учетом коэффициента сочетания 0.9).

 

Максимальные изгибающие моменты возникают обычно в сечениях близ четверти пролета арки при действии односторонних временных нагрузок. В треугольных арках моменты от вертикальных нагрузок уменьшаются за счет обратных моментов М от эксцентриситета е продольных сил N

Рисунок 9 – Силовые воздействия в опорном узле арки

Наибольшие продольные силы возникают в сечениях близ опор, а наибольшие поперечные силы – в сечениях близ шарниров.

Усилия в подвесках затяжек возникают от подвешенных к ним грузов и от собственной массы затяжек.

Подбор сечений и проверка напряжений производятся по максимальным значениям расчетных усилий. При этом ветровые нагрузки учитываются только в тех случаях, если ветер более чем на 20 % увеличивает расчетные усилия.

Арки работают и рассчитываются на сжатие с изгибом по прочности и устойчивости в плоскости и из плоскости арки.

Подбор сечений производится методом попыток по величине изгибающего момента при условно пониженном, например, до 0.8 Ru расчетном сопротивлении древесины изгибу.

При расчете арок выполняются следующие проверки

1. Проверка прочности по нормальным напряжениям:

2. Расчет на устойчивость плоской формы деформирования (из плоскости арки)

3. Проверка устойчивости в плоскости арки выполняется по формуле

где φ=f(λ) – коэффициент продольного изгиба, .

Расчетную длину элемента l0 следует принимать по СНиП II-25-80 в зависимости от расчетной схемы и схемы загружения арки.

При расчете арки на прочность и устойчивость плоской формы деформирования N и Mg следует принимать в сечении с максимальным моментом (Mmax), а расчет на устойчивость в плоскости кривизны и определение коэффициента ξ к моменту Mg нужно определять, подставляя значения сжимающей силы N0 в ключевом сечении арки, т.к. в этом сечении сила имеет наибольшее значение.

Затяжки и подвески арок работают и рассчитываются на растяжение.

 

Узлы арок

Основными узловыми соединениями трехшарнирных арок являются опорные и коньковые шарниры.

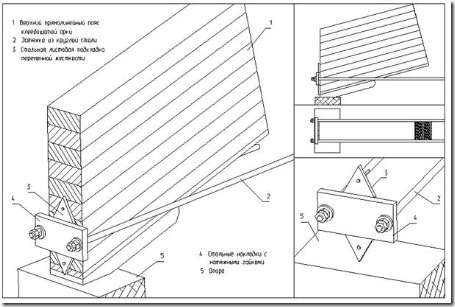
Опорные узлы арок без затяжек выполняют, как правило, в виде лобовых упоров в сочетании с металлическими башмаками сваркой листовой конструкции, служащими для крепления их к опорам.

Башмак состоит из опорного листа с отверстиями для анкерных болтов и двух вертикальных фасонок с отверстиями для болтов крепления полуарок.

Рисунок 10 – Опорный узел

Узлы сегментных и стрельчатых арок, в которых действуют изгибающие моменты разного знака и незначительные поперечные силы, центрируются по осям полуарок, а опорный лист башмака перпендикулярен им.

Узлы треугольных арок, в которых действуют в основном положительные моменты и значительные поперечные силы, центрируются по расчетным осям, расположенным с эксцентриситетом относительно осей полуарок, а опорный башмак перпендикулярен равнодействующей вертикальной и горизонтальной опорных реакций.

Рисунок 11 – Опорная площадка, воспринимающая опорную реакцию без сдвига

Расчет опорного узла заключается в расчете торца полуарки на смятие от действия максимальной сжимающей силы Nсм. В сегментных и стрельчатых арках она равна максимальной продольной силе N и действует вдоль волокон. В треугольных арках она равна равнодействующей опорных усилий

и действует под углом к волокнам α, определяемом из выражения

Болты крепления полуарки к фасонкам рассчитывают на действие максимальной поперечной силы Q, как симметрично изгибаемые, двухсрезные. На эту же силу рассчитываются анкерные болты на срез и смятие. Бетон фундамента рассчитывается на смятие от силы Nсм.

Опорный лист башмака работает на изгиб от действия равномерного давления лобового торца полуарки.

Опорные узлы большепролетных арок без затяжек выполняют с применением металлических шарниров качающегося типа

Рисунок 12 – Опорный узел с шарниром

Опорные узлы клееных арок, работающих в условиях химической агрессии, могут быть выполнены при помощи стержней, одним концом вклеенных в конец полуарки, а другим – заанкерованных в фундамент.

 

Опорные узлы арок с затяжками

Опорные узлы клееных арок с затяжками выполняются обычно при помощи лобового упора и сварных металлических башмаков несколько другой конструкции

Рисунок 13 – Опорный узел с металлической затяжкой

Опорный узел сегментной арки с деревянной затяжкой на болтах:

Рисунок 14 – Опорный узел с деревянной затяжкой

Опорный лист в арках с затяжками располагается горизонтально, поэтому арки ставятся на горизонтальную поверхность опор, на которые не действует распор. Вертикальные фасонки могут опираться на опорный лист или опорный лист может размещаться между фасонками.

При опирании на бетон опорный лист удлиняют за пределы фасонок для крепления анкеров, а при опирании на деревянную стойку фасонки опирают ниже опорного листа для крепления их к стойке болтами. Между фасонками располагается упорная диафрагма. Наклон диафрагмы и центрирование узла производятся по тем же соображениям, что и в узлах арок без затяжек.

Металлическую затяжку приваривают к фасонкам, деревянную распологают между фасонками и крепят к ним болтами.

Расчет опорного узла предполагает:

1) расчет диафрагмы на изгиб как балки заделанной в фасонках, на давление лобового упора δg.

При этом изгибающий момент при ширине 1 см равен

;

2) расчет опорного листа на изгиб как двухконсольной или заделанной в фасонках балки на реактивное давление фундаментов δб;

3) определяют длину сварных швов крепления затяжки или число крепежных болтов – для деревянных затяжек из условия восприятия или усилия в затяжке.

Опорные узлы дощатых арок с затяжками выполняется при помощи гвоздевых или болтовых соединений досок пояса и затяжки.

Затяжки брусчатых арок из арматурной стали пропускаются через отверстия в конце полуарки и закрепляются гайкой на шайбе.

Расчет таких узлов производят на смятие торцевых обрезов.

Рисунок 15 – Опорный узел арки

 

Коньковые узлы сплошных арок малых и средних пролетов решаются в виде прямых или наклонных лобовых упоров со стальными креплениями или деревянными накладками на болтах. Сегментные и стрельчатые клееные арки центрируются в этих узлах по осям полуарок, а треугольные – с эксцентриситетами (с той же целью, что и в опорных узлах).

Рисунок 16 – Коньковый узел треугольной арки

Рисунок 17 – Коньковый узел сегментной арки

Лобовые упоры конькового узла рассчитывают на смятие под углом или вдоль волокон на действие продольной силы N. Количество болтов в стальных креплениях определяется в зависимости от величины поперечной силы Q с учетом угла смятия древесины под болтами. Монтажные болты рассчитывают на срез и смятие от действия той же силы Q.

Коньковые узлы большепролетных арок выполняются в виде стальных шарниров качающегося типа

Рисунок 18 – Стальной шарнир качающегося типа

Стыки элементов арок.

Стыки клееных арок представляют собой зубчатые соединения досок по длине и стыки по пласти слоев досок между собой. Арки больших пролетов соединяются по длине жесткими стыками с помощью двусторонних накладок из профильной стали и болтов.

Эти стыки рассчитываются на усилия, действующие в данном сечении арки.

 



<== предыдущая | следующая ==>
 | Меры профилактики деревообрабатывающих цехов





Date: 2015-06-12; view: 717; Нарушение авторских прав



mydocx.ru - 2015-2026 year. (0.399 sec.) Все материалы представленные на сайте исключительно с целью ознакомления читателями и не преследуют коммерческих целей или нарушение авторских прав - Пожаловаться на публикацию