Главная Случайная страница


Полезное:

Как сделать разговор полезным и приятным Как сделать объемную звезду своими руками Как сделать то, что делать не хочется? Как сделать погремушку Как сделать так чтобы женщины сами знакомились с вами Как сделать идею коммерческой Как сделать хорошую растяжку ног? Как сделать наш разум здоровым? Как сделать, чтобы люди обманывали меньше Вопрос 4. Как сделать так, чтобы вас уважали и ценили? Как сделать лучше себе и другим людям Как сделать свидание интересным?


Категории:

АрхитектураАстрономияБиологияГеографияГеологияИнформатикаИскусствоИсторияКулинарияКультураМаркетингМатематикаМедицинаМенеджментОхрана трудаПравоПроизводствоПсихологияРелигияСоциологияСпортТехникаФизикаФилософияХимияЭкологияЭкономикаЭлектроника






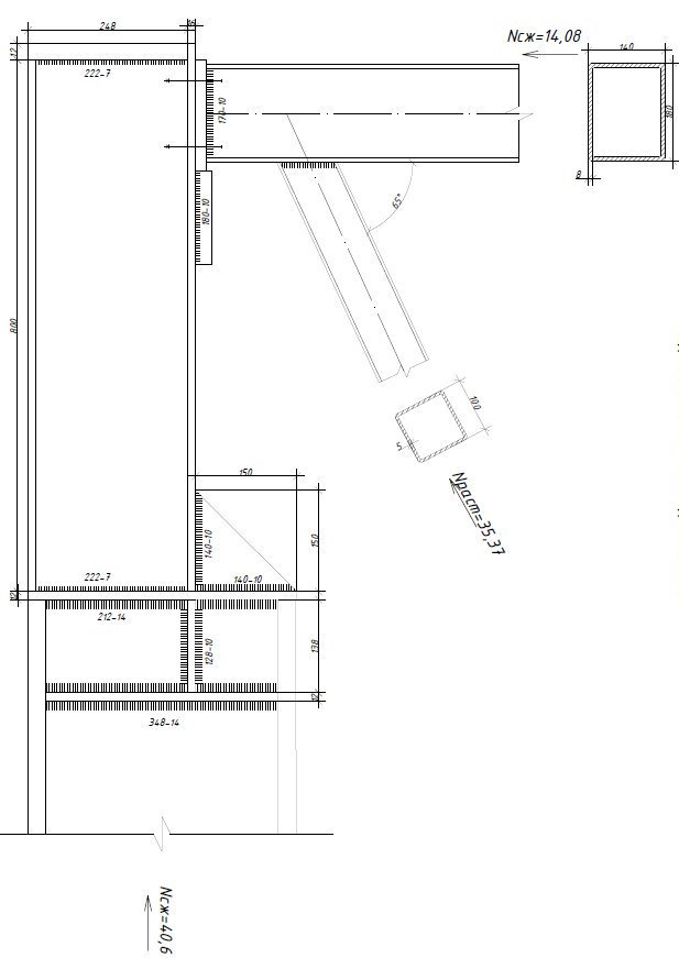
Расчет опорных узлов





Верхний опорный узел (узел 1) решается конструктивно, без расчета.

10.3.1 Расчет нижнего опорного узла (узел 2)

РАСЧЕТ НА ПРОДАВЛИВАНИЕ СЖАТЫМ РАСКОСОМ ПОЛКИ ПОЯСА

1. Определение длины участка пересечения сжатого раскоса с поясом.

2. Определение расстояния между краями раскосов.

2с = 25мм > 20мм, с = 12,5мм

3. Определение соотношения с к b1 и db1 к D.

 

4. Определение величины

5. Определение несущей способности полки на сжатие в случае и

6. Определение внешней продавливающей силы перпендикулярной оси пояса.

Проверка несущей способности пройдена.

 

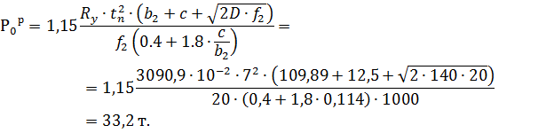
РАСЧЕТ НА ВЫРЫВАНИЕ ПОЛКИ ПОЯСА РАСТЯНУТЫМ РАСКОСОМ

1. Определение длины участка пересечения растянутого раскоса с поясом.

2. Определение расстояния между краями раскосов.

2с = 25мм > 2мм, с = 12,5мм

3. Определение соотношения с к b2.

4. Определение величины

5. Определение несущей способности полки на растяжение в случае

6. Определение внешней растягивающей силы перпендикулярной оси пояса.

Проверка несущей способности пройдена, сечение НП остается прежним 140*140*7 и раскоса 1 100*100*5.

 

 

ПРОВЕРКА МЕСТНОЙ УСТОЙЧИВОСТИ БОКОВЫХ ГРАНЕЙ ПОЯСА ПОД СЖАТЫМ РАСКОСОМ

Исчерпание несущей способности узла возможно при выпучивании боковых стенок пояса, при достаточно больших отношениях d/D, когда продавливание затруднено.

1. Определение средних сжимающих напряжений

2. Определение критических сжимающих напряжений

 

 

3. Местная устойчивость боковых стенок пояса обеспечена, если выполняется условие

 

Вывод: местная устойчивость боковых стенок пояса выполнена (сечение остается прежним 140*140*7 мм).

 

ПРОВЕРКА МЕСТНОЙ УСТОЙЧИВОСТИ БОКОВЫХ ГРАНЕЙ (ЩЕК) СТЕРЖНЕЙ РЕШЕТКИ ФЕРМЫ

Потеря местной устойчивости и образование пластических деформаций может произойти в стенке раскоса или стойки в местах их примыкания к верхнему поясу.

 







Date: 2015-07-17; view: 649; Нарушение авторских прав



mydocx.ru - 2015-2026 year. (0.177 sec.) Все материалы представленные на сайте исключительно с целью ознакомления читателями и не преследуют коммерческих целей или нарушение авторских прав - Пожаловаться на публикацию