Главная Случайная страница


Полезное:

Как сделать разговор полезным и приятным Как сделать объемную звезду своими руками Как сделать то, что делать не хочется? Как сделать погремушку Как сделать так чтобы женщины сами знакомились с вами Как сделать идею коммерческой Как сделать хорошую растяжку ног? Как сделать наш разум здоровым? Как сделать, чтобы люди обманывали меньше Вопрос 4. Как сделать так, чтобы вас уважали и ценили? Как сделать лучше себе и другим людям Как сделать свидание интересным?


Категории:

АрхитектураАстрономияБиологияГеографияГеологияИнформатикаИскусствоИсторияКулинарияКультураМаркетингМатематикаМедицинаМенеджментОхрана трудаПравоПроизводствоПсихологияРелигияСоциологияСпортТехникаФизикаФилософияХимияЭкологияЭкономикаЭлектроника






Передвижка и подъем зданий





Передвижка зданий, представляющих историческую архитектурную ценность, осуществляется при необходи­мости расширения проезжей части дорог и улучшении городской планировки. В нашей стране, в частности в Москве, накоплен опыт осуществления передвижки зда­ний массой до 20 тыс. т.

Передвижка зданий — сложный и трудоемкий про­цесс, требующий высокого инженерного искусства, осу­ществляется по следующей схеме:

отрываются фундаменты под несущие стены здания}

под стены подводят систему металлических балок и с помощью домкратов передают на них нагрузку от массы здания;

по шпальной клетке и металлическим балкам перемещают здание с помощью гидравлических домкратов на требуемое расстоние.

Скорость перемещения составляет 10...20 м/ч. При необходимости здание может быть не только передвинуто, но и развернуто на требуемый угол.

Подъем зданий выполняют в случае изменения вертикальной планировки городской застройки по аналогии с их передвижкой. После отрыва котлована и оголения фундаментов под стены подводят систему несущих балок, которые заменяют собой фундаменты во время подъёма здания. Подъем производят гидравлическими домкратами на требуемую высоту и затем осуществляют наращивание фундаментов.

ГЛАВА 13

ОБЪЕМНО-ПЛАНИРОВОЧНЫЕ И КОНСТРУКТИВНЫЕ РЕШЕНИЯ ПЕРЕУСТРАИВАЕМЫХ ЗДАНИЙ И СООРУЖЕНИЙ

Перепланировка и конструктивные решения по переустройству жилых зданий

Планировка большинства жилых зданий старой за­стройки характерна прежде всего многокомнатностью, отсутствием санитарно-технических помещений (ванных комнат), недостаточностью освещенности помещений и плохой инсоляцией, наличием проходных жилых комнат и кухонь и другими недостатками.

Перед проектировщиками реконструкции жилых зданий ставится задача по устранению этих недостатков. В качестве примера реконструкции жилого дома старой застройки можно привести данные по осуществлению комплексного капитального ремонта с перепланировкой под МЖК (молодежный жилищный кооператив) здания пo ул. Сумской, 68, в г. Харькове, выполненного по проек­ту Харьковского филиала института Укржилремпроект.

Здание дореволюционной постройки неправильной формы в плане (рис. 13.1), расположенное на одной из Центральных улиц города, имело на всех пяти этажах квартиры коммунального типа с 14 жилыми комнатами для отдельных семей, общий коридор, кухню и туалет. Ванные комнаты отсутствовали.

Полная перепланировка (рис. 13.2) позволила разместить на каждом этаже пять однокомнатных, три комнатных и одну трехкомнатную изолированную квартиру со всеми удобствами. Учитывая принадлежности дома молодежному кооперативу, площади, наименее отвечающие требованиям жилых помещений, отведены под общие помещения.

 

Рис. 13.1, План типового этажа реконструируемого жи­лого дома (г. Харьков)

Для улучшения освещенности и инсоляции жилых помещений прорублены в наружных кирпичных стенах дополнительные оконные проемы. Над оконными прое­мами установлены железобетонные перемычки, ряд про­емов усилен металлическими обоймами. Полностью за­менены на железобетонные деревянные перекрытия и лестничные марши (рис. 13.3). Установлены сборные же­лезобетонные санитарно-технические кабины.

В последнее время остро стоит вопрос о проведении ремонтно-реконструктивных работ (наступают норматив­ные сроки капитального ремонта) в отношении жилых домов типовых серий первого периода крупнопанельного домостроения, которых в конце 50-х годов в стране по­строено более 500 млн. м2 общей площади.

Рис 13 2. План перепланировки типового этажа реконструируемого дома (г. Харьков)

Эти дома практически всех серий имеют существенные архитек­турно-планировочные конструктивные и инженерно-тех­нические недостатки при малой этажности (5 этажей).

Проведение модернизации жилых домов первых мас­совых серий позволит внести существенный вклад в ре­шение жилищной проблемы, с одной стороны, за счет увеличения жилой площади путем надстройки этажей, а с другой — за счет выравнивания условий проживания в жилых домах первых серий и последних (с повышен­ной степенью благоустройства).

Улучшение планировки жилых домов серии 1-464 (рис. 13.4) может быть достигнуто путем увеличения кухонь, передних и жилых комнат за счет пристройки эркеров-ризалитов, ликвидации «заемов» (открытых переходов из передней в кухню), устройства квартир в двух уровнях, объединением верхнего существующего и надстраиваемого этажей.

Рис. 13.3 План раскладки железобетонных плит настила перекры­тии типового этажа жилого дома (г. Харьков)


 

Эркеры вносят существенное разнообразие в архи­тектурный облик фасада здания. Они могут быть выпол­нены из любого конструкционного материала: кирпича, сборного и монолитного железобетона.

Б проекте, разработанном ЦНИИЭПжилища по пе­рестройке 5-этажного жилого дома серии 1-468-2 в г. Но­восибирске, построенного в начале 60-х годов, на осно­вании разработанных в институте рекомендаций по мо­дернизации жилых домов улучшена планировка квартир, усовершенствована система инженерного оборудования, повышен уровень теплоизоляции. В здании предусмот­рено надстроить один этаж, позволяющий разместить квартиры в двух уровнях, вместо балконов появятся лоджии (рис. 13.5). Для жителей первого этажа выделя­ются приквартирные участки, на которые запроектиро­ваны индивидуальные выходы.

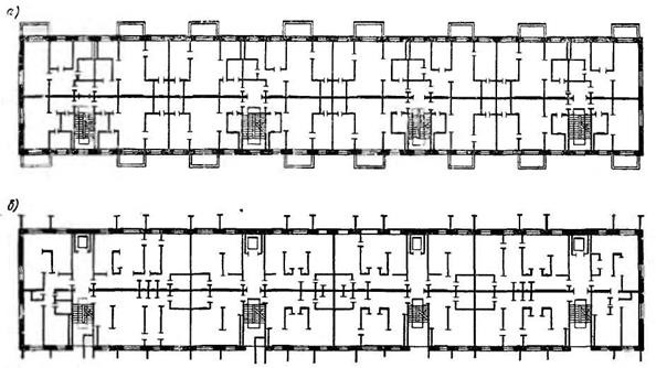
Проектом модернизации 5-этажного жилого дома серии 1-515 по ул. Власова в Москве перепланировкой исключаются проходные комнаты, разделены санузлы, увеличена площадь передних, кухонь (в однокомнатных квартирах), ванных. Здание оборудуется мусоропрово­дами и лифтами (рис. 13.6).

Модернизация планировки жилых зданий неразрыв­но связана с изменением их конструктивной схемы. Кир­пичные и панельные жилые здания, как правило, имеют жесткую конструктивную схему с несущими продольны­ми и поперечными стенами, замкнутыми лестничными клетками и перекрытиями, образующими горизонталь­ные диски, жесткость которых зависит от их конструкции и примененных материалов. Опыт обследования кирпич­ных жилых зданий Ленинграда позволил установить пять типов наиболее распространенных конструктивных схем (табл. 13.1).

В целом, реконструкция зданий с различной конструк­тивной схемой требует индивидуального подхода, что прежде всего связано с выбором несущих вертикальных элементов (стен) для опирания перекрытий при их час­тичной или полной замене. Перекрытие пролетом более 9 м связано со значительным неоправданным ростом высоты сечения изгибаемых элементов, утяжелением кон­струкций и увеличением сосредоточенных нагрузок на стены при использовании прогонной схемы перекрытий. В последнем случае главные балки и прогоны с высотой, превышающей общую толщину перекрытий, располага­ют в плоскостях перегородок, встроенных шкафов, санитарно-технических помещений и др. Здесь же можно помещать и дополнительные кирпичные столбы (колон­ны) для уменьшения пролетов главных балок.

Полная реконструкция здания при недостаточной не­сущей способности внутренних продольных и поперечных стен вызывает необходимость оставлять старые несущие стены только по периметру здания, а внутри возводить железобетонный каркас. В этом случае создается здание жесткой конструктивной схемы с неполным внутренним каркасом, который может быть выполнен с продольным опиранием прогонов на консоли колонн и торцевые стены или с поперечным — на консоли колонн и продольные несущие стены.

Внутренний каркас создают, как правило, из сборных железобетонных элементов (колонн, прогонов и фунда­ментов) с железобетонным настилом.


 

Рис. 13.4, Перепланировка крупнопанельного жилого дома серии 1-464. План типового этажа:

а —до модернизации; б —после модернизаци»


 


 

Рис. 13.4. Продолжение


Рис. 13.5. Модернизация крупнопанельного жилого дома серии 1-468-2 (г. Новосибирск). План типового этажа: а —до модернизации; б —после модернизации

 

При этом необходимо стремиться к использованию основных типовых конструкций. Для тех случаев, когда пролеты и высоты здания отличны от типовых, разработаны специальные серии, например, колонны марки КЛ-280-450 сечением 300X400 мм для высот этажей от 2,8 до 4,5 м (через 0.1 м), прогоны марки ПР-300... ПР-500 длиной от 3 до 5 м (через 0,2 м) и марки ПР-300...ПР-720 соответствен­но длиной от 3 до 7,2 м (через 0,2 м) и др.


Таблица 13.1. Наиболее распространенные конструктивные схемы кирпичных жилых зданий


Рис. 13.6. Проект модернизации жилого дома серии I-515 (Москва). План типового этажа:

а —до модернизации; б — после модернизации

 

 

Для замены внутренних несущих стен разработаны несущие сборные железобетонные перегородки. В реконструируемых зда­ниях находят применение и сборные железобетонные санитарно-технические кабины (ванных комнат и туалет­ных).







Date: 2015-06-07; view: 1506; Нарушение авторских прав



mydocx.ru - 2015-2026 year. (1.133 sec.) Все материалы представленные на сайте исключительно с целью ознакомления читателями и не преследуют коммерческих целей или нарушение авторских прав - Пожаловаться на публикацию