Главная Случайная страница


Полезное:

Как сделать разговор полезным и приятным Как сделать объемную звезду своими руками Как сделать то, что делать не хочется? Как сделать погремушку Как сделать так чтобы женщины сами знакомились с вами Как сделать идею коммерческой Как сделать хорошую растяжку ног? Как сделать наш разум здоровым? Как сделать, чтобы люди обманывали меньше Вопрос 4. Как сделать так, чтобы вас уважали и ценили? Как сделать лучше себе и другим людям Как сделать свидание интересным?


Категории:

АрхитектураАстрономияБиологияГеографияГеологияИнформатикаИскусствоИсторияКулинарияКультураМаркетингМатематикаМедицинаМенеджментОхрана трудаПравоПроизводствоПсихологияРелигияСоциологияСпортТехникаФизикаФилософияХимияЭкологияЭкономикаЭлектроника






Сооружения для баскского мяча





Существует более десяти разновидностей спортивной игры, именуемой «бас­кский мяч» (пелота баска), которая зародилась в испанской провинции Баскония много веков назад. Эти разновидности различаются по видам игрового инвентаря и размерам сооружений. Насчитываются не менее пяти типоразмеров преимуще­ственно открытых сооружений и один тип крытого сооружения.

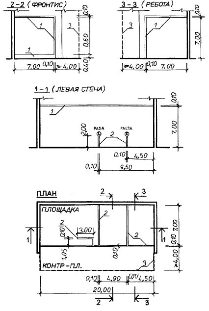
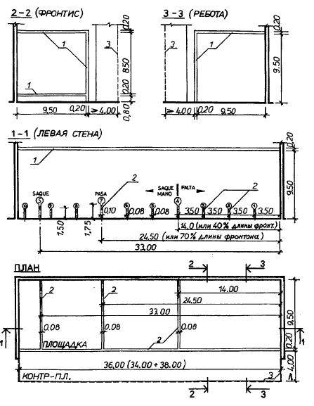
Большинство видов баскского мяча практикуется на сооружениях, име­нуемых фронтонами. Фронтон - относительно узкая и длинная площадка, ограниченная стенами с торцов и по одной из продольных сторон. Торцевая стена, лицом к которой располагаются игроки, называется фронтис. Про­дольная стена слева от игроков именуется левой стеной. Торцевая стена за спиной игроков называется ребота. Справа от игроков стены нет, а границей площадки служит разметочная линия, за пределами которой в уровне пло­щадки размещается свободная зона — контрплощадка — шириной не менее 4 м. Фронтис и ребота могут выступать за границу площадки до 1,1м.

Чтобы мяч не вылетел за пределы фронтона, по наружному периметру контрплощадки устанавливается сетчатое ограждение на всю высоту фрон­тона. Часто сетчатое ограждение устраивают также, частично или полнос­тью, поверх всего фронтона. Для защиты фронтона от неблагоприятной погоды поверх всего сооружения может быть устроено гидротеплоизолиро-ванное покрытие.

Зрительские места размещаются вдоль сетчатого ограждения контрпло­щадки.

Для некоторых видов баскского мяча строятся залы, называемые трин-кетами. Тринкет можно определить как фронтон с четырьмя стенами и без контрплощадки. Четвертая (правая) стена служит одной из продольных гра­ниц площадки и, поскольку зрители располагаются за ней, должна быть прозрачной (обычно применяется противоударное стекло).

Получивший право на подачу игрок ударом какого-либо "орудия" или кулаком, в разновидности "сеста пунта" - броском, посылает мяч во фронтис. Отраженный от фронтиса мяч должен попасть в специально обозначенную зону площадки (между фронтисом и линией ошибки). После отскока он дол­жен быть принят (отбит во фронтис) игроком противной стороны. Обмен такими ударами по мячу длится до ошибки одной из сторон, после чего партия возобновляется до следующей ошибки. Первая подача дается по жре­бию; все последующие получает сторона, не допустившая ошибки в непре­рывном отрезке игры. Играют два противника или две пары.

Разновидности баскского мяча чаще всего называют по орудию игры, а когда им служит теннисная ракетка, наименование обязательно содержит слово "фронтеннис".

В длинном фронтоне (рис. 12.8.1) играют три разновидности: сеста пунта, пала ларга и ремонте. По первым двум проводятся соревнования крупней­шего масштаба.


424 физкультурно-спортивные сооружения

Сеста пунта (точная корзина). Названа по "орудию" игры, представляю­щему собой ловушку в виде изогнутого по длине желоба, плотно сплетен­ного из ивовых прутьев или пластмассовых нитей на каркасе из каштановой древесины; длина желоба по линии изгиба 90 - 110см.

Пала ларга (бита длинная). Названа по "орудию"; это плоская бита из цельного куска древесины; ее длина 52 — 53см, ширина в наиболее широкой части 10,5см и толщина 2,5 — 3 см.

Ремонте. Названа по "орудию" игры - плетеной, слегка изогнутой по длине бите.

В коротком фронтоне для кожаного мяча (рис. 12.8.2) культивируются еще три разновидности. По всем трем проводятся соревнования крупнейше­го масштаба.

Мано (рука). Здесь ударяют по мячу кулаком или запястьем, при этом часто применяются защитные бинты;

Пала корта (бита короткая). Названа по "орудию" игры; это деревянная плоская бита длиной не более 51см;

Полета (бита малая) с кожаным мячом. Названа также по игровому ин­вентарю; бита длиной не более 50 см.

В коротком фронтоне для резинового мяча (рис. 12.8.3) играются две раз­новидности, по обеим проводятся соревнования крупнейшего масштаба.

Фронтеннис. Здесь используются обычные ракетки и мячи для тенниса;

Полета — с резиновым мячом.

В коротком фронтоне для мексиканского фронтенниса культивируется только фронтеннис мексиканского происхождения (рис. 12.8.4).

Тринкет (рис. 12.8.5) используется для мано, палеты с кожаным мячом, палеты с резиновым мячом, а также для шаре. Последнее название повторя-




 


 



 


ет наименование "орудия" игры, представляющего собой ракетку с ободом из ивового прута и с короткой рукояткой. По шаре проводятся соревнова­ния крупнейшего масштаба.


Кубинский фронтон (двадцатиметровый) используется только для ку­бинского фронтенниса (рис. 12.8.6).

К фронтонам и тринкетам предъявляются определенные строительные и функциональные требования.

Стены должны быть ровными, гладкими, выполняться из твердого и прочного материала, обеспечивающего хороший отскок мяча. Для непроз­рачных стен чаще всего используется монолитный бетон; Международная федерация баскского мяча рекомендует облицовывать фронтис пиленым камнем.

Площадка (пол сооружения) обычно выполняется из литого асфальта или бетона.

Отличительной особенностью тринкета, кроме прозрачной правой сте­ны и отсутствия контрплощадки, является также устройство внутри игро­вой зоны крытой галереи для участников соревнований или тренировок (см. рис. 12.8.5).

На непрозрачных стенах размечаются зоны, за пределы которых мяч не должен выходить. Границы этих зон лучше всего обозначать


426 ФИЗКУЛЬТУРНО-СПОРТИВНЫЕ СООРУЖЕНИЯ


 




 


СПЕЦИАЛИЗИРОВАННЫЕ ФИЗКУЛЬТУРНО-СПОРТИВНЫЕ СООРУЖЕНИЯ_____________________________________________________________ 427




 


полосами из листового металла, однако допускается применение проч­ной окраски.

На площадках и левых стенах краской наносятся разметочные линии, обозначающие зоны подачи и приема мяча, а также линии, облегчающие ориентировку спортсменов в игровом пространстве. Вертикальные линии на левых стенах маркируются цифрами, надписями и буквами. При этом основ­ные линии, продолжающиеся на площадке, выделяются размерами и цве­том. Надписи имеют следующее значение: саке — линия подачи; паса — ли­ния приема; фальта — линия ошибки; саке мано — подача рукой; ларга — длинная зона; корта — короткая зона.

В тринкетах вместо вертикальных линий левой стены на навесе галереи короткими линиями и надписями обозначают зоны, соответствующие раз­метке на площадке.

Внутренние поверхности стен и площадки должны иметь темную окрас­ку, обеспечивающую наилучшую видимость мяча. Линии разметки наносят­ся контрастной по отношению к фону краской. Обычно линии на площадке и левой стене — белые (основные — с красной серединой), металлические разметочные полосы - красные (рис. 12.8.7).

Рекомендуемый уровень искусственной освещенности — не менее 600 люксов.

В заключение следует отметить, что в данной главе авторы отразили, в


428 ФИЗКУЛЬТУРНО-СПОРТИВНЫЕ СООРУЖЕНИЯ

основном, типологию наиболее распространенных (кроме сооружений для баскского мяча) физкультурно-спортивных сооружений.

В последние годы бурно модифицируется и вновь рождается множество новых видов спорта, для которых, естественно, существуют свои правила и требования. В основном, пока, идет приспособление существующих типов и видов сооружений, но для ряда видов спорта уже сооружаются соответству­ющие специализированные спортсооружения (например, для скалолазания, см. цв. фото).



 


430 физкультурно-спортивные сооружения


 





 


ФИЗКУЛЬТУРНО-СПОРТИВНЫЕ СООРУЖЕНИЯ, ИСПОЛЬЗУЕМЫЕ ДЛЯ ЗАНЯТИЙ ИНВАЛИДОВ_________________________ 431






 



432 физкультурно-спортивные сооружения


 





 


ФИЗКУЛЬТУРНО-СПОРТИВНЫЕ СООРУЖЕНИЯ, ИСПОЛЬЗУЕМЫЕ ДЛЯ ЗАНЯТИЙ ИНВАЛИДОВ_________________________ 433

До последнего времени занятиям физической культурой и спортом лю­дей с физическими недостатками не уделялось должного внимания.

Гуманизация, выдвигая на первый план включение инвалидов в много­образную жизнь общества, требует создания для всех людей, независимо от их физического состояния, возможностей для реализации жизненных по­требностей. Значительная часть трудностей на этом пути заключается в орга­низации пространственной среды.

Необходимость учета потребностей инвалидов в архитектурном проек­тировании впервые была закреплена в нормативном документе ВСН 62-91 «Проектирование среды жизнедеятельности инвалидов и маломобильных групп населения».

Занятия физкультурой и спортом развивают двигательную активность -существенный фактор реабилитации людей с физическими недостатками. Особенно важна достигаемая при этом психологическая реабилитация, по­могающая поверить в собственные силы, ощутить себя полноценным чле­ном общества.

Каждое здание или сооружение, посещаемое и здоровыми, и инвалида­ми, должно быть спроектировано так, чтобы инвалид не ощущал своего физического недостатка, мог свободно передвигаться и реализовать стрем­ление к двигательной активности. С учетом этого были разработаны архитек­турно-планировочные, конструктивные и технические требования к здани­ям и сооружениям для инвалидов. В основу их проектирования было положе­но изучение потребностей инвалидов, начинающееся с выявления катего­рий людей с физическими недостатками по признаку особенностей физи­ческого поражения. Три категории инвалидов требуют наиболее существен­ных архитектурно-технических мероприятий:

- люди с поражениями опорно-двигательного аппарата (ПОДА);

- с дефектами зрения, полностью или частично слепые (ДЗ);

- с дефектами слуха (ДС).

Остальные инвалиды могут пользоваться сооружениями, где все предус­мотрено для трех основных категорий, а также большинством сооружений для здоровых людей.

Опыт проектирования и строительства дает примеры физкультурно-спортивных сооружений, предназначенных исключительно для инвалидов, но и они, как правило, носят лечебно-реабилитационный характер. Главен­ствующая же тенденция - создание условий, при которых инвалиды могли бы использовать любое спортивное или досуговое сооружение наравне со здоровыми.

Инвалид должен ощущать себя полноценным и равноправным членом общества. Не только свобода передвижения и выбора видов двигательной активности, но и возможность не ограничиваться обществом инвалидов су­щественны в психологической реабилитации. Вместе с тем отношение здо­ровых людей к инвалидам, как ко всем остальным людям, может быть дос­тигнуто только в процессе непосредственного и постоянного контакта с ними.


Тенденция ценности человеческого общения настолько сильна, что со­оружения, предназначавшиеся только для инвалидов, в процессе эксплуа­тации начинают использоваться и здоровыми людьми, а не рассчитанные на людей с физическими недостатками реконструируются и дополняются специальным оборудованием, необходимым инвалидам.







Date: 2015-06-07; view: 696; Нарушение авторских прав



mydocx.ru - 2015-2026 year. (0.826 sec.) Все материалы представленные на сайте исключительно с целью ознакомления читателями и не преследуют коммерческих целей или нарушение авторских прав - Пожаловаться на публикацию