Главная Случайная страница


Полезное:

Как сделать разговор полезным и приятным Как сделать объемную звезду своими руками Как сделать то, что делать не хочется? Как сделать погремушку Как сделать так чтобы женщины сами знакомились с вами Как сделать идею коммерческой Как сделать хорошую растяжку ног? Как сделать наш разум здоровым? Как сделать, чтобы люди обманывали меньше Вопрос 4. Как сделать так, чтобы вас уважали и ценили? Как сделать лучше себе и другим людям Как сделать свидание интересным?


Категории:

АрхитектураАстрономияБиологияГеографияГеологияИнформатикаИскусствоИсторияКулинарияКультураМаркетингМатематикаМедицинаМенеджментОхрана трудаПравоПроизводствоПсихологияРелигияСоциологияСпортТехникаФизикаФилософияХимияЭкологияЭкономикаЭлектроника






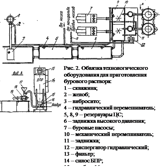
Выбор оборудования для приготовления растворов





 

В современных условиях бурения для приготовления бурового раствора используется следующее оборудование: блок приготовления растворов БПР-70 с выносными гидроэжекторными смесителями и загрузочными воронками, емкости циркуляционной системы с гидравлическими и механическими перемешивателями, диспергатор, насосы.

В таблице 22 приведен состав оборудования для приготовления и очистки бурового раствора, применяемый в УБР.

 


Таблица 22

Оборудование для приготовления и очистки бурового раствора

Название Типоразмер или шифр Количество, шт Показатель
Блок очистки
Вибросито СВ-1л   Общая площадь раб. поверхности 2,4-4,8 м3
Илоотделитель гидроциклонный ИГ-45М   Пропускная способность – 45 л/с Размер удаляемых на 95% частиц плотностью 2,6 г/см3 – 0,08 мм Допустимые потери раствора – 2%
Центрифуга СГШ-500   Нет данных
Дегазатор ДВС-2   Пропускная способность – 55 л/с Допустимое остаточное газосодержание в растворе – 2%
Насос шламовый 6Ш8   Нет данных
Насос водяной 1,5К6   Нет данных
Емкость   10 м3
Емкостный блок
Емкость приемная   40 м3
Перемешиватели механические   Частота вращения лопастного вала – 45-90 об/мин
Емкость долива   Емкость – 15 м3
Глиномешалка МГ2-4Х   Нет данных
Гидромешалка   Емкость – 30 м3
Емкость водяная   Емкость – 8 м3
Емкость дозировочная   Емкость – 0,2 м3
Емкость доливная   Емкость – 50 м3
Емкость для раствора   Емкость – 50 м3
В растворном узле кран поворотный 8КП-2   Нет данных








Date: 2015-07-27; view: 660; Нарушение авторских прав



mydocx.ru - 2015-2026 year. (4.944 sec.) Все материалы представленные на сайте исключительно с целью ознакомления читателями и не преследуют коммерческих целей или нарушение авторских прав - Пожаловаться на публикацию