Главная Случайная страница


Полезное:

Как сделать разговор полезным и приятным Как сделать объемную звезду своими руками Как сделать то, что делать не хочется? Как сделать погремушку Как сделать так чтобы женщины сами знакомились с вами Как сделать идею коммерческой Как сделать хорошую растяжку ног? Как сделать наш разум здоровым? Как сделать, чтобы люди обманывали меньше Вопрос 4. Как сделать так, чтобы вас уважали и ценили? Как сделать лучше себе и другим людям Как сделать свидание интересным?


Категории:

АрхитектураАстрономияБиологияГеографияГеологияИнформатикаИскусствоИсторияКулинарияКультураМаркетингМатематикаМедицинаМенеджментОхрана трудаПравоПроизводствоПсихологияРелигияСоциологияСпортТехникаФизикаФилософияХимияЭкологияЭкономикаЭлектроника






Выбор конструктивных элементов и компоновка здания





ВВЕДЕНИЕ

Настоящие методические указания предназначены для компоновки од­ноэтажного пром.здания в составе второго курсового проекта по железо­бетонным конструкциям. Приведены данные для выбора основных конструк­тивных элементов.

Компоновка одноэтажного пром.здания в сборном железобетоне и вы­бор основных конструктивных элементов выполнены с учетом имеющихся объемно-планировочных решений и типовых конструкций, приведенных в ГОСТ 23837-79 [4], каталоге типовых конструкций и изделий (сборник 3.01.П-1.89, в трех томах) [6], альбомах чертежей И.А.Шерешевского [20], Р.Н.Трепененкова [19], а также в альбомах рабочих чертежей типовых же­лезобетонных конструкций: колонн - серия 1.424.1-5 [8], двускатных ба­лок покрытия - серия 1.462.1-16 [13], сегментных стропильных ферм - се­рия ПК-01-129/78[ ], подкрановых балок - серия 1.426.1-4 [10], плит покрытия - ГОСТ 22701-77 [3], серии 1.465.1-3/80 [15] и 1.465.1-10/82 [16], легкобетон­ных стеновых панелей 1.432-9 [11] и 1.432-10 [12].

Настоящее пособие может быть использовано также дипломниками спе­циальности 2903 при расчете железобетонных конструкций одноэтажных промышленных зданий.

Выбор конструктивных элементов и компоновка здания

Выбор основных конструктивных элементов производим в соответствии с [ ] и [ ]. Поперечный разрез и фрагмент плана приведены на рис.1 (ригели и подкрановые балки на рисунке показаны условно). Привязка ко­лонн крайних рядов в соответствии с [ ] и [ ], выбрана по прил.. Дли­на температурного блока и наличие деформационных швов также должны со­ответствовать [ ] и [ ]. (Согласно этой серии, наибольшая длина темпе­ратурного блока составляет 156 м).

Выбираем основные конструктивные элементы:

1. Покрытие здания - решается по беспрогонной схеме из крупнораз­мерных плит, укладываемых по ригелям поперечных рам - фермам или балкам (согласно заданию).

а) Фермы стропильные по ПК-01-129/78 [ ], пролетом 18 м с шириной поясов 250 мм, класс бетона В35, п/н арматура К-7, типоразмер - 2 (для IV снегового района). Вес фермы - 6,0 т.

б) Ребристые плиты покрытия по ГОСТ 22701-77, 3*6 м из тяжелого бетона класса В30, п/н арматура Ат-IV. Вес плиты - 2,65 т (26,5 кН), h = 300 мм.

в) Утеплитель - керамзитобетон, d = 160 мм, r = 600 кг/м3. Состав кровли - в таблице сбора нагрузок от покрытия (табл.2).

2. Подкрановые балки приняты сборными разрезными по серии 1.426.1-4 [10]. Длина - 5950 мм, высота - 800 мм, сечение - тавр, толщина ребер - 200 мм, ширина полки - 600 мм, масса балки -3,5 кН.Высота подкранового рельса с упругой прокладкой -150 мм, масса-100 кг.

3. Стены здания - навесные легкобетонные однослойные по серии 1.432-9/81. Марка панели - ПС 600.12.30-П-6 (длина 6 м, высота 1,2 м, ширина - 300 мм). Плотность легкого бетона - r = 1600 кг/м3. Нижняя панель - цокольная, опирается непосредственно на фундаментную балку (рис.2).

Вместо обычных ребристых плит и кровли можно принять комплексные плиты по серии 1.465.1-10/82 [16].

4. Фундаментные балки - по серии 1.415.1-2 [7], марки 2БФ, длина 5250 мм, масса - 1,0 т, ширина полки - 300 мм, высота балки - 300 мм.

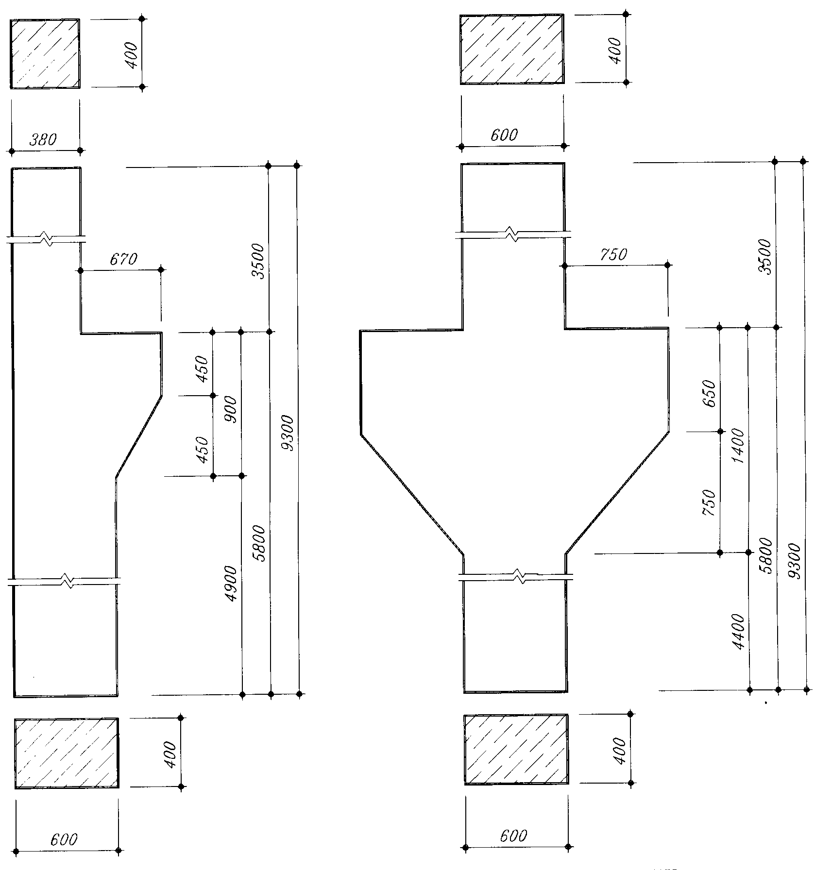
5. Колонны - сборные железобетонные ступенчатые прямоугольного сечения по серии 1.424.1-5, выпуск 0 [8] (Рис.3).

Крайние: № типоразмера - 2к84, масса колонны - 5,2 т, марка бетона - М200 (класс В15)

Средние: № типоразмера - 6к84, масса колонны - 7,0 т, марка бетона - М200 (класс В15)

6. Связи - согласно серии 1.424.1-5 [8].

 

 

Рис.1. Поперечный разрез и фрагмент плана

 

 

Рис.2. Цокольная панель

 

Рис.3. Общий вид и размеры колонн

 

Балки подкрановые железобетонные пролетами 6 и 12 м под мостовые опорные краны общего назначения грузоподъемностью до 32 т Строительные конструкции и изделия Серия 1.426.1-4 Выпуск 1, 2, 3 УДК 691.022-413

 







Date: 2015-07-23; view: 808; Нарушение авторских прав



mydocx.ru - 2015-2026 year. (1.621 sec.) Все материалы представленные на сайте исключительно с целью ознакомления читателями и не преследуют коммерческих целей или нарушение авторских прав - Пожаловаться на публикацию