Главная Случайная страница


Полезное:

Как сделать разговор полезным и приятным Как сделать объемную звезду своими руками Как сделать то, что делать не хочется? Как сделать погремушку Как сделать так чтобы женщины сами знакомились с вами Как сделать идею коммерческой Как сделать хорошую растяжку ног? Как сделать наш разум здоровым? Как сделать, чтобы люди обманывали меньше Вопрос 4. Как сделать так, чтобы вас уважали и ценили? Как сделать лучше себе и другим людям Как сделать свидание интересным?


Категории:

АрхитектураАстрономияБиологияГеографияГеологияИнформатикаИскусствоИсторияКулинарияКультураМаркетингМатематикаМедицинаМенеджментОхрана трудаПравоПроизводствоПсихологияРелигияСоциологияСпортТехникаФизикаФилософияХимияЭкологияЭкономикаЭлектроника






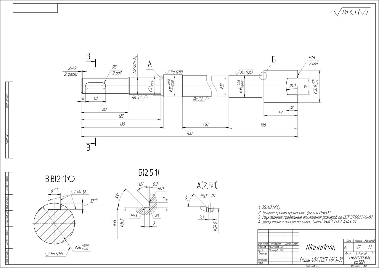
Анализ технологии восстановления детали на базовом предприятии (приложить чертеж и технологию), применяемость оборудования и инструмента





Ранее было оговорено, что в ходе диагностики было выявлено два дефектных участка. Маршруты ремонта для них будут разные.

Ремонт посадочной поверхности под подшипник:

— шлифование до удаления следов износа до шероховатости Ra 0,8;

— нанесение ремонтного слоя методом электролитического осаждения хрома;

— шлифование данной поверхности до размера и шероховатости, указанных на чертеже.

Ремонт резьбы:

— протачивание ремонтируемого участка до удаления резьбы;

— нанесение ремонтного слоя методом вибродуговой наплавки;

— получистовое точение ремонтируемого участка до размера, указанного на чертеже;

— нарезание резьбы, согласно чертежу;

— закалка ремонтируемого участка токами высокой частоты.

 

При ремонте применялось следующее оборудование: круглошлифовальный станок 3М131, токарно-винторезный станок 16К20, ванна для хромирования, индукционный нагреватель, сварочный агрегат. Применялись режущие инструменты – шлифовальный круг, резцы. Мерительный инструмент – микрометр, резьбомер, штангенциркуль.

Изм.
Лист
№ докум.
Подпись
Дата
Лист
 
ПП151031.МДК.01.02.1018.11.11-15ПЗ 01.05.05.67.00.00. - ПЗ    
3.5. Изучение и составление подробных схем сборки и испытаний ремонтируемого оборудования.

После осуществления ремонта деталь устанавливается на место, сборка оборудования осуществляется в обратном порядке.

Радиальные подшипники прогреваются в масле и напрессовываются на места посадки, упорный подшипник устанавливается на холодную. После сборки он регулируется с помощью гайки на обратном конце шпинделя, необходимый натяг определяется при проворачивании шпинделя вручную.

После сборки оборудования все картеры и ёмкости обдуваются сжатым воздухом, заполняются необходимыми маслами, смазываются смазочные точки. После первого пуска масло долить, так как частично оно осталось в маслопроводах.

Начинают работу оборудования с проворачивания узлов вручную. Если всё в норме, станок испытывают на холостом ходу и под нагрузкой, начиная с низких оборотов и заканчивая длительным испытанием под максимально допустимой нагрузкой. При этом надо следить за каждым узлом оборудования, подшипники не должны перегреваться, не должно быть посторонних шумов, стуков, вибраций.







Date: 2015-07-23; view: 1071; Нарушение авторских прав



mydocx.ru - 2015-2026 year. (1.211 sec.) Все материалы представленные на сайте исключительно с целью ознакомления читателями и не преследуют коммерческих целей или нарушение авторских прав - Пожаловаться на публикацию