Главная Случайная страница


Полезное:

Как сделать разговор полезным и приятным Как сделать объемную звезду своими руками Как сделать то, что делать не хочется? Как сделать погремушку Как сделать так чтобы женщины сами знакомились с вами Как сделать идею коммерческой Как сделать хорошую растяжку ног? Как сделать наш разум здоровым? Как сделать, чтобы люди обманывали меньше Вопрос 4. Как сделать так, чтобы вас уважали и ценили? Как сделать лучше себе и другим людям Как сделать свидание интересным?


Категории:

АрхитектураАстрономияБиологияГеографияГеологияИнформатикаИскусствоИсторияКулинарияКультураМаркетингМатематикаМедицинаМенеджментОхрана трудаПравоПроизводствоПсихологияРелигияСоциологияСпортТехникаФизикаФилософияХимияЭкологияЭкономикаЭлектроника






Стальной каркас





 

1. Основные типы колонн, опираемые на фундамент.

2. Стальные подкрановые балки.

3. Главные элементы покрытия из стали.

4. Детали и узлы стального каркаса

- соединение подкрановой балки с консолями и между собой

- крепление подкранового рельса с подкрановой балкой.

- соединение главных элементов покрытия с колоннами

 

________________________________________________________________________________________________________________________________________________________________________________________________________________

 

Рис. 3.30. Элементы стального каркаса

1 – ____________________________________________________________________________

2 – ____________________________________________________________________________

3 – ____________________________________________________________________________

4 – ____________________________________________________________________________

5 – ____________________________________________________________________________

6 – ____________________________________________________________________________

7 – ____________________________________________________________________________

8 – ____________________________________________________________________________

9 – ____________________________________________________________________________

 

__________________________________________________________________________________________________________________________________________________________________________________________________________________________________________________________________________________________________________________________________________________________________________________________________________________________________

________________________________________________________________________________________________________________________________________________________________________________________________________________

 

Стальные каркасы допускаются в следующих случаях:

- ___________________________________________________________________

- ___________________________________________________________________

- ___________________________________________________________________

 

Стальные колонны _____________________________________________________

 

______________________________________________________________________________________________________________________________________________________________________________________________________________________________________________________________________________________________________________________________________________________________________________________________________________________________________________________________________________________________________________________________________________________________________________

Рис. 3.31. Стальные колонны для зданий с подвесными и мостовыми кранами

 

______________________________________________________________________________________________________________________________________________________________________________________________________________________________________________________________________________________

Рис. 3.32. Стальные колонны постоянного сечения

а – ____________________________________________________________________________

б – ____________________________________________________________________________

1 – ____________________________________________________________________________

2 – ____________________________________________________________________________

3 – ____________________________________________________________________________

4 – ____________________________________________________________________________

5 – ____________________________________________________________________________

6 – ____________________________________________________________________________

7 – ____________________________________________________________________________

8 – ____________________________________________________________________________

9 – ____________________________________________________________________________

10 – ___________________________________________________________________________

 

________________________________________________________________________________________________________________________________________________________________________________________________________________


 

Рис. 3.33. Стальные двухветвевые колонны

а – ____________________________________________________________________________

б – ____________________________________________________________________________

1 – ____________________________________________________________________________

2 – ____________________________________________________________________________

3 – ____________________________________________________________________________

4 – ____________________________________________________________________________

5 – ____________________________________________________________________________

6 – ____________________________________________________________________________

7 – ____________________________________________________________________________

8 – ____________________________________________________________________________

9 – ____________________________________________________________________________

10 – ___________________________________________________________________________

 

______________________________________________________________________________________________________________________________________________________________________________________________________________________________________________________________________________________

Рис. 3.34. Монолитные ж/б фундаменты с траверсами под стальные колонны

1 – ____________________________________________________________________________

2 – ____________________________________________________________________________

3 – ____________________________________________________________________________

4 – ____________________________________________________________________________

5 – ____________________________________________________________________________

6 – ____________________________________________________________________________

7 – ____________________________________________________________________________

 

______________________________________________________________________________________________________________________________________________________________________________________________________________________________________________________________________________________________________________________________________________________________________________________________________________________________________________________________________________________________________________________________________________________________________________________________________________________________________________________________________________________________________________________________________________________________________________________________________________________________________________________________________

 

Рис. 3.35. Башмаки стальных колонн

а – ____________________________________________________________________________

б – ____________________________________________________________________________

в – ____________________________________________________________________________


1 – ____________________________________________________________________________

2 – ____________________________________________________________________________

3 – ____________________________________________________________________________

4 – ____________________________________________________________________________

5 – ____________________________________________________________________________

6 – ____________________________________________________________________________

7 – ____________________________________________________________________________

8 – ____________________________________________________________________________

9 – ____________________________________________________________________________

10 – ___________________________________________________________________________

11 – ___________________________________________________________________________

 

______________________________________________________________________________________________________________________________________________________________________________________________________________________________________________________________________________________________________________________________________________________________________________________________________________________________________________________________________________________________________________________________________________________________________________

________________________________________________________________________________________________________________________________________________________________________________________________________________________________________________________________________________________________________________________________________________________________________________________________________________________________________________________________________________________________________________________________________________________________________________________________________________________________________________________________________________________________________________________________________________________________________________________________

Рис. 3.36. Детали крепления монолитных ж/б фундаментов со стальными колоннами

1 – ____________________________________________________________________________

2 – ____________________________________________________________________________

3 – ____________________________________________________________________________

4 – ____________________________________________________________________________

5 – ____________________________________________________________________________


6 – ____________________________________________________________________________

 

Подкрановые балки _____________________________________________________

____________________________________________________________________________________________________________________________________________________________________________________________________________________________________________________________________________________________________________________________________________________________________________________________________________________________________

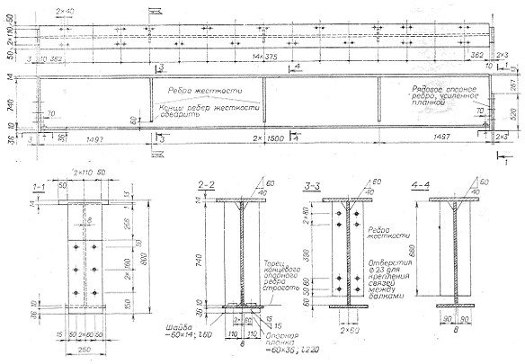
Рис. 3.37. Стальные разрезные подкрановые балки

Рис. 3.38. Подкрановые конструкции

а – ____________________________________________________________________________

б – ____________________________________________________________________________

в – ____________________________________________________________________________

1 – ____________________________________________________________________________

2 – ____________________________________________________________________________

3 – ____________________________________________________________________________

4 – ____________________________________________________________________________

5 – ____________________________________________________________________________

6 – ____________________________________________________________________________

7 – ____________________________________________________________________________

8 – ____________________________________________________________________________

 

____________________________________________________________________________________________________________________________________________________________________________________________________________________________________________________________________________________________________________________________________________________________

 

____________________________________________________________________________________________________________________________________________________________________________________________________________________________________________________________________________________________________________________________________________________________

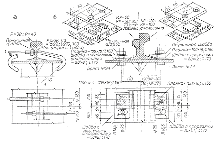
Рис. 3.39. Детали крепления крановых рельсов к стальным подкрановым балкам

а – ____________________________________________________________________________

б – ____________________________________________________________________________

 

____________________________________________________________________________________________________________________________________________________________________________________________________________________________________________________________________________________________________________________________________________________________

_____________________________________________________________________________________________________________________________________________________________________________________________________________________________________________________________________________________

Рис. 3.40. Крепление крановых путей, концевые упоры

а – ____________________________________________________________________________

б – ____________________________________________________________________________

1 – ____________________________________________________________________________

2 – ____________________________________________________________________________

3 – ____________________________________________________________________________

4 – ____________________________________________________________________________

5 – ____________________________________________________________________________

6 – ____________________________________________________________________________

7 – ____________________________________________________________________________

8 – ____________________________________________________________________________

9 – ____________________________________________________________________________

10 – ___________________________________________________________________________

11 – ___________________________________________________________________________

12 – ___________________________________________________________________________

13 – ___________________________________________________________________________

14 – ___________________________________________________________________________

__________________________________________________________________________________________________________________________________________________________________________________________________________________________________________________________________________________________________________________________________________________________________________________________________________________________________

 

Рис. 3.41. Схемы стальных ферм

а – ____________________________________________________________________________

б – ____________________________________________________________________________

в – ____________________________________________________________________________

1 – ____________________________________________________________________________

2 – ____________________________________________________________________________

3 – ____________________________________________________________________________

 

__________________________________________________________________________________________________________________________________________________________________________________________________________________________________________________________________________________________________________________________________________________________________________________________________________________________________

 

 

Рис. 3.42. Стык фермы с колонной

1 – ____________________________________________________________________________

2 – ____________________________________________________________________________

3 – ____________________________________________________________________________

4 – ____________________________________________________________________________

5 – ____________________________________________________________________________

6 – ____________________________________________________________________________

Рис. 3.43. Опирание стальной фермы на колонну

1 – ____________________________________________________________________________

2 – ____________________________________________________________________________

3 – ____________________________________________________________________________

 

Связи, ______________________________________________________________

____________________________________________________________________________________________________________________________________________

__________________________________________________________________________________________________________________________________________

________________________________________________________________________________________________________________________________________________________________________________________________________________

______________________________________________________________________________________________________________________________________________________________________________________________________________________________________________________________________________________

______________________________________________________________________________________________________________________________________________________________________________________________________________________________________________________________________________________

 

______________________________________________________________________________________________________________________________________________________________________________________________________________________________________________________________________________________

______________________________________________________________________________________________________________________________________________________________________________________________________________________________________________________________________________________

 







Date: 2015-06-11; view: 3486; Нарушение авторских прав



mydocx.ru - 2015-2026 year. (0.443 sec.) Все материалы представленные на сайте исключительно с целью ознакомления читателями и не преследуют коммерческих целей или нарушение авторских прав - Пожаловаться на публикацию