Главная Случайная страница


Полезное:

Как сделать разговор полезным и приятным Как сделать объемную звезду своими руками Как сделать то, что делать не хочется? Как сделать погремушку Как сделать так чтобы женщины сами знакомились с вами Как сделать идею коммерческой Как сделать хорошую растяжку ног? Как сделать наш разум здоровым? Как сделать, чтобы люди обманывали меньше Вопрос 4. Как сделать так, чтобы вас уважали и ценили? Как сделать лучше себе и другим людям Как сделать свидание интересным?


Категории:

АрхитектураАстрономияБиологияГеографияГеологияИнформатикаИскусствоИсторияКулинарияКультураМаркетингМатематикаМедицинаМенеджментОхрана трудаПравоПроизводствоПсихологияРелигияСоциологияСпортТехникаФизикаФилософияХимияЭкологияЭкономикаЭлектроника






Определение потребности в кислороде





Потребность строительства в кислороде определяется на 1 млн. руб. годовой стоимости СМР (2004г.) по объектам жилищно-гражданского строительства - 4400 м3. Потребность в кислороде определяется по формуле:

4400·ССМР / 40,03=Пкисл

где Пкисл - потребность в кислороде;

ССМР - стоимость СМР, млн. руб.

Количество баллонов кислорода определяется по формуле:

Количество баллонов кислорода, определено исходя из того, что емкость одного баллона 6 м3 кислорода и определяется по формуле:

Nб.кислкисл /6.

где П кисл - потребность в кислороде;

Nб. кисл - требуемое количество баллонов кислорода, шт.

 

СТРОЙ ГЕНПЛАН (СГП)

При разработке строительного генерального плана для основного периода строительства необходимо учитывать

- временные здания и сооружения размещают на участках, не подлежащих застройке постоянными зданиями, на свободных территориях, вблизи въездов на стройплощадку, с соблюдением противопожарных норм, вне опасных зон от строящихся объектов и башенных кранов. Медпункты располагаются рядом с бытовыми помещениями;

- величина площади складов определяется по нормативам. Размещение общеплощадочных и приобъектных складов открытого и закрытого хранения материалов, изделий и конструкций производят с учетом устройства временных и постоянных (без верхнего покрытия) дорог;

- выбор монтажных средств осуществляют по техническим параметрам и технико-экономическим показателям;

Выбор монтажных средств осуществляют по техническим параметрам и технико-экономическим показателям [7].

Выбор монтажных средств по техническим параметрам производят с учётом следующих условий: требуемой грузоподъёмности;

ширины и высоты монтируемого объекта; привязки рельсового пути башенных кранов к объекту. Один башенный кран устанавливают на 3-4 секции дома.

На стройгенплане от башенных кранов обозначают монтажную (рабочую) и опасную зоны. Монтажная зона определяется техническими параметрами кранов и обозначается красной линией. Опасная зона определяется требованиями СНиП 111-4-80 и обозначается прерывистой красной линией (с флажками), удалённой от монтажной зоны на 6...10 м при высоте зданий от 20 до 70 м [9].

Для производства кровельных и отделочных работ устанавливают подъемники. Зона работы подъемника определяется высотой здания (в среднем 5 м).

Все краны и подъемники должны быть обеспечены силовым (380 В) временным электроснабжением от распределительных щитов и трансформаторных подстанций.

Для производства работ в 2 смены на стройгенплане предусматривают прожектора на инвентарных опорах (мачтах) как на объектах, так и вдоль проезжих дорог и у складских помещений (площадок). Мощность ламп накаливания составляет 1,5 кВт.

Вокруг строящихся объектов, а также вокруг временных зданий и сооружений, на стройгенплане должны быть предусмотрены пожарные гидранты вместе с системой подачи воды. Расстояние между гидрантами устанавливают до 90 м, удаление от строящихся объектов - 4м.

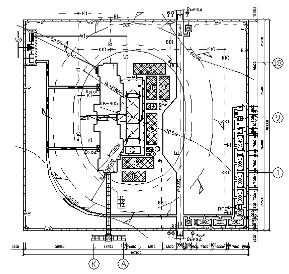
Пример организации строительной площадки при строительстве жилого дома приведен на рис. 3.

При разработке стройгенплана рекомендуется использовать следующие условные обозначения.

 

Условные обозначения


Рис. 3. Стройгенплан М1:500

 

 

Регулирование и безопасность движения автотранспорта по территории строительства обеспечено устройством временных дорог, установкой знаков ограничения скорости движения, указателей движения по строительной площадке. Временные дороги устраиваются из щебня шириной 3.5 м. Движение машин двустороннее.

Изделия заводского изготовления, детали и конструкции складируются в зоне действия крана. Площадки открытого хранения обеспечивают складирование нормативного запаса для бесперебойного производства работ. Раскладка материалов предусматривает проходы шириной 1.0 м для рабочих с целью обеспечения удобства строповки конструкций.

Для освещения строительной площадки в вечернее и ночное время предусмотрена система временного освещения.

Подача электроэнергии монтажным механизмам осуществляется по изолированным кабелям.

Бытовые, временные помещения находятся вне зоны действия крана. Внутриплощадочное временное водоснабжение осуществляется путем присоединения к действующей системе водоснабжения. Временный водопровод рассчитан на удовлетворение хозяйственно- бытовых и производственных потребностей. Временная трансформаторная под­станция осуществляет подачу электроэнергии путем подсоединения ее к действующей электросети. Вся территория строительной площадки ограждается временным забором.


Площадки открытого складирования строительных конструкций и материалов располагают в рабочей зоне монтажных кранов. Эти краны должны быть подключены к электролинии через распределительные шкафы, устанавливаемые у каждого строящегося объекта, и щиты для подключения подъемников.

Опасные зоны от башенных кранов не должны перекрывать эксплуатируемые магистральные проезды. В опасных зонах не должны располагаться временные административно- бытовые здания и эксплуатируемые объекты жилищно-гражданского назначения.

На стройгенплане реконструкции микрорайона устанавливают также расположение:

- действующих, разбираемых и перекладываемых инженерных сетей;

- существующих зданий и сооружений, не подлежащих реконструкции;

- возводимых зданий и сооружений;

- путей транспортирования строительных материалов и конструкций; места расположения бытовых временных зданий и помещений;

- безопасного прохода для строителей и жителей, находящихся в эксплуатируемых зданиях.

Различают строительные генеральные планы двух видов:

· общеплощадочные

· объектные

Общеплощадочный стройгенплан разрабатывается на всю территорию строительства комплекса объектов и включает, наряду с существующими и проектируемыми объектами, временные здания и сооружения, основные коммуникации, склады, дороги, строительные машины и механизированные установки, обслуживающие нужды строительства комплекса объектов в целом.

Он разрабатывается проектной организацией в составе раздела проекта "Организация строительства" на первой стадии проектирования обычно в масштабе 1:1000 или 1:2000.

Объектный стройгенплан составляется только на площадку, непосредственно прилегающую к конкретному зданию или сооружению, и определяет расположение временных зданий, инженерных сетей, строительных машин и устройств, необходимых для возведения отдельного объекта строительства. Объектный стройгенплан разрабатывается строительной организацией в составе проекта производства работ (ППР), как правило в масштабе 1:100 или 1:500.

В зависимости от стадии проектирования и строительства практикуется также разработка стройгенпланов на отдельные периоды возведения объекта: подготовительный, выполнения работ нулевого цикла, возведения надземной части здания и др.

После размещения всех временных и существующих зданий, необходимо подсчитать ТЭП по строительному генеральному плану:

o Площадь застройки - Sзаст

o Площадь генплана - Sген

o Коэффициент использования площади (Sзаст/Sген)

o Площадь временных зданий и сооружений - Sвр

o Площадь временных дорог – Sвр.д.

ЛИТЕРАТУРА

1. СНиП 12-01-2004. Организация строительного производства - М.:

2. СНиП 1.04.03-85. Нормы продолжительности проектирования и строительства. -М:. ЦППМП, 1985.

3. СНиП 1.05.03-87. Нормы задела в жилищном строительстве с учетом комплексной застройки. -М.: ЦППМП, 1987.

4. Рекомендации по определению продолжительности комплексной застройки микрорайонов, кварталов в городах и сельских населенных пунктах. — М.:ЦНИИОМ-Ш, 1989.

5. Порядок определения стоимости строительств» и свободных (договорных) пен на строительную продукцию в условиях развития рыночных отношений. — М.:Госстрой России, 1997.

6. СНиП 4.02-91 н СНиП 4.05-91. Сборники сметных норм и расценок на строительные работы.

7. Параметры, техническая характеристика и исходные данные для определения себестоимости эксплуатации стреловых самоходных кранов, рекомендуемых для монтажа конструкций. - М.: ЦНИИОМТП, 1984.

8. Справочное пособие к СНиП 3.01.01-85. Разработка проектов организации строительства и проектов производства работ для реконструкции действующих предприятий, зданий и сооружений. — М.: СИ, 1990.

9. СНиП Ш-4-80. Техника безопасности в строительстве.

 

 

Приложение 1.







Date: 2015-06-11; view: 3437; Нарушение авторских прав



mydocx.ru - 2015-2026 year. (0.878 sec.) Все материалы представленные на сайте исключительно с целью ознакомления читателями и не преследуют коммерческих целей или нарушение авторских прав - Пожаловаться на публикацию