Главная Случайная страница


Полезное:

Как сделать разговор полезным и приятным Как сделать объемную звезду своими руками Как сделать то, что делать не хочется? Как сделать погремушку Как сделать так чтобы женщины сами знакомились с вами Как сделать идею коммерческой Как сделать хорошую растяжку ног? Как сделать наш разум здоровым? Как сделать, чтобы люди обманывали меньше Вопрос 4. Как сделать так, чтобы вас уважали и ценили? Как сделать лучше себе и другим людям Как сделать свидание интересным?


Категории:

АрхитектураАстрономияБиологияГеографияГеологияИнформатикаИскусствоИсторияКулинарияКультураМаркетингМатематикаМедицинаМенеджментОхрана трудаПравоПроизводствоПсихологияРелигияСоциологияСпортТехникаФизикаФилософияХимияЭкологияЭкономикаЭлектроника






Виды деформаций зданий и сооружений 2 page





 

11. Обследование технического состояния зданий и сооружений. Этап подготовки к проведению обследования.[1] +

Цель комплексного обследования технического состояния здания или сооружения заключается в определении действительного технического состояния здания (сооружения) и его элементов, получении количественной оценки фактических показателей качества конструкций (прочности, сопротивления теплопередаче и др.) с учетом изменений, происходящих во времени, для установления состава и объема работ по капитальному ремонту или реконструкции.

При комплексном обследовании технического состояния здания или сооружения получаемая информация должна быть достаточной для проведения вариантного проектирования реконструкции или капитального ремонта объекта.

1) подготовка к проведению обследования;

2) предварительное (визуальное) обследование;

3) детальное (инструментальное) обследование.

Подготовительные работы проводят с целью: ознакомления с объектом обследования, его объемно-планировочным и конструктивным решением, материалами инженерно-геологических изысканий; сбора и анализа проектно-технической документации; составления программы работ с учетом согласованного с заказчиком технического задания.

5.1.9 Результатом проведения подготовительных работ является получение следующих материалов (полнота определяется видом обследования):

- согласованное заказчиком техническое задание на обследование;

- инвентаризационные поэтажные планы и технический паспорт на здание или сооружение;

- акты осмотров здания или сооружения, выполненные персоналом эксплуатирующей организации, в том числе ведомости дефектов;

- акты и отчеты ранее проводившихся обследований здания или сооружения;

- проектная документация на здание или сооружение;

- информация, в том числе проектная, о перестройках, реконструкциях, капитальном ремонте и т.п.;

- геоподоснова, выполненная специализированной организацией;

- материалы инженерно-геологических изысканий за последние пять лет;

- информация о местах расположения вблизи здания или сооружения засыпанных оврагов, карстовых провалов, зон оползней и других опасных геологических явлений;

- согласованный с заказчиком протокол о порядке доступа к обследуемым конструкциям, инженерному оборудованию и т.п. (при необходимости);

- документация, полученная от компетентных городских органов о месте и мощности подводки электроэнергии, воды, тепловой энергии, газа и отвода канализации.

5.1.10 На основе полученных материалов проводят следующие действия:

а) устанавливают:

- автора проекта,

- год разработки проекта,

- конструктивную схему здания или сооружения,

- сведения о примененных в проекте конструкциях,

- монтажные схемы сборных элементов, время их изготовления,

- время возведения здания,

- геометрические размеры здания или сооружения, элементов и конструкций,

- расчетную схему,

- проектные нагрузки,

- характеристики материалов (бетона, металла, камня и т.п.), из которых выполнены конструкции,

- сертификаты и паспорта на применение в строительстве зданий изделий и материалов,

- характеристики грунтового основания,

- имевшие место замены и отклонения от проекта,

- характер внешних воздействий на конструкции,

- данные об окружающей среде,

- места и мощность подвода электроэнергии, воды, тепловой энергии, газа и отвода канализации,

- проявившиеся при эксплуатации дефекты, повреждения и т.п.,

- моральный износ объекта, связанный с дефектами планировки и несоответствием конструкций современным нормативным требованиям (см. приложениеБ);

б) составляют программу, в которой указывают:

- перечень подлежащих обследованию строительных конструкций и их элементов,

- перечень подлежащего обследованию инженерного оборудования, электрических сетей и средств связи,

- места и методы инструментальных измерений и испытаний,

- места вскрытия и отбора проб материалов для исследования образцов в лабораторных условиях,

- необходимость проведения инженерно-геологических изысканий,

- перечень необходимых поверочных расчетов и т.п.

 

12. Обследование технического состояния зданий и сооружений. Этап предварительного обследования (визуальное).[1] +

Цель комплексного обследования технического состояния здания или сооружения заключается в определении действительного технического состояния здания (сооружения) и его элементов, получении количественной оценки фактических показателей качества конструкций (прочности, сопротивления теплопередаче и др.) с учетом изменений, происходящих во времени, для установления состава и объема работ по капитальному ремонту или реконструкции.


При комплексном обследовании технического состояния здания или сооружения получаемая информация должна быть достаточной для проведения вариантного проектирования реконструкции или капитального ремонта объекта.

1) подготовка к проведению обследования;

2) предварительное (визуальное) обследование;

3) детальное (инструментальное) обследование.

Предварительное (визуальное) обследование проводят с целью предварительной оценки технического состояния строительных конструкций и инженерного оборудования, электрических сетей и средств связи (при необходимости) по внешним признакам, определения необходимости в проведении детального (инструментального) обследования и уточнения программы работ. При этом проводят сплошное визуальное обследование конструкций здания, инженерного оборудования, электрических сетей и средств связи (в зависимости от типа обследования технического состояния) и выявление дефектов и повреждений по внешним признакам с необходимыми измерениями и их фиксацией.

5.1.12 Результатом проведения предварительного (визуального) обследования являются:

- схемы и ведомости дефектов и повреждений с фиксацией их мест и характера;

- описания, фотографии дефектных участков;

- результаты проверки наличия характерных деформаций здания или сооружения и их отдельных строительных конструкций (прогибы, крены, выгибы, перекосы, разломы и т. п.);

- установление аварийных участков (при наличии);

- уточненная конструктивная схема здания или сооружения;

- выявленные несущие конструкции по этажам и их расположение;

- уточненная схема мест выработок, вскрытий, зондирования конструкций;

- особенности близлежащих участков территории, вертикальной планировки, организации отвода поверхностных вод;

- оценка расположения здания или сооружения в застройке с точки зрения подпора в дымовых, газовых, вентиляционных каналах;

- предварительная оценка технического состояния строительных конструкций, инженерного оборудования, электрических сетей и средств связи (при необходимости), определяемая по степени повреждений и характерным признакам дефектов.

5.1.13 Зафиксированная картина дефектов и повреждений для различных типов строительных конструкций позволяет выявить причины их происхождения и может быть достаточной для оценки технического состояния конструкций. Если результатов визуального обследования для решения поставленных задач недостаточно, проводят детальное (инструментальное) обследование.

Если при визуальном обследовании обнаружены дефекты и повреждения, снижающие прочность, устойчивость и жесткость несущих конструкций здания или сооружения (колонн, балок, ферм, арок, плит покрытий и перекрытий и др.), переходят к детальному (инструментальному) обследованию.

5.1.14 При обнаружении характерных трещин, перекосов частей здания или сооружения, разломов стен и прочих повреждений и деформаций, свидетельствующих о неудовлетворительном состоянии грунтового основания, в детальное (инструментальное) обследование включают инженерно-геологические исследования, по результатам которых может потребоваться не только восстановление и ремонт строительных конструкций, но и усиление основания.


При комплексном обследовании технического состояния здания или сооружения в детальное (инструментальное) обследование инженерно-геологические исследования включают всегда.

 

13. Обследование технического состояния зданий и сооружений. Этап детального обследования (инструментальное). [1] +

Цель комплексного обследования технического состояния здания или сооружения заключается в определении действительного технического состояния здания (сооружения) и его элементов, получении количественной оценки фактических показателей качества конструкций (прочности, сопротивления теплопередаче и др.) с учетом изменений, происходящих во времени, для установления состава и объема работ по капитальному ремонту или реконструкции.

При комплексном обследовании технического состояния здания или сооружения получаемая информация должна быть достаточной для проведения вариантного проектирования реконструкции или капитального ремонта объекта.

1) подготовка к проведению обследования;

2) предварительное (визуальное) обследование;

3) детальное (инструментальное) обследование.

Детальное (инструментальное) обследование технического состояния здания или сооружения включает в себя:

- измерение необходимых для выполнения целей обследования геометрических параметров зданий или сооружений, конструкций, их элементов и узлов;

- инженерно-геологические изыскания (при необходимости);

- инструментальное определение параметров дефектов и повреждений;

- определение фактических характеристик материалов основных несущих конструкций и их элементов;

- измерение параметров эксплуатационной среды, присущей технологическому процессу в здании и сооружении;

- определение реальных эксплуатационных нагрузок и воздействий, воспринимаемых обследуемыми конструкциями с учетом влияния деформаций грунтов основания;

- определение реальной расчетной схемы здания или сооружения и его отдельных конструкций;

- определение расчетных усилий в несущих конструкциях, воспринимающих эксплуатационные нагрузки;

- поверочный расчет несущей способности конструкций по результатам обследования (для зданий 1-го уровня ответственности в соответствии с ГОСТ 27751 поверочный расчет проводят с применением не менее двух сертифицированных вычислительных программ);

- анализ причин появления дефектов и повреждений в конструкциях;

- составление итогового документа (заключения) с выводами по результатам обследования.

5.1.16 Заключение по итогам обследования технического состояния объекта (см. приложениеВ) включает в себя:

- оценку технического состояния (категорию технического состояния) в соответствии с [4];

- материалы, обосновывающие принятую категорию технического состояния объекта;

- обоснование наиболее вероятных причин появления дефектов и повреждений в конструкциях (при наличии);


- задание на проектирование мероприятий по восстановлению или усилению конструкций (если необходимо).

5.1.17 Детальное инструментальное) комплексное обследование технического состояния здания или сооружения включает в себя проведение работ по 5.1.15, 5.4, 5.5, 5.6 и 5.7.

5.1.18 Заключение по итогам комплексного обследования технического состояния объекта (см. приложение Г) включает в себя:

- оценку технического состояния (категорию технического состояния);

- результаты обследования, обосновывающие принятую категорию технического состояния объекта;

- оценку состояния инженерных систем, электрических сетей и средств связи, звукоизолирующих свойств ограждающих конструкций, шума инженерного оборудования, вибраций и внешнего шума, теплотехнических показателей наружных ограждающих конструкций;

- результаты обследования, обосновывающие принятые оценки;

- обоснование наиболее вероятных причин появления дефектов и повреждений в конструкциях, инженерных системах, электрических сетях и средствах связи, снижения звукоизолирующих свойств ограждающих конструкций, теплоизолирующих свойств наружных ограждающих конструкций (при наличии);

- задание на проектирование мероприятий по восстановлению, усилению или ремонту конструкций, оборудования, сетей (если необходимо).

5.1.19 По результатам обследования технического состояния здания или сооружения составляется паспорт конкретного здания или сооружения (см. приложение Д), если он не был составлен ранее, или уточнение паспорта, если он был составлен ранее.

 

14. Комплексная реконструкция жилой застройки (методы). [3]

Комплексная застройка городов России, несмотря на очевидные преимущества, не получила массового распространения. Для большинства городов характерны незавершенность жилых районов и микрорайонов, непропорциональное развитие отраслей городского хозяйства, отставание строительства инженерных сооружений, дорог и объектов по обслуживанию населения от строительства жилья.

Применят реконструкционные меры, три варианта решения проблемы:

– поквартальный снос старых домов (строительные компании смогут получать прибыль от возведения новых зданий на месте старых прежде всего за счет более плотной и масштабной застройки, особенно в престижных местах);

– надстройка зданий (без расселения) с одновременным ремонтом: этот этап будет осуществляться на коммерческой основе; в настоящее время уже реализуются пилотные проекты;

– глубокая реконструкция (с расселением), изменяющая объемно-пространственные и планировочные решения.

 

15. Реконструкция зданий без изменения и с изменением функционального назначения. [3]

Реконструкция жилого здания в жилое (без изменения функционального назначения) означает улучшение комфортности проживания граждан путем перепланировки квартир. Особенно острой проблемой это является для крупных городов России, в которых еще со­хранились коммунальные квартиры и в первую очередь, для г. Москвы. При реконструкции следует учитывать факторы, влияющие на характеристики здания или сооружения.

На рис. 2.1. приведен пример перепланировки в старом реконструируемом доме.

Кроме перепланировок в зданиях старого опорного фонда, где, как правило, из квартир коммунального заселения устраивают отдельные комфортабельные квартиры, в настоящее время реконструируют (модернизируют) квартиры в зданиях индустриальной застройки.

При проведении планировки жилых зданий первого поколения индустриального строительства — пятиэтажек «хрущеб» часто используется метод реконструкции (модернизации) планировочного решения в габаритах существующей общей плошади без ее увеличения, с изменением жилой и полезной площадей (рис. 2.2. и 2.3.). В первом случае после перепланировки имеется потеря жилой площади в 2,3%, во втором — уменьшение количества квартир с 4-х до 2-х, но улучшение комфортного проживания компенсирует эту потерю.

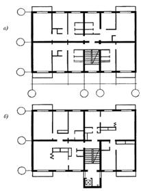
В первую очередь реконструируются сборные дома с продольными несущими стенами: серии 1-515,1-605 AM (панельные); серия 1-510 (блочные); серия 1-511 (кирпичные). Все эти серии отличаются друг от друга некоторыми особенностями планировки квартир (расположением несущих перегородок), а основные конструктивные размеры в них одинаковы: шаг -продольных стен 6,0 м; длина рядовой секции в осях 19,2 м, торцевой — 16,8 м; лестничная клетка шириной 2,4 м расположена на расстоянии 8,4 м от каждой из поперечных стен жесткости; расположение санузлов и кухонь тоже одинаково (рис. 2.4.).

Эта группа серий наиболее хорошо подходит для перепланировки, так как здесь можно. создать квартиры, отвечающие современным требованиям, с меньшими трудовыми и материальными затратами, чем в других домах. Так, наиболее простым, но в то же время эффективным с точки зрения повышения качества жилья решением будет перепланировка квартир в габаритах здания без переноса коммуникаций, но с сокращением числа квартир на этаже до трех (в торцах секций до двух).

Перепланировка (рис.2.5, вариант 1) потребует переноса лишь части несущих перегородок, «что позволит сохранить оставшиеся при их делении. Кроме этого, потребуется сократить число санузлов и кухонь с устройством на их месте жилых комнат.

Все работы требуют минимальных затрат, особенно если учесть, что санитарно-техническое оборудование этих домов все равно подлежит замене по физическому и моральному износу, внутренняя отделка помещений в большинстве случаев пришла в негодность и нуждается в полной переделке. При предложенном варианте перепланировки увеличивается площадь кухонь и санузлов (во всех квартирах, кроме однокомнатной) с возможностью размещения в них комнатах стиральной машины, а на кухнях обеденного места. Кроме того, улучшаются пропорции некоторых комнат, организуются кладовки и изменяется входной узел, приближаясь по своим пропорциям к некоторому подобию холла.


Рис.2.1. Пример перепланировки в реконструируемом доме:

а) ситуационный план; б) имеющаяся планировка; в) этапы: 1—4 ход решения задачи; г) вариант с глубинным расположением санитарных помещений; д) вариант с холлами

 

 

Рис. 2.2. Перепланировка квартир в доме серии 1-480 А32В:

а) до реконструкции: жилая площадь — 1787,2м2, общая площадь — 2749,9м2; б) после реконструкции: жилая площадь — 1746, Ом2, общая площадь — 2749,9м2


 

Рис. 2.3. Перепланировка с изменением количества квартир в секции дома серии 1-511:

а) до реконструкции; б) после реконструкции

 

К главным недостаткам такого типа перепланировки относится значительное сокращение числа квартир в доме, что потребует переселения, по крайней мере, трети его жителей в другие дома. Однако это неизбежно, учитывая перенаселенность квартир и необходимость расселения жителей реконструируемых зданий по современным нормам представления жилья. Когда не требуются крупные квартиры, например, при расселении больших семей, имеющих три и более поколений, можно сделать перепланировку теми же способами, но сокращая количество квартир: из двухкомнатной сделать однокомнатную, а из трехкомнатной — двухкомнатную. Качество квартир при этом повышается за счет достижения хороших пропорций, а число квартир на этаже остается прежним Но это не снимает проблему расселения «лишних» жителей с предоставлением им квартир в новых домах.

Гораздо сложнее делать перепланировку квартир в сериях домов с поперечными несущими стенами (К-7, 11-32, 11-35, МГ-300, 1-464 и др.), так как резко уменьшается вариантность проектирования. Многие из них не пригодны к реконструкции в силу физического и морального износа и подлежат сносу (серии К-7,11-32). На рис. 2.4. показан проект рекон­струкции дома серии 1-464, выполненный в институте ЦНИИЭП жилища. Здесь видно, что перепланировка затронула только санитарные узлы, но зато в доме устроены эркеры и лоджии, что несомненно, изменило и архитектурно-эстетические качества и условия проживания жильцов в доме.

 

 

Рис. 2.4. Реконструкция жилого дома серии 1-464 с поперечными несущими стенами:

а) существующая схема; б) схема реконструкции

 

Интересен конкурсный проект реконструкции дома этой же серии 1-464, выполненный также в ЦНИИЭП жилища (рис.2.5). В проекте предусмотрены: пирамидальный силуэт, что путем различной перепланировки этажей, замена плоской крыши скатной, устройство двухсторонней мансарды и двухэтажных квартир.

Если и первые проекты рассматривали реконструкцию крупнопанельного жилья первого поколения в рамках существующих габаритов, то работы более позднего периода предлагают коренное изменение архитектурного решения подобных зданий, а именно, организацию двухуровнего жилища; организацию жилища первого этажа по принципу блокированного дома с приквартирным палисадником и организацией самостоятельного входа в квартиру; смешанную структуру жилого дома с применением различных вариантов планировки на разных этажах.

Рис. 2.5. Серия 1-464. Создание пирамидального силуэта дома как по торцовому, так и продольному фа­саду путем различной перепланировки этажей. Замена плоской крыши скатной, устройство двухсторонней мансарды, квартиры пятого этажа превращены в двухэтажные:

а) план мансардного этажа; б) план 4-го этажа

 

Мероприятия по реконструкции зданий направлены на преобразование архитектуры зданий, и рассчитаны на более выразительные архитектурные композиции с применением модернизированных и вновь введенных архитектурных элементов, среди них: эркеры, лоджии, измененные крыши, фронтоны, входные группы, улучшенные цветовые композиции

 

16. Разуплотнение и уплотнение застройки. Снос и новое строительство.[3]

Разуплотнение застройки связано со сносом отдельных или группы домов и сооружений, а снос (санация) связан с последующим строительством на этом месте более объемного и качественного жилья.

При разуплотнении улучшаются такие градостроительные показатели, как инсоляция, освещенность, благоустройство дворовых территорий, что в свою очередь повышает комфортность проживания жителей крупных городов. Как правило, когда мы говорим о плотной застройке города, то речь идет о дворах-колодцах, что очень показательно для городов Москвы и Берлина. Раньше разуплотнением дворов-колодцев занялись в г. Берлине (Германия).

На рис. 2.7 показан пример разуплотнения городской застройки в одном из кварталов г. Берлина, с характерным наличием дворов-колодцев. На этом рисунке видно, что при разуплотнении сносят внутренние строения, а по периметру застройку зданий сохраняют. На рис. 2.8. приведен пример разуплотнения застройки, где на схеме «а» показано, что сносятся внутридворовые строения, а на схеме «б» — части домов-колодцев.

Уплотнение застройки является способом реконструкции городской жилой застройки в условиях острого дефицита жилья, и это касается, прежде всего, новых районов застройки, где существуют большие разрывы между зданиями, имеется много свободной неблагоустроенной дворовой площади, а также при использовании пустырей, оврагов (при их засыпке) и освоении свободных территорий после вывода или ликвидации промышленных объектов из города (с соответствующей рекультивацией земли). Так, например, в г. Москве для нормального проживания 10 млн жителей необходимо иметь ~230 млн м2 общей площади.

В настоящее время в г.Москве имеется -190 млн м2 жилой площади. При оценке территории г.Москвы, включая пустыри, овраги, учитывая возможности по выводу промышленных предприятий из города, экспертно установлено, что 50% из указанного дефицита можно найти в черте московской кольцевой автомобильной дороги (МКАД). Вторая часть этого дефицита лежит за пределами МКАД, что и подтверждается строительством новых жилых районов и микрорайонов: Жулебино, Ново-Косино, Митино, Солнцево, Зеленоград и т.д.

Уплотнение городской жилой застройки имеет и положительные и отрицательные моменты. Положительное состоит в том, что если на месте пустырей, оврагов и на территориях промышленных зон мы получаем дополнительное жилье, то решается социальная и народ­нохозяйственная задача. Отрицательное состоит в том, что, уплотняя застройку посредством сноса внутридворовых строений или ликвидации отдельных частей домов-колодцев, мы не улучшаем такие градостроительные показатели, как разрывы между зданиями и инсоляцию. Но, соблюдая строительные нормы, мы можем достичь желаемого компромисса.

Реконструкция здания с изменением функционального назначения возможна в следующих вариантах: жилое здание переоборудуется в общественное, общественное здание — в жилое, промышленное здание — в общественное или жилое и т.д.

При реконструкции жилых домов первого поколения в г. Москве выдвинут ряд основных концепций. Градостроители преследуют цель повышения плотности застройки. Часть преобразований направлена на улучшение ряда эксплуатационных характеристик, прежде всего, это касается звукоизоляции, теплозащиты, замены санитарно-технического обо­рудования и т.д

Сносу подлежат дома серии II-32 и К-7. Другие серии пятиэтажных зданий подвергнут перепланировке: они будут надстроены на 2 этажа и между ними появятся 12-этажные вставки.

Одна из основных целей реконструкции жилых массивов 50—60-х годов — это повышение лотности застройки. В г. Москве разница между сложившейся и нормативно-рекомендуемой этностью жилого фонда на 1 га достигает до 3000 м2. Нереализованные возможности - во го жилищного строительства непосредственно в районах сложившегося расселения достигают 55—60 млн м2 общей площади.

 

 

Предварительные экономические расчеты подтверждают целесообразность сноса при воспроизводстве на реконструируемой территории застройки с плотностью до 300 % от первоначальной, что может составить 12 000—15 000 м2/га. Возможность таких плотностей доказана, и даже рекомендована для крупнейших городов. Очевидно, это в какой-то мере объясняет желание сносить пятиэтажки в г. Москве на наиболее перспективных городских площадках в хороших градостроительных условиях (Юго-Запад, Запад, Черемушки, Фили и т.д.).

В г. Санкт-Петербурге жилые дома 50—60-х годов застройки составляют 11,2 млн м2 общей площади, что составляет 13,8 % от жилого фонда города, и эти дома занимают пятую часть городских территорий.

В целом же в Санкт-Петербурге предлагается вести реконструкцию жилья по двум направлениям: первое — капитальный ремонт и реконструкция, перепланировка, устройство мусоропроводов, утепление стен, модернизация входов, повышение звукоизоляции, замена инженерного оборудования; второе направление — надстройка 6-го этажа с теплым этажом. Предлагается по наружному контуру дома смонтировать сборные железобетонные пилоны Т-образной формы. В уровне междуэтажных перекрытий пилоны соединяются железобетонной плитой, служащей перекрытием вновь создаваемых лоджий.

Например, реконструкция 3 и 5 кварталов Дачного в Санкт-Петербурге имеет три этапа:

- первый: период активного накопления жилой среды. На этом этапе возможно уплотнение застройки без сноса, капитальный ремонт и реконструкция существующего жилого фонда предприятий соцкультбыта и проведение реконструкции ландшафта;

- второй этап: период качественного совершенствования среды жилых комплексов с частичной заменой панельного фонда, физический износ которого достигает более 50 %;

- третий период: совершенствование накопленного потенциала жилой среды с полной заменой зданий первого поколения.

В масштабах Санкт-Петербурга уплотнение 5-этажной застройки 60-х годов на 30 %—40 % позволит разместить дополнительно около 10 млн. м2 жилого фонда, что дает возможность сократить потребность в освоении более 1000 га новых территорий.

 

17. Передвижка и подъем зданий[3]+

Здания, представляющие собой архитектурно-историческую ценность, передвигают, когда прокладывают новые магистрали, реконструируют старые или освобождают новые территории под уникальные объекты.

Первая передвижка здания была выполнена в 1455 году в Италии. Аристотель Фиорованти передвинул на 105 м колокольню церкви Святого Марка в г. Болонье.

В российских городах и деревнях находились умельцы, которые перемешали срубы, сараи, амбары и избы, рубленные из круглого леса.

В 1876 году в г. Чикаго (США) было передвинуто 6-этажное каменное здание. В г. Москве в 1897 году по проекту инженера Федоровича был передвинут на 100 м двухэтажный каменный дом в связи с расширением железной дороги Москва — Санкт-Петербург. После первой мировой войны массовый характер передвижки зданий был зафиксирован в США. В нашей стране передвижка зданий широко практиковалась в 30-е годы. В связи с реконструкцией рода — расширением главной улицы в г. Макеевке в 1934 году было передвинуто 1300-тонное здание почты. При этом инженер Кирлан, руководивший передвижкой здания почты, в качестве эксперимента перед этим передвинул жилой одноэтажный дом весом 70 тонн. В г. Кривом Роге был передвинут жилой дом весом 1500 тонн. В г. Москве при реконструкции Горького (ныне ул. Тверская) было передвинуто 9 домов массой до 25 тыс. тонн. Одно здание (дом № 6) было передвинуто на 49,8 м без выселения жильцов. Передвинуто здание Моссовета и несколько других зданий.

При передвижке зданий используют 4 схемы (рис.2.10).

Желательно, чтобы радиус вращения при передвижке был более 200 м, поскольку при меньших радиусах ходовые балки и рельсовые пути приходится изгибать. Иногда вместо криволинейной передвижки прибегают к движению по двум направлениям, но прямым. В 4ачале пути располагают вдоль одной из осей здания, потом — вдоль другой.

Проектирование передвижки заключается в разработке конструкций новых фундаментов, элементов пути с передвигающими механизмами и временных устройств, заменяющих фундамент и воспринимающих нагрузки от стен во время передвижки (рис. 2.11).

Новые фундаменты проектируют по обмерным чертежам здания в плоскости среза. При этом стены фундаментов принимают толще на 0,1: 0,15 м, чем стены цокольной части. Передвигают здание по рельсам с помощью катков. Ширина рельсового пути — 0,8...0,85 м. Рельсы укладывают в две и более ниток, но чаще ограничиваются четырьмя.







Date: 2015-07-17; view: 1478; Нарушение авторских прав



mydocx.ru - 2015-2026 year. (1.041 sec.) Все материалы представленные на сайте исключительно с целью ознакомления читателями и не преследуют коммерческих целей или нарушение авторских прав - Пожаловаться на публикацию