Главная Случайная страница


Полезное:

Как сделать разговор полезным и приятным Как сделать объемную звезду своими руками Как сделать то, что делать не хочется? Как сделать погремушку Как сделать так чтобы женщины сами знакомились с вами Как сделать идею коммерческой Как сделать хорошую растяжку ног? Как сделать наш разум здоровым? Как сделать, чтобы люди обманывали меньше Вопрос 4. Как сделать так, чтобы вас уважали и ценили? Как сделать лучше себе и другим людям Как сделать свидание интересным?


Категории:

АрхитектураАстрономияБиологияГеографияГеологияИнформатикаИскусствоИсторияКулинарияКультураМаркетингМатематикаМедицинаМенеджментОхрана трудаПравоПроизводствоПсихологияРелигияСоциологияСпортТехникаФизикаФилософияХимияЭкологияЭкономикаЭлектроника






Пример расчета внецентренно нагруженных фундаментов





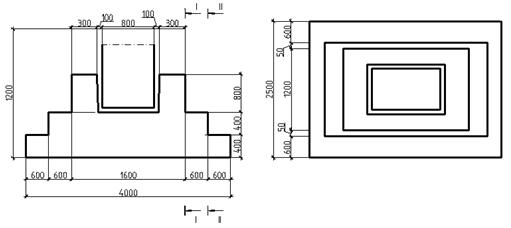
Определить размеры подошвы и рассчитать кон­струкцию фундамента под колонну промышленного здания разме­ром 40X80 см (рис. III.1). В основании фундамента залегает песок пылеватый, плотный, насыщенный водой, имеющий удельный вес =0,0185 МН/м3. Угол внутреннего трения и удельное сцепление, определенные на основе лабораторных испытаний образцов грунта, составляют соответственно =28° и сn =0,0037 МПа. Глубина за­ложения фундамента d=1,2 м. В проектируемом здании подвал отсутствует. На уровне спланированной отметки земли приложена вертикальная сила N'=1,0 МН и момент М'=0,6 МН·м (от нор­мативных нагрузок). Расчетные значения усилий составляют: N'= = 1,1 МН, момента М'=0,7 МН·м. Здание имеет длину L=84 м и высоту H = 20,5 м.

Решение. При действии внецентренно приложенной нагрузки форму подошвы фундамента целесообразно назначить в виде пря­моугольника. Зададимся соотношением длины подошвы фундамен­та к его ширине l/b =1,5.

В первом приближении определим площадь подошвы фунда­мента в предположении, что на него действует только вертикаль­ная центрально приложенная сила. Условное расчетное сопротивле­ние грунта основания составит R 0=0,15 МПа. Тогда ориентировоч­ная площадь фундамента определяется по формуле:

=1,0/(0,15—1,2-0,02) = 7,81 м2.

Учитывая, что фундамент является внецентренно нагруженным, увеличиваем размеры фундамента на 20 %. Тогда ориентировочная площадь подошвы фундамента составит Аф = 9,4 м2.

При соотношении l/b =1,5 получим: b = = 2,5 м; l = 2,5·1,5=3,75 м.

Назначим размеры подошвы фундамента, выполненного из мо­нолитного железобетона, b X l =2,5Х4 м и высоту h '=0,8 м. Най­дем эксцентриситет, создаваемый моментом: е=0,6/1,0=0,6 м.

Вычислим значение 0,03 l к=0,024 м. Значение е=0,6 м>0,03 lк = 0,024 м, поэтому данный фундамент необходимо рассчитать, как внецентренно сжатый.

Для соотношения L/H= 84/20,5=4,1 по табл. 1.15(Приложение I) найдем зна­чения коэффициентов условий работы = l.l и =l,0. Коэффи­циент k= 1,0.

 

Рис. III.1

 

Для прямоугольного фундамента шириной b =2,5 м найдем рас­четное сопротивление грунта основания, опреде­лив предварительно значения безразмерных коэффициентов (см. табл. 1.13 Приложение 1) =0,98, = 4,93 и = 7,40:

В соответствии с требованиями строительных норм, для вне­центренно нагруженных фундаментов максимальное краевое дав­ление под подошвой фундамента не должно превышать 1,2 R = 0,24 МПа.

Найдем вес грунта, лежащего на обрезах фундамента:

Gгр = 0,0185 (2,5·4—1,6·1,2)0,4 = 0,06 МН.

Вес фундамента (см. рис. 2.17):

Gф = 0,024 (0,8·4·2,5+ 1,6·1,2·0,8) =0,238 МН.

Найдем максимальное и минимальное краевые давления под подошвой фундамента при внецентренном нагружении по форму­лам:

МПа;

 

МПа.

Проверим выполнение условий:

pmax = 0,22 < 1,2 R = 0,24 МПа; pmin = 0,031 > 0;

pcp = (1+0,06 + 0,238)/2,5·4 = 0,13< R = 0,2 МПа.

Условия выполняются, а недонапряжение по максимальному краевому давлению составляет 8,3 % < 10 %. Следовательно, фунда­мент запроектирован экономично.

Окончательно принимаем в качестве фундаментной подушки монолитную железобетонную плиту размером 2,5x4x0,8 м (см. рис. III.1).







Date: 2015-05-22; view: 2547; Нарушение авторских прав



mydocx.ru - 2015-2026 year. (0.341 sec.) Все материалы представленные на сайте исключительно с целью ознакомления читателями и не преследуют коммерческих целей или нарушение авторских прав - Пожаловаться на публикацию